Italiano
191.478 €

NR DUE COMPENDI IMMOBILIARI CON PIU APPARTAMENTI

Stabile / Palazzo in vendita • Calolziocorte - Via S. S. Cosma e Damiano, 91
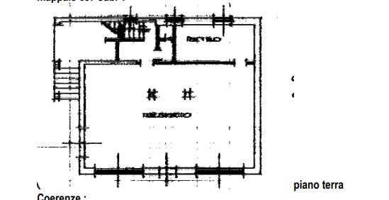
Localizzazione: Il compendio è situato nel Comune di Calolziocorte (LC), in zona periferica, lungo la strada provinciale Lecco-Bergamo, in prossimità del nuovo ponte Cantù e a breve distanza dal Comune di Monte Marenzo. L’area è caratterizzata da un contesto residenziale popolare con presenza di negozi al piano terra. L’accesso principale avviene da via Santi Cosma e Damiano n. 91. Descrizione generale: Il complesso si compone di due corpi di fabbrica cielo-terra (Corpo A e Corpo B), adiacenti e parzialmente collegati, con accessi indipendenti e sviluppo su più livelli. Le unità, prevalentemente in stato di disuso e inagibilità, richiedono interventi di ristrutturazione e recupero. Alcuni appartamenti risultano al rustico, altri locati con contratto in scadenza. Corpo A: Edificio a cortina, in aderenza su due lati (uno con Corpo B), sviluppato su quattro livelli: - Piano terra: negozio attualmente utilizzato come autorimessa. - Piani primo e secondo: abitazioni con balcone su tutta la facciata. - Piano mansardato: unità abitativa con tetto a falde e balconcini ad incasso. Stato conservativo: sfitto ed inagibile. Facciate deteriorate e tetto danneggiato. Unità al rustico, oggetto di lavori edilizi sospesi. Identificazione catastale corpo A: - Mappale 1063 Sub. 4 (C/6) PT - Negozio/autorimessa, 59 mq, - Mappale 1063 Sub. 5 (A/3) P1 - Appartamento, 4 vani, 71 mq lordi, - Mappale 1063 Sub. 6 (A/3) P2 - Appartamento, 3,5 vani, 66 mq lordi, - Mappale 1063 Sub. 7 (A/3) P3 - Appartamento, 3,5 vani, 67 mq lordi. Corpo B: Edificio d’angolo in aderenza al Corpo A, con sviluppo su tre livelli fuori terra: - Piano terra: negozio con accesso anche dalla porzione a piano terra del Corpo A. - Piani primo e secondo: appartamenti con balconi. - Sottotetto: vano ripostiglio. Ingresso da area comune con scala condominiale. Stato conservativo: Appartamenti: condizioni mediocri, finiture ordinarie, impianti vetusti, riscaldamento autonomo con canna fumaria esterna. Negozio (Sub. 1): stato di abbandono, presenza di infiltrazioni, collegato al negozio del Corpo A. Identificazione catastale corpo B: - Mappale 1063 Sub. 1 (C/1) PT - Negozio, 73 mq; - Mappale 1063 Sub. 2 (A/3) P1 - Appartamento, 5 vani, 102 mq lordi – locato fino al 24/10/2026; - Mappale 1063 Sub. 3 (A/3) P2 - Appartamento, 5 vani, 104 mq lordi.

IMMOBILE ALL ASTA, contattaci per fissare una prima consulenza presso il nostro Studio.
Gardemar Srl offre servizi professionali di consulenza nell'ambito di procedure esecutive immobiliari e fallimentari.
La nostra missione è quella di avvicinare il privato e le società agli acquisti di immobili oggetto di procedura esecutiva immobiliare e, al contempo, cercare di aiutare i soggetti esecutati nel risolvere la propria posizione debitoria grazie ad accordi di saldo e stralcio con i relativi creditori.
Ad oggi Gardemar gestisce un network di oltre 20 filiali autonome su territorio nazionale ( Filiali Gardemar • Gardemar Aste Immobiliari ) e dispone della collaborazione di uno Studio Legale.

Servizi di consulenza offerti:

Aste giudiziarie immobiliari
Esecuzioni immobiliari
Procedure fallimentari
Ricerca di immobili all'asta
Procedura di saldo e stralcio
Aste telematiche immobiliari
Business plan per i costi di partecipazione all'asta
Valutazione globale dell'investimento
Analisi delle perizie tecniche
Analisi su eventuali abusi edilizi
Analisi sugli avvisi di vendita e ordinanze del giudice
Analisi su eventuali diritti di terzi sull'immobile
Consulenza post-aggiudicazione asta immobiliare
Ottenimento finanziamenti tramite professionisti dedicati
Consulenza legale tramite Studio partner
Consulenza costi di ristrutturazione immobiliare con nostri partner affiliati.
Caratteristiche principali
Codice
15/2022 Ser10dic25lot6
Città
Calolziocorte
Categoria
Stabile / Palazzo
Prezzo
191.478 €
Locali
21
Mq
542
Classe energetica
G
Mappa
Via S. S. Cosma e Damiano 91, Calolziocorte (LC)
Condividi su
Cookie preference