Italiano
48.000 €

TRILOCALE CON BALCONE E CANTINA A CASALZUIGNO

Appartamento in vendita • Casalzuigno - Via VALCUVIA , 20
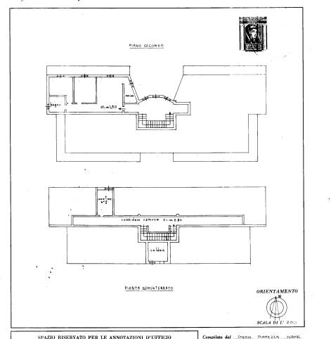
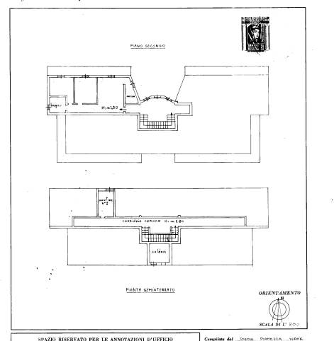
appartamento di civile abitazione posto al piano secondo composto da tre locali, cucina, bagno e disimpegno con annessa cantina al piano seminterrato.

IMMOBILE ALL ASTA, contattaci per fissare una prima consulenza presso il nostro Studio.
Gardemar Srl offre servizi professionali di consulenza nell'ambito di procedure esecutive immobiliari e fallimentari.
La nostra missione è quella di avvicinare il privato e le società agli acquisti di immobili oggetto di procedura esecutiva immobiliare e, al contempo, cercare di aiutare i soggetti esecutati nel risolvere la propria posizione debitoria grazie ad accordi di saldo e stralcio con i relativi creditori.
Ad oggi Gardemar gestisce un network di oltre 20 filiali autonome su territorio nazionale ( Filiali Gardemar • Gardemar Aste Immobiliari ) e dispone della collaborazione di uno Studio Legale.

Servizi di consulenza offerti:

Aste giudiziarie immobiliari
Esecuzioni immobiliari
Procedure fallimentari
Ricerca di immobili all'asta
Procedura di saldo e stralcio
Aste telematiche immobiliari
Business plan per i costi di partecipazione all'asta
Valutazione globale dell'investimento
Analisi delle perizie tecniche
Analisi su eventuali abusi edilizi
Analisi sugli avvisi di vendita e ordinanze del giudice
Analisi su eventuali diritti di terzi sull'immobile
Consulenza post-aggiudicazione asta immobiliare
Ottenimento finanziamenti tramite professionisti dedicati
Consulenza legale tramite Studio partner
Consulenza costi di ristrutturazione immobiliare con nostri partner affiliati.

appartamento di civile abitazione posto al piano secondo composto da tre locali, cucina, bagno e disimpegno con annessa cantina al piano seminterrato.

IMMOBILE ALL ASTA, contattaci per fissare una prima consulenza presso il nostro Studio.
Gardemar Srl offre servizi professionali di consulenza nell'ambito di procedure esecutive immobiliari e fallimentari.
La nostra missione è quella di avvicinare il privato e le società agli acquisti di immobili oggetto di procedura esecutiva immobiliare e, al contempo, cercare di aiutare i soggetti esecutati nel risolvere la propria posizione debitoria grazie ad accordi di saldo e stralcio con i relativi creditori.
Ad oggi Gardemar gestisce un network di oltre 20 filiali autonome su territorio nazionale ( Filiali Gardemar • Gardemar Aste Immobiliari ) e dispone della collaborazione di uno Studio Legale.

Servizi di consulenza offerti:

Aste giudiziarie immobiliari
Esecuzioni immobiliari
Procedure fallimentari
Ricerca di immobili all'asta
Procedura di saldo e stralcio
Aste telematiche immobiliari
Business plan per i costi di partecipazione all'asta
Valutazione globale dell'investimento
Analisi delle perizie tecniche
Analisi su eventuali abusi edilizi
Analisi sugli avvisi di vendita e ordinanze del giudice
Analisi su eventuali diritti di terzi sull'immobile
Consulenza post-aggiudicazione asta immobiliare
Ottenimento finanziamenti tramite professionisti dedicati
Consulenza legale tramite Studio partner
Consulenza costi di ristrutturazione immobiliare con nostri partner affiliati.



Caratteristiche principali
Codice
155/2024 Ser14genn26
Città
Casalzuigno
Categoria
Appartamento
Prezzo
48.000 €
Locali
5
Camere
2
Bagni
1
Mq
88
Balconi
1
Piano
1
Classe energetica
G
Stato Immobile
Buono
Grado
Economico
Tipo Soggiorno
Soggiorno
Tipo Cucina
Abitabile
Riscaldamento
Autonomo
Tipo Riscaldam.
Caldaia
Tipo Impianto
Radiatori
Acqua Calda
Autonoma
Infissi
PVC Doppio Vetro
Serramenti
Buono
Persiana
Tapparella PVC
Pavim. Giorno
Ceramica
Pavim. Notte
Ceramica
Pavim. Cucina
Ceramica
Pavim. Bagno
Ceramica

Accessori: Doppi Vetri, Porta Blindata, Ripostiglio

Mappa
Via VALCUVIA 20, Casalzuigno (VA)
Condividi su
Cookie preference