Italiano
145.605 €

AMPIO TRILOCALE CON BALCONI CON CANTINA E BOX A MEDA

Appartamento in vendita • Meda
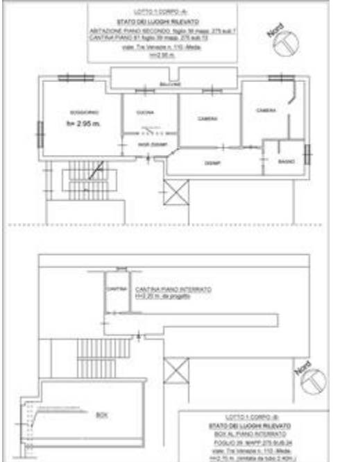
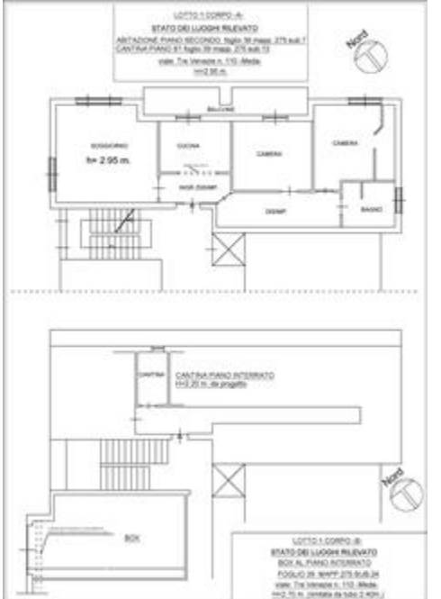
L’abitazione è situata al piano secondo con pertinenza cantina al piano interrato.
L’abitazione è raggiungibile dal vano scala comune o con ascensore.
La porta di ingresso blindata accede alla zona giorno dell’abitazione costituita da:
un disimpegno, cucina abitabile con accesso mediante porta/finestra a balcone, ampio soggiorno con n. 2 finestre
Note: le porte sono in legno/vetro, la cucina è abitale ed è collegata al disimpegno con una porta.
La zona notte è costituita da:
un disimpegno
camera da letto adiacente la cucina e collegata con porta/finestra al balcone
camera da letto matrimoniale con finestra, bagno con sanitari e doccia, munito di finestra

IMMOBILE ALL ASTA, contattaci per fissare una prima consulenza presso il nostro Studio.
Gardemar Srl offre servizi professionali di consulenza nell'ambito di procedure esecutive immobiliari e fallimentari.
La nostra missione è quella di avvicinare il privato e le società agli acquisti di immobili oggetto di procedura esecutiva immobiliare e, al contempo, cercare di aiutare i soggetti esecutati nel risolvere la propria posizione debitoria grazie ad accordi di saldo e stralcio con i relativi creditori.
Ad oggi Gardemar gestisce un network di oltre 20 filiali autonome su territorio nazionale ( Filiali Gardemar • Gardemar Aste Immobiliari ) e dispone della collaborazione di uno Studio Legale.

Servizi di consulenza offerti:

Aste giudiziarie immobiliari
Esecuzioni immobiliari
Procedure fallimentari
Ricerca di immobili all'asta
Procedura di saldo e stralcio
Aste telematiche immobiliari
Business plan per i costi di partecipazione all'asta
Valutazione globale dell'investimento
Analisi delle perizie tecniche
Analisi su eventuali abusi edilizi
Analisi sugli avvisi di vendita e ordinanze del giudice
Analisi su eventuali diritti di terzi sull'immobile
Consulenza post-aggiudicazione asta immobiliare
Ottenimento finanziamenti tramite professionisti dedicati
Consulenza legale tramite Studio partner
Consulenza costi di ristrutturazione immobiliare con nostri partner affiliati.

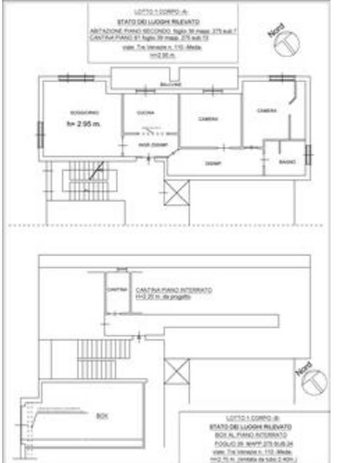
L’abitazione è situata al piano secondo con pertinenza cantina al piano interrato.
L’abitazione è raggiungibile dal vano scala comune o con ascensore.
La porta di ingresso blindata accede alla zona giorno dell’abitazione costituita da:
un disimpegno, cucina abitabile con accesso mediante porta/finestra a balcone, ampio soggiorno con n. 2 finestre
Note: le porte sono in legno/vetro, la cucina è abitale ed è collegata al disimpegno con una porta.
La zona notte è costituita da:
un disimpegno
camera da letto adiacente la cucina e collegata con porta/finestra al balcone
camera da letto matrimoniale con finestra, bagno con sanitari e doccia, munito di finestra

IMMOBILE ALL ASTA, contattaci per fissare una prima consulenza presso il nostro Studio.
Gardemar Srl offre servizi professionali di consulenza nell'ambito di procedure esecutive immobiliari e fallimentari.
La nostra missione è quella di avvicinare il privato e le società agli acquisti di immobili oggetto di procedura esecutiva immobiliare e, al contempo, cercare di aiutare i soggetti esecutati nel risolvere la propria posizione debitoria grazie ad accordi di saldo e stralcio con i relativi creditori.
Ad oggi Gardemar gestisce un network di oltre 20 filiali autonome su territorio nazionale ( Filiali Gardemar • Gardemar Aste Immobiliari ) e dispone della collaborazione di uno Studio Legale.

Servizi di consulenza offerti:

Aste giudiziarie immobiliari
Esecuzioni immobiliari
Procedure fallimentari
Ricerca di immobili all'asta
Procedura di saldo e stralcio
Aste telematiche immobiliari
Business plan per i costi di partecipazione all'asta
Valutazione globale dell'investimento
Analisi delle perizie tecniche
Analisi su eventuali abusi edilizi
Analisi sugli avvisi di vendita e ordinanze del giudice
Analisi su eventuali diritti di terzi sull'immobile
Consulenza post-aggiudicazione asta immobiliare
Ottenimento finanziamenti tramite professionisti dedicati
Consulenza legale tramite Studio partner
Consulenza costi di ristrutturazione immobiliare con nostri partner affiliati.



Caratteristiche principali
Codice
177/2024 Ser19nov25
Città
Meda
Categoria
Appartamento
Prezzo
145.605 €
Locali
5
Camere
2
Bagni
2
Mq
99
Box
1
Mq Box
30
Balconi
2
Piano
2
Classe energetica
G
Stato Immobile
Buono
Grado
Medio
Tipo Soggiorno
Soggiorno
Tipo Cucina
Abitabile
Riscaldamento
Autonomo
Tipo Riscaldam.
Caldaia
Tipo Impianto
Radiatori
Fonte Energetica
Metano
Acqua Calda
Autonoma
Raffrescamento
Split
Infissi
Legno Doppio Vetro
Serramenti
Buono
Persiana
Oscurante PVC
Pavim. Giorno
Ceramica
Pavim. Notte
Ceramica
Pavim. Cucina
Ceramica
Pavim. Bagno
Ceramica

Accessori: Aria Condizionata, Ascensore, Doppi Vetri, Porta Blindata, Ripostiglio

Video
Condividi su
Cookie preference