Italiano
71.250 €

Appartamento in Vendita a Bologna (BO)

Appartamento in vendita • Bologna - via Emilia Ponente, 325
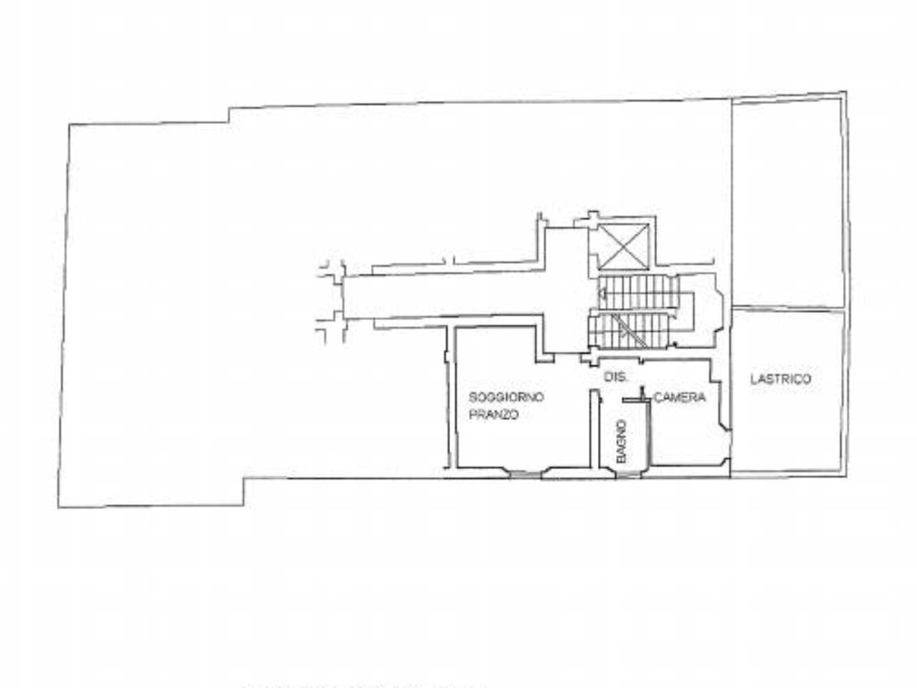
Proponiamo in vendita un appartamento in asta situato nel comune di Bologna. L'immobile, di classe energetica F, dispone di tre vani e si estende su una superficie di 52 metri quadrati.

L'appartamento si presenta come un'ottima opportunità per chi desidera investire nel settore immobiliare, con un prezzo di 71.250 euro. Situato in una zona strategica e ben collegata, l'immobile offre la possibilità di personalizzare gli spazi interni secondo le proprie esigenze.

Prenota una consulenza con il nostro referente, per trovare l'occasione che fa al caso tuo e anche per ottenere il miglior servizio mutuo con le nostre banche partner.

L'esattezza di tutti i dati pubblicati sarà confermata in sede di consulenza.
Foto e planimetrie consultabili presso le nostre sedi.

Visita il nostro sito

Aste Generali
Società n°1 in Italia nel settore immobiliare.

astegenerali.com
Caratteristiche principali
Codice
215/2023 9467 BO
Città
Bologna
Categoria
Appartamento
Prezzo
71.250 €
Locali
3
Camere
1
Bagni
1
Mq
52
Terrazzi
1
mq Terrazzo
20
Piano
1
Classe energetica
F
Stato Immobile
Buono
Grado
Economico
Posizione
Centro

Accessori: Doppi Vetri, Passaggio Automobilistico, Passaggio Pedonale

Mappa
via Emilia Ponente 325, Bologna (BO)
Video
Condividi su
Cookie preference