Italiano
167.672 €

VILLA SINGOLA CON AMPIO TERRENO PERTINENZIALE

Villa in vendita • Albizzate - Via Mazzini , 2
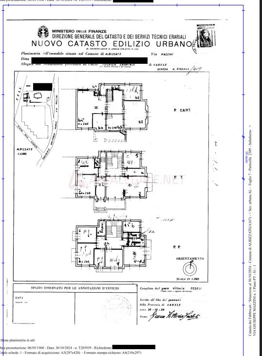
villa singola con portico in legno (annesso alla villa) e terreno residenziale - la villa degli anni ’60 è disposta su tre livelli (piano interrato, piano terra e piano primo) e ha una superficie commerciale di 393,00 mq.
Al piano cantina si accede da scala interna tramite porta di servizio sul retro della casa e dal locale cucina ed è composto da locali sgombero, centrale termica e lavatoio. Il piano terra è composto da ingresso, soggiorno, studio, disimpegno, dispensa, due bagni, cucina e vano scala. Al piano primo vi è un ampio disimpegno, quattro camere da letto, due bagni, un locale guardaroba e quattro balconi. Il terreno è un’area a verde interclusa.

IMMOBILE ALL ASTA, contattaci per fissare una prima consulenza presso il nostro Studio.
Gardemar Srl offre servizi professionali di consulenza nell'ambito di procedure esecutive immobiliari e fallimentari.
La nostra missione è quella di avvicinare il privato e le società agli acquisti di immobili oggetto di procedura esecutiva immobiliare e, al contempo, cercare di aiutare i soggetti esecutati nel risolvere la propria posizione debitoria grazie ad accordi di saldo e stralcio con i relativi creditori.
Ad oggi Gardemar gestisce un network di oltre 20 filiali autonome su territorio nazionale ( Filiali Gardemar • Gardemar Aste Immobiliari ) e dispone della collaborazione di uno Studio Legale.

Servizi di consulenza offerti:

Aste giudiziarie immobiliari
Esecuzioni immobiliari
Procedure fallimentari
Ricerca di immobili all'asta
Procedura di saldo e stralcio
Aste telematiche immobiliari
Business plan per i costi di partecipazione all'asta
Valutazione globale dell'investimento
Analisi delle perizie tecniche
Analisi su eventuali abusi edilizi
Analisi sugli avvisi di vendita e ordinanze del giudice
Analisi su eventuali diritti di terzi sull'immobile
Consulenza post-aggiudicazione asta immobiliare
Ottenimento finanziamenti tramite professionisti dedicati
Consulenza legale tramite Studio partner
Consulenza costi di ristrutturazione immobiliare con nostri partner affiliati.

villa singola con portico in legno (annesso alla villa) e terreno residenziale - la villa degli anni ’60 è disposta su tre livelli (piano interrato, piano terra e piano primo) e ha una superficie commerciale di 393,00 mq.
Al piano cantina si accede da scala interna tramite porta di servizio sul retro della casa e dal locale cucina ed è composto da locali sgombero, centrale termica e lavatoio. Il piano terra è composto da ingresso, soggiorno, studio, disimpegno, dispensa, due bagni, cucina e vano scala. Al piano primo vi è un ampio disimpegno, quattro camere da letto, due bagni, un locale guardaroba e quattro balconi. Il terreno è un’area a verde interclusa.

IMMOBILE ALL ASTA, contattaci per fissare una prima consulenza presso il nostro Studio.
Gardemar Srl offre servizi professionali di consulenza nell'ambito di procedure esecutive immobiliari e fallimentari.
La nostra missione è quella di avvicinare il privato e le società agli acquisti di immobili oggetto di procedura esecutiva immobiliare e, al contempo, cercare di aiutare i soggetti esecutati nel risolvere la propria posizione debitoria grazie ad accordi di saldo e stralcio con i relativi creditori.
Ad oggi Gardemar gestisce un network di oltre 20 filiali autonome su territorio nazionale ( Filiali Gardemar • Gardemar Aste Immobiliari ) e dispone della collaborazione di uno Studio Legale.

Servizi di consulenza offerti:

Aste giudiziarie immobiliari
Esecuzioni immobiliari
Procedure fallimentari
Ricerca di immobili all'asta
Procedura di saldo e stralcio
Aste telematiche immobiliari
Business plan per i costi di partecipazione all'asta
Valutazione globale dell'investimento
Analisi delle perizie tecniche
Analisi su eventuali abusi edilizi
Analisi sugli avvisi di vendita e ordinanze del giudice
Analisi su eventuali diritti di terzi sull'immobile
Consulenza post-aggiudicazione asta immobiliare
Ottenimento finanziamenti tramite professionisti dedicati
Consulenza legale tramite Studio partner
Consulenza costi di ristrutturazione immobiliare con nostri partner affiliati.





Caratteristiche principali
Codice
301/2024 Ser27genn25lot1
Città
Albizzate
Categoria
Villa
Prezzo
167.672 €
Locali
14
Camere
4
Bagni
4
Mq
393
Mq Giardino
800
Balconi
4
Classe energetica
G
Stato Immobile
Discrete Condizioni
Grado
Medio
Tipo Soggiorno
Soggiorno
Tipo Cucina
Abitabile
Riscaldamento
Autonomo
Tipo Riscaldam.
Caldaia
Tipo Impianto
Radiatori
Acqua Calda
Autonoma
Infissi
Legno
Serramenti
Discreto
Persiana
Oscurante PVC
Pavim. Giorno
Moquette
Pavim. Notte
Moquette
Pavim. Cucina
Ceramica
Pavim. Bagno
Ceramica

Accessori: Lavanderia, Ripostiglio

Mappa
Via Mazzini 2, Albizzate (VA)
Video
Condividi su
Cookie preference