Italiano
385.425 €

VILLA CON PARCO E PISCINA A SONDRIO

Villa in vendita • Sondrio - Via Valeriana, 20
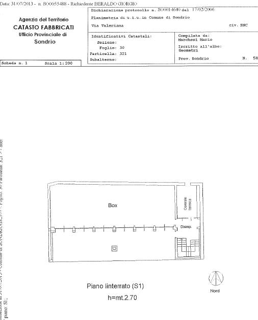
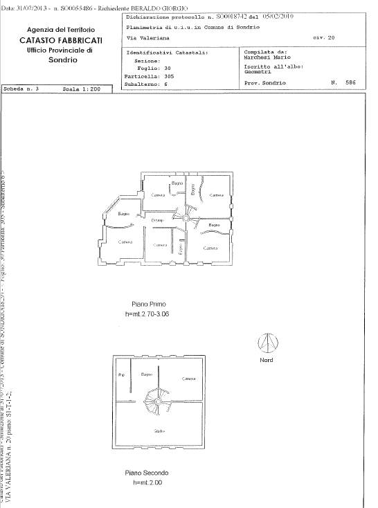
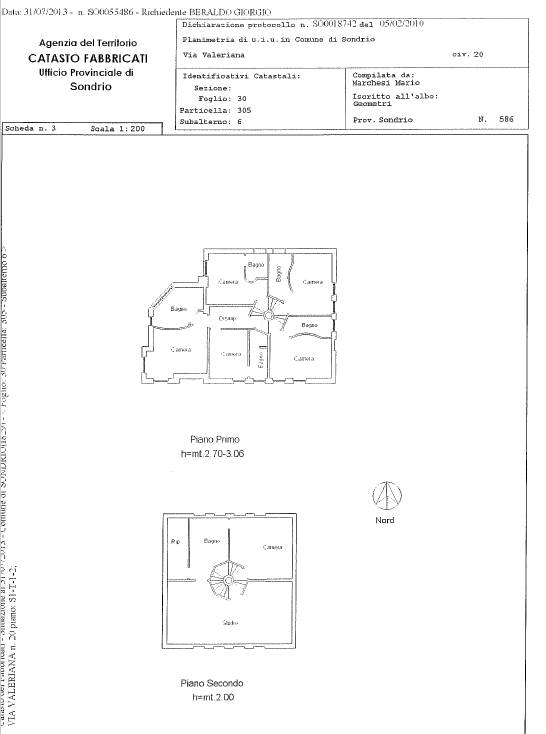
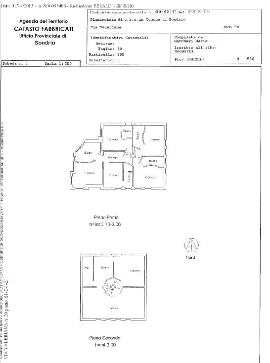
Le unità immobiliari oggetto di esecuzione costituiscono una elegante villa unifamiliare in Via Valeriana n. 20 del Comune di Sondrio. Tale complesso è disposto su n. 4 piani di cui n. 1 interrato e n. 3 fuori terra.
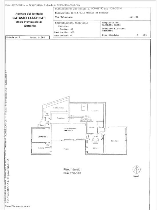
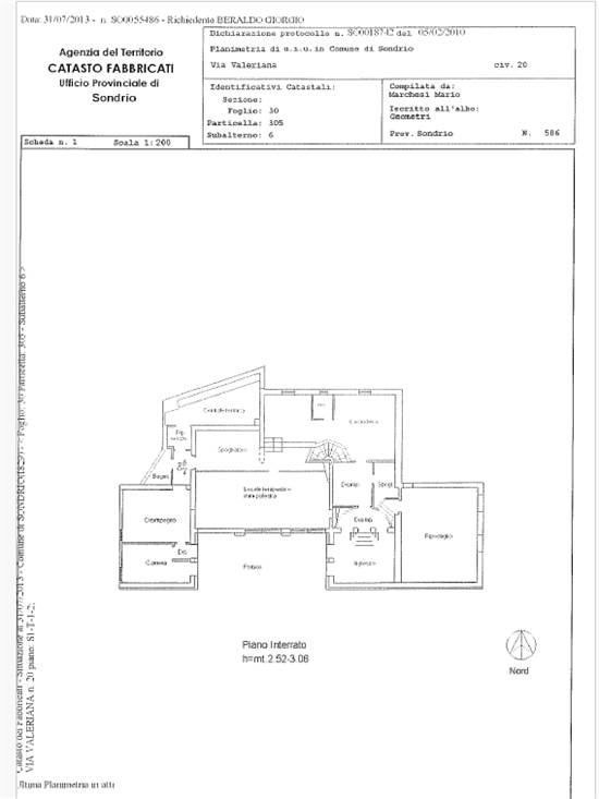
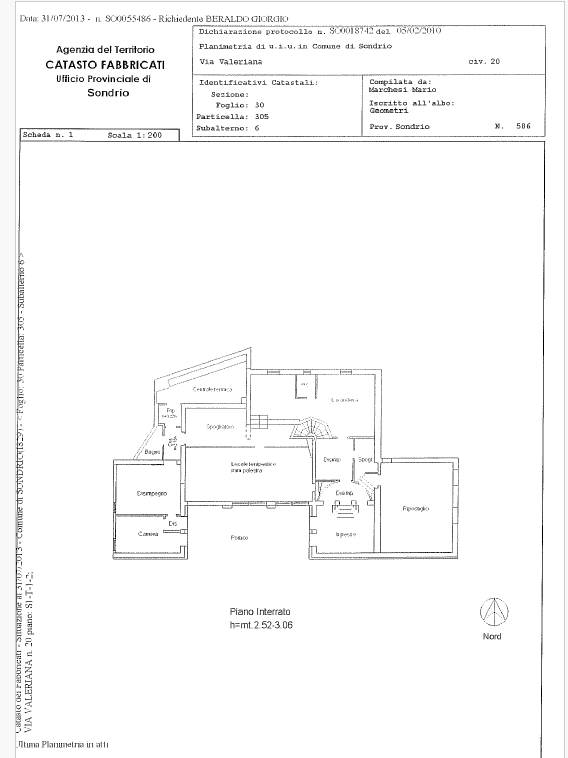
A piano interrato sono ubicati: autorimessa (n. 6 posti), locali di servizio
(lavanderia, centrale termica), palestra, zona idromassaggio/sauna, spogliatoio, salotto, bagni e ingresso dal piano strada.
A piano terra sono ubicati: cucina con dispensa, soggiorno e n. 2 bagni.
A piano primo sono ubicati: n. 5 camere ognuna con bagno. A piano secondo sono ubicati: studio, camera e bagno. A piano terra si trova un grande giardino con fontane, mentre a piano primo è ubicata una piscina aperta. La villa è in posizione molto riservata e le finiture sono molto signorili.

IMMOBILE ALL ASTA, contattaci per fissare una prima consulenza presso il nostro Studio.
Gardemar Srl offre servizi professionali di consulenza nell'ambito di procedure esecutive immobiliari e fallimentari.
La nostra missione è quella di avvicinare il privato e le società agli acquisti di immobili oggetto di procedura esecutiva immobiliare e, al contempo, cercare di aiutare i soggetti esecutati nel risolvere la propria posizione debitoria grazie ad accordi di saldo e stralcio con i relativi creditori.
Ad oggi Gardemar gestisce un network di oltre 20 filiali autonome su territorio nazionale ( Filiali Gardemar • Gardemar Aste Immobiliari ) e dispone della collaborazione di uno Studio Legale.

Servizi di consulenza offerti:

Aste giudiziarie immobiliari
Esecuzioni immobiliari
Procedure fallimentari
Ricerca di immobili all'asta
Procedura di saldo e stralcio
Aste telematiche immobiliari
Business plan per i costi di partecipazione all'asta
Valutazione globale dell'investimento
Analisi delle perizie tecniche
Analisi su eventuali abusi edilizi
Analisi sugli avvisi di vendita e ordinanze del giudice
Analisi su eventuali diritti di terzi sull'immobile
Consulenza post-aggiudicazione asta immobiliare
Ottenimento finanziamenti tramite professionisti dedicati
Consulenza legale tramite Studio partner
Consulenza costi di ristrutturazione immobiliare con nostri partner affiliati.

Caratteristiche principali
Codice
322/2021 Ser29genn26
Città
Sondrio
Categoria
Villa
Prezzo
385.425 €
Locali
25
Mq
923
Mq Giardino
1400
Classe energetica
F
Stato Immobile
Ottimo
Grado
Signorile

Accessori: Doppi Vetri, Piscina, Porta Blindata, Vasca Idromassaggio

Mappa
Via Valeriana 20, Sondrio (SO)
Video
Condividi su
Cookie preference