Italiano
105.000 €

TRILOCALE CON DOPPIO BOX E BALCONE A MERATE

Appartamento in vendita • Merate - Via 2 giugno, 1
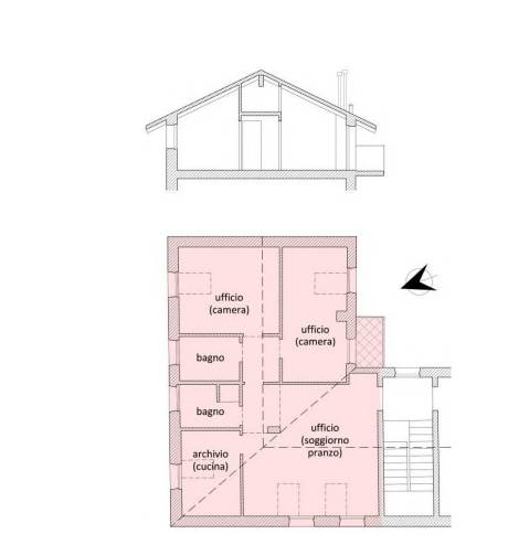
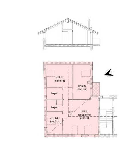
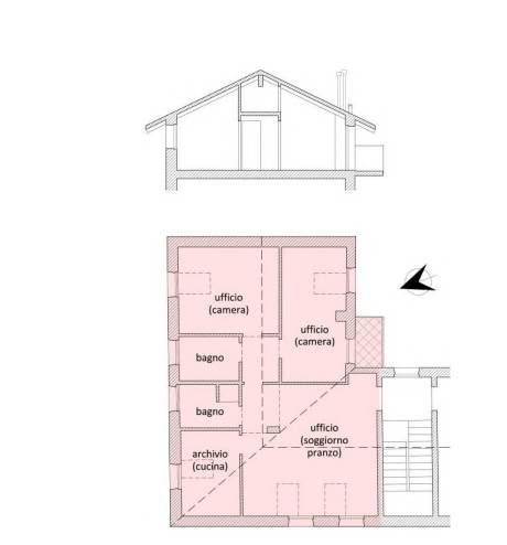
In complesso storico oggetto di completa ristrutturazione a metà degli anni '90, trilocale al secondo ed ultimo piano , con annessi doppi servizi igienici e
piccolo balcone, oltre ad un box doppio al piano interrato.

IMMOBILE ALL ASTA, contattaci per fissare una prima consulenza presso il nostro Studio.
Gardemar Srl offre servizi professionali di consulenza nell'ambito di procedure esecutive immobiliari e fallimentari.
La nostra missione è quella di avvicinare il privato e le società agli acquisti di immobili oggetto di procedura esecutiva immobiliare e, al contempo, cercare di aiutare i soggetti esecutati nel risolvere la propria posizione debitoria grazie ad accordi di saldo e stralcio con i relativi creditori.
Ad oggi Gardemar gestisce un network di oltre 20 filiali autonome su territorio nazionale ( Filiali Gardemar • Gardemar Aste Immobiliari ) e dispone della collaborazione di uno Studio Legale.

Servizi di consulenza offerti:

Aste giudiziarie immobiliari
Esecuzioni immobiliari
Procedure fallimentari
Ricerca di immobili all'asta
Procedura di saldo e stralcio
Aste telematiche immobiliari
Business plan per i costi di partecipazione all'asta
Valutazione globale dell'investimento
Analisi delle perizie tecniche
Analisi su eventuali abusi edilizi
Analisi sugli avvisi di vendita e ordinanze del giudice
Analisi su eventuali diritti di terzi sull'immobile
Consulenza post-aggiudicazione asta immobiliare
Ottenimento finanziamenti tramite professionisti dedicati
Consulenza legale tramite Studio partner
Consulenza costi di ristrutturazione immobiliare con nostri partner affiliati.


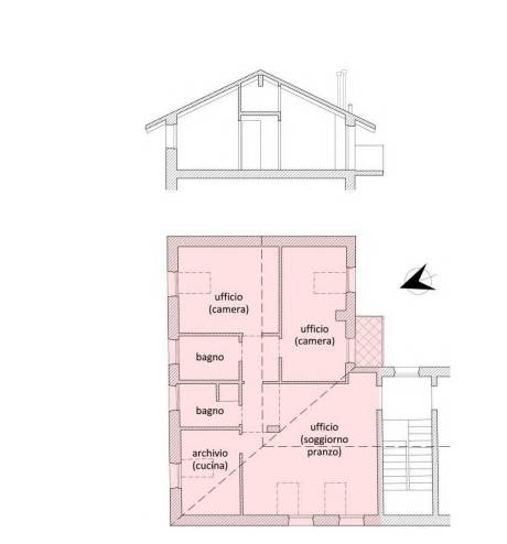
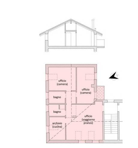
In complesso storico oggetto di completa ristrutturazione a metà degli anni '90, trilocale al secondo ed ultimo piano , con annessi doppi servizi igienici e
piccolo balcone, oltre ad un box doppio al piano interrato.

IMMOBILE ALL ASTA, contattaci per fissare una prima consulenza presso il nostro Studio.
Gardemar Srl offre servizi professionali di consulenza nell'ambito di procedure esecutive immobiliari e fallimentari.
La nostra missione è quella di avvicinare il privato e le società agli acquisti di immobili oggetto di procedura esecutiva immobiliare e, al contempo, cercare di aiutare i soggetti esecutati nel risolvere la propria posizione debitoria grazie ad accordi di saldo e stralcio con i relativi creditori.
Ad oggi Gardemar gestisce un network di oltre 20 filiali autonome su territorio nazionale ( Filiali Gardemar • Gardemar Aste Immobiliari ) e dispone della collaborazione di uno Studio Legale.

Servizi di consulenza offerti:

Aste giudiziarie immobiliari
Esecuzioni immobiliari
Procedure fallimentari
Ricerca di immobili all'asta
Procedura di saldo e stralcio
Aste telematiche immobiliari
Business plan per i costi di partecipazione all'asta
Valutazione globale dell'investimento
Analisi delle perizie tecniche
Analisi su eventuali abusi edilizi
Analisi sugli avvisi di vendita e ordinanze del giudice
Analisi su eventuali diritti di terzi sull'immobile
Consulenza post-aggiudicazione asta immobiliare
Ottenimento finanziamenti tramite professionisti dedicati
Consulenza legale tramite Studio partner
Consulenza costi di ristrutturazione immobiliare con nostri partner affiliati.


Caratteristiche principali
Codice
6/2023 Ser16dic25
Città
Merate
Categoria
Appartamento
Prezzo
105.000 €
Locali
5,5
Mq
106
Box
2
Mq Box
34
Piano
2
Classe energetica
F
Stato Immobile
Buono
Grado
Medio
Riscaldamento
Autonomo
Tipo Riscaldam.
Caldaia
Tipo Impianto
Radiatori
Acqua Calda
Autonoma
Raffrescamento
Split
Infissi
PVC Doppio Vetro
Serramenti
Buono
Pavimento
Parquet
Mappa
Via 2 giugno 1, Merate (LC)
Condividi su
Cookie preference