Italiano
137.856 €

UNITA' IMMOBILIARE CON GIARDINO E BOX A SANGIANO

Appartamento in vendita • Sangiano - Via IV Novembre , 36
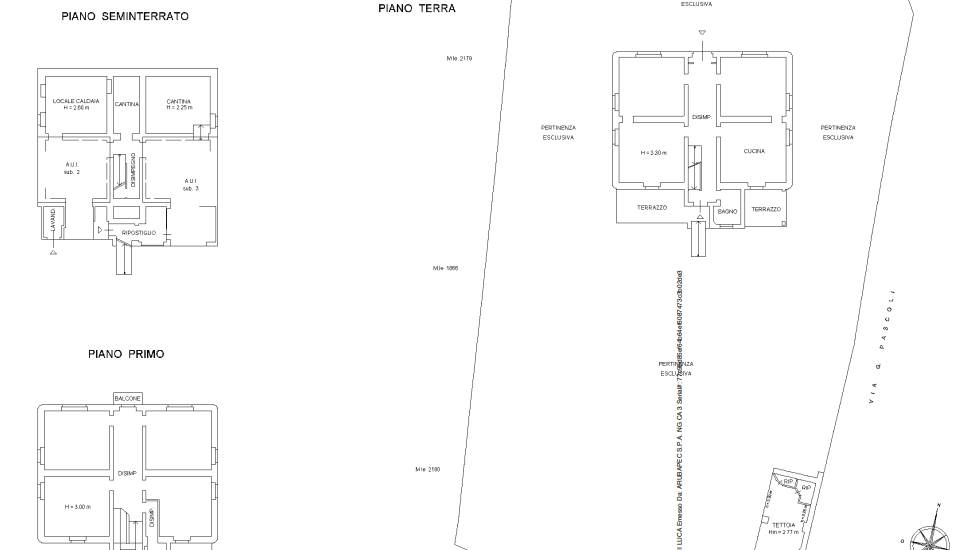
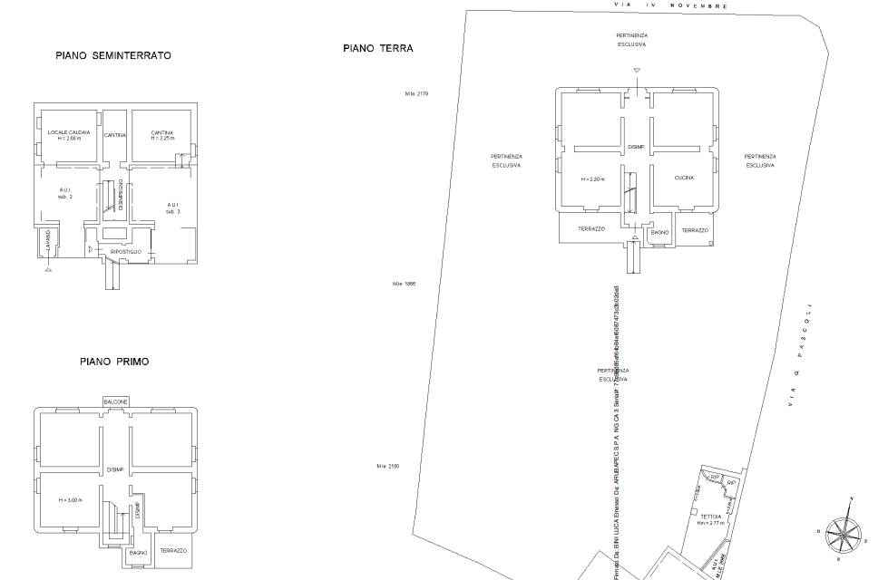
Unità immobiliare disposta su due livelli fuori terra (piano terreno e primo) oltre ad un seminterrato, composta al piano terra da ingresso/disimpegno, soggiorno, cucina, due camere ed un bagno (oltre a due terrazzi), mentre al piano primo si trovano ulteriori quattro stanze, un corridoio ed un bagno (oltre ad un terrazzo). Al piano seminterrato si trovano due cantine, un locale caldaia, un disimpegno ed un ripostiglio oltre a due box auto (censiti in con subalterni autonomi). Completa la proprietà un’ampia area esterna ed un piccolo accessorio in corpo staccato.

IMMOBILE ALL ASTA, contattaci per fissare una prima consulenza presso il nostro Studio.
Gardemar Srl offre servizi professionali di consulenza nell'ambito di procedure esecutive immobiliari e fallimentari.
La nostra missione è quella di avvicinare il privato e le società agli acquisti di immobili oggetto di procedura esecutiva immobiliare e, al contempo, cercare di aiutare i soggetti esecutati nel risolvere la propria posizione debitoria grazie ad accordi di saldo e stralcio con i relativi creditori.
Ad oggi Gardemar gestisce un network di oltre 20 filiali autonome su territorio nazionale ( Filiali Gardemar • Gardemar Aste Immobiliari ) e dispone della collaborazione di uno Studio Legale.

Servizi di consulenza offerti:

Aste giudiziarie immobiliari
Esecuzioni immobiliari
Procedure fallimentari
Ricerca di immobili all'asta
Procedura di saldo e stralcio
Aste telematiche immobiliari
Business plan per i costi di partecipazione all'asta
Valutazione globale dell'investimento
Analisi delle perizie tecniche
Analisi su eventuali abusi edilizi
Analisi sugli avvisi di vendita e ordinanze del giudice
Analisi su eventuali diritti di terzi sull'immobile
Consulenza post-aggiudicazione asta immobiliare
Ottenimento finanziamenti tramite professionisti dedicati
Consulenza legale tramite Studio partner
Consulenza costi di ristrutturazione immobiliare con nostri partner affiliati.



Caratteristiche principali
Codice
85/2023 Ser02febb26lot1
Città
Sangiano
Categoria
Appartamento
Prezzo
137.856 €
Locali
14,5
Camere
5
Bagni
5
Mq
472
Box
2
Mq Box
40
Balconi
3
Classe energetica
G
Stato Immobile
Buono
Grado
Signorile
Giardino
Privato
Tipo Soggiorno
Doppio
Tipo Cucina
Abitabile
Riscaldamento
Autonomo
Tipo Riscaldam.
Caldaia
Tipo Impianto
Radiatori
Acqua Calda
Autonoma
Infissi
Legno Doppio Vetro
Serramenti
Buono
Persiana
Tapparella Legno
Pavim. Giorno
Ceramica
Pavim. Notte
Ceramica
Pavim. Cucina
Ceramica
Pavim. Bagno
Ceramica
Pavimento
Ceramica
Mappa
Via IV Novembre 36, Sangiano (VA)
Condividi su
Cookie preference