Italiano
72.075 €

PORZIONE DI CASA

Appartamento in vendita • Thiene - Via Monte Cengio 96
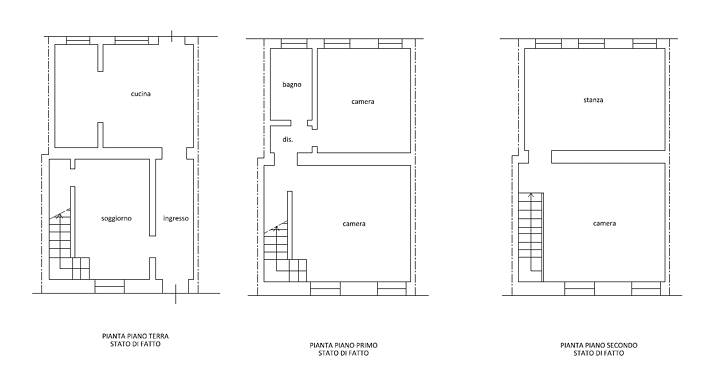
abitazione terra-cielo accessibile da via monte cengio n. 96 a thiene (vi). l’abitazione, di n. 3 (tre) piani fuori terra è così sviluppata:
Piano terra: corridoio d’ingresso, cucina abitabile con cucinino, soggiorno;
Piano 1°: due camere e bagno finestrato;
Piano 2°: due stanze

Immobile all'asta, contattaci per fissare una prima consulenza gratuita presso il nostro Studio.
Siamo aperti dal lunedì al sabato, su appuntamento.
AD ASTA affiliato Gardemar Srl offre servizi professionali di consulenza nell'ambito di procedure
esecutive immobiliari e fallimentari.
La nostra missione è quella di avvicinare il privato e le società agli acquisti di immobili oggetto di
procedura esecutiva immobiliare e, al contempo, cercare di aiutare i soggetti esecutati nel
risolvere la propria posizione debitoria grazie ad accordi di saldo e stralcio con i relativi creditori.
IL NOSTRO TEAM DI ESPERTI E’ SPECIALIZZATO ANCHE IN ACQUISTO PRE-ASTA.
Ad oggi Gardemar vede un network di 15 filiali autonome su territorio nazionale e dispone della
collaborazione di uno Studio Legale partner.
Servizi di consulenza offerti:
Aste giudiziarie immobiliari
Esecuzioni immobiliari
Procedure fallimentari
Ricerca di immobili all'asta
Procedura di saldo e stralcio
Aste telematiche immobiliari
Business plan per i costi di partecipazione all'asta
Valutazione globale dell'investimento
Analisi delle perizie tecniche
Analisi su eventuali abusi edilizi
Analisi sugli avvisi di vendita e ordinanze del giudice
Analisi su eventuali diritti di terzi sull'immobile
Consulenza post-aggiudicazione asta immobiliare
Ottenimento finanziamenti tramite professionisti dedicati
Consulenza legale tramite Studio Legale partner
Consulenza costi di ristrutturazione immobiliare con nostri partner affiliati.
Caratteristiche principali
Codice
ADA224/2020 2feb
Città
Thiene
Categoria
Appartamento
Prezzo
72.075 €
Locali
8
Camere
4
Bagni
1
Mq
160
Mq Giardino
165
Classe energetica
G
Stato Immobile
Buono
Grado
Medio
Giardino
Privato
Tipo Soggiorno
Soggiorno
Tipo Cucina
Abitabile
Riscaldamento
Autonomo
Tipo Riscaldam.
Caldaia
Tipo Impianto
Radiatori
Fonte Energetica
Metano
Acqua Calda
Autonoma

Accessori: Armadio a Muro, Ripostiglio

Mappa
Via Monte Cengio 96 , Thiene (VI)
Condividi su
Cookie preference