Italiano
75.750 €

APPARTAMENTO

Appartamento in vendita • Salzano - Via enrico fermi, 7
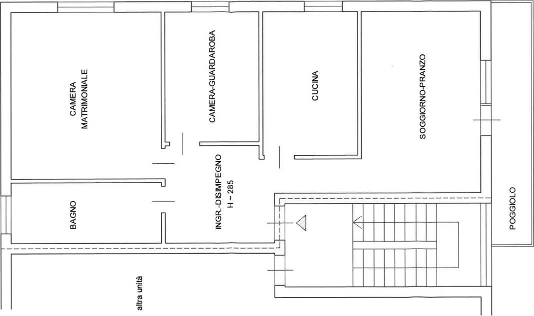
Appartamento al piano secondo, della superficie catastale totale di 80 mq e garage al piano terra, della superficie catastale totale di 10 mq, facenti parte del Condominio Primavera. L'appartamento risulta così distribuito: ingresso - disimpegno, soggiorno - pranzo con antistante poggiolo, cucina, camera - guardaroba, camera matrimoniale, bagno.
Immobile all'asta, contattaci per fissare una prima consulenza gratuita presso il nostro Studio.
Siamo aperti dal lunedì al sabato, su appuntamento.

AD ASTA affiliato Gardemar Srl offre servizi professionali di consulenza nell'ambito di procedure esecutive immobiliari e fallimentari.

La nostra missione è quella di avvicinare il privato e le società agli acquisti di immobili oggetto di procedura esecutiva immobiliare e, al contempo, cercare di aiutare i soggetti esecutati nel risolvere la propria posizione debitoria grazie ad accordi di saldo e stralcio con i relativi creditori.

IL NOSTRO TEAM DI ESPERTI E’ SPECIALIZZATO ANCHE IN ACQUISTO PRE-ASTA.

Ad oggi Gardemar vede un network di 19 filiali autonome su territorio nazionale e dispone della collaborazione di uno Studio Legale partner.

Servizi di consulenza offerti:

Aste giudiziarie immobiliari
Esecuzioni immobiliari
Procedure fallimentari
Ricerca di immobili all'asta
Procedura di saldo e stralcio
Aste telematiche immobiliari
Business plan per i costi di partecipazione all'asta
Valutazione globale dell'investimento
Analisi delle perizie tecniche
Analisi su eventuali abusi edilizi
Analisi sugli avvisi di vendita e ordinanze del giudice
Analisi su eventuali diritti di terzi sull'immobile
Consulenza post-aggiudicazione asta immobiliare
Ottenimento finanziamenti tramite professionisti dedicati
Consulenza legale tramite Studio Legale partner
Consulenza costi di ristrutturazione immobiliare con nostri partner affiliati.
Caratteristiche principali
Codice
ADA82/2024 U 28GEN
Città
Salzano
Categoria
Appartamento
Prezzo
75.750 €
Locali
4
Camere
2
Bagni
1
Mq
80
Box
1
Terrazzi
1
Piano
2
Classe energetica
G
Stato Immobile
Buono
Grado
Medio
Tipo Soggiorno
Soggiorno
Tipo Cucina
Abitabile
Riscaldamento
Autonomo
Tipo Riscaldam.
Caldaia a Condensazione
Tipo Impianto
Radiatori
Fonte Energetica
Metano
Acqua Calda
Autonoma
Raffrescamento
Split
Infissi
Legno Doppio Vetro
Serramenti
Buono
Persiana
Tapparella PVC
Pavim. Giorno
Gres Porcellanato
Pavim. Notte
Gres Porcellanato
Pavim. Cucina
Gres Porcellanato
Pavim. Bagno
Ceramica

Accessori: Aria Condizionata

Mappa
Via enrico fermi 7, Salzano (VE)
Condividi su
Cookie preference