Italiano
92.775 €

VILLA CASSOLA

Villa in vendita • Cassola - Via Croceron, 23
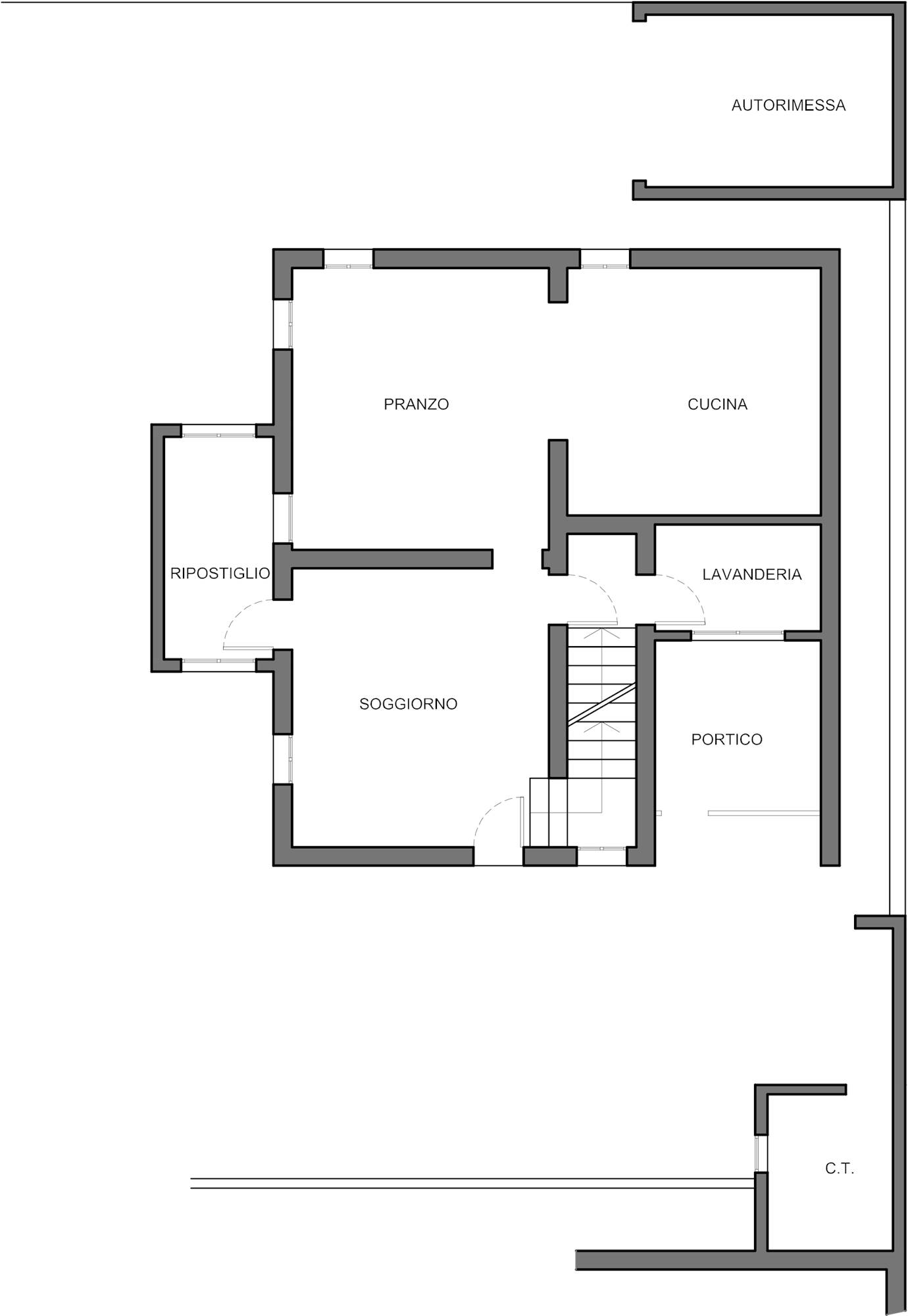
Villa su tre livelli, di cui due fuori terra con scoperto esclusivo, ove si trova l’autorimessa ed il locale accessorio adibito a centrale termica. L’abitazione si sviluppa su due livelli fuori terra ed è composta al piano terra da soggiorno, ampio locale open space per pranzo e cucina, ripostiglio e lavanderia-bagno, mentre al piano primo si trovano tre camere, di cui una con bagno esclusivo e secondo bagno di piano. A livello sottostrada, raggiungibile da scala interna, si trova locale cantina. Su tutto il perimetro dell’edificio, si sviluppa corte ad uso esclusivo e che il perito rileva essere prevalentemente pavimentata ed adibita a giardino e parcheggio delle vetture. Al piano terra, infine, si trova autorimessa indipendente, accessibile dallo scoperto pertinenziale ed un locale ove è stata alloggiata la caldaia. Classe energetica G.
Immobile all'asta, contattaci per fissare una prima consulenza gratuita presso il nostro Studio.
Siamo aperti dal lunedì al sabato, su appuntamento.

AD ASTA affiliato Gardemar Srl offre servizi professionali di consulenza nell'ambito di procedure esecutive immobiliari e fallimentari.

La nostra missione è quella di avvicinare il privato e le società agli acquisti di immobili oggetto di procedura esecutiva immobiliare e, al contempo, cercare di aiutare i soggetti esecutati nel risolvere la propria posizione debitoria grazie ad accordi di saldo e stralcio con i relativi creditori.

IL NOSTRO TEAM DI ESPERTI E’ SPECIALIZZATO ANCHE IN ACQUISTO PRE-ASTA.

Ad oggi Gardemar vede un network di 19 filiali autonome su territorio nazionale e dispone della collaborazione di uno Studio Legale partner.

Servizi di consulenza offerti:

Aste giudiziarie immobiliari
Esecuzioni immobiliari
Procedure fallimentari
Ricerca di immobili all'asta
Procedura di saldo e stralcio
Aste telematiche immobiliari
Business plan per i costi di partecipazione all'asta
Valutazione globale dell'investimento
Analisi delle perizie tecniche
Analisi su eventuali abusi edilizi
Analisi sugli avvisi di vendita e ordinanze del giudice
Analisi su eventuali diritti di terzi sull'immobile
Consulenza post-aggiudicazione asta immobiliare
Ottenimento finanziamenti tramite professionisti dedicati
Consulenza legale tramite Studio Legale partner
Consulenza costi di ristrutturazione immobiliare con nostri partner affiliati.
Caratteristiche principali
Codice
ADA84/2025 U 19GEN
Città
Cassola
Categoria
Villa
Prezzo
92.775 €
Locali
8
Camere
3
Bagni
3
Mq
170
Box
1
Classe energetica
G
Stato Immobile
Buono
Grado
Medio
Lati Liberi
4
Giardino
Privato
Tipo Soggiorno
Soggiorno
Tipo Cucina
Abitabile
Riscaldamento
Autonomo
Tipo Riscaldam.
Caldaia
Tipo Impianto
Radiatori
Fonte Energetica
Metano
Acqua Calda
Autonoma
Infissi
Legno Doppio Vetro
Serramenti
Buono
Persiana
Oscurante Legno
Pavim. Giorno
Gres Porcellanato
Pavim. Notte
Parquet
Pavim. Cucina
Gres Porcellanato
Pavim. Bagno
Ceramica
Mappa
Via Croceron 23, Cassola (VI)
Condividi su
Cookie preference