Italiano
136.575 €

Abitazione in Villini

Villa in vendita • Canosa di Puglia - PIAZZA ORISTANO , 33
Immobile all'asta
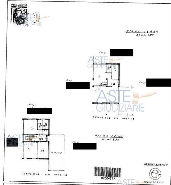
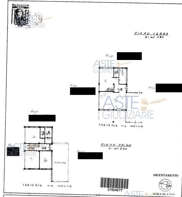
Abitazione in villini in Canosa di Puglia (BT) Piazza Oristano n. 33.
L'intero edificio è costituito da una struttura portante
intelaiata in c.a. con un sistema travi-pilastri e copertura a falda in latero-cemento. L’accesso al fabbricato
avviene tramite un giardino interno privato e sia dall’interno.

Gardemar Srl offre servizi professionali di consulenza nell'ambito di procedure esecutive immobiliari e fallimentari. 
La nostra missione è quella di avvicinare il privato e le società agli acquisti di immobili oggetto di procedura esecutiva immobiliare e, al contempo, cercare di aiutare i soggetti esecutati nel risolvere la propria posizione debitoria grazie ad accordi di saldo e stralcio con i relativi creditori.
Ad oggi Gardemar vede un network di oltre 20 affiliati autonomi su territorio nazionale e dispone della collaborazione di uno Studio Legale partner.
Servizi di consulenza offerti da GARDEMAR
Aste giudiziarie immobiliari
Esecuzioni immobiliari
Procedure fallimentari
Ricerca di immobili all’asta
Procedura di saldo e stralcio
Aste telematiche immobiliari
Business plan per i costi di partecipazione all’asta
Valutazione globale dell’investimento
Analisi delle perizie tecniche
Analisi su eventuali abusi edilizi
Analisi sugli avvisi di vendita e ordinanze del giudice
Analisi su eventuali diritti di terzi sull’immobile
Consulenza post-aggiudicazione asta immobiliare
Ottenimento finanziamenti tramite professionisti dedicati
Consulenza legale tramite Studio Legale partner
Consulenza costi di ristrutturazione immobiliare con nostri partner affiliati.

Caratteristiche principali
Codice
BAT 304/2019 26/06
Città
Canosa di Puglia
Categoria
Villa
Prezzo
136.575 €
Locali
8,5
Mq
245
Classe energetica
G
Stato Immobile
Buono
Grado
Medio
Tipo Soggiorno
Soggiorno
Tipo Cucina
Angolo Cottura
Riscaldamento
Autonomo
Tipo Riscaldam.
Caldaia
Tipo Impianto
Radiatori
Fonte Energetica
Metano
Acqua Calda
Autonoma
Raffrescamento
Fan Coil
Infissi
Metallo Doppio Vetro
Serramenti
Buono
Persiana
Tapparella Metallo
Pavim. Giorno
Ceramica
Pavim. Notte
Ceramica
Pavim. Cucina
Ceramica
Pavim. Bagno
Ceramica
Pavimento
Ceramica

Accessori: Aria Condizionata, Doppi Vetri, Lavanderia, Porta Blindata, Ripostiglio, Veranda

Mappa
PIAZZA ORISTANO 33, Canosa di Puglia (BT)
Condividi su
Cookie preference