Italiano
232.500 €

casa singola a Mariano del Friuli

Casa singola in vendita • Mariano del Friuli - Via Trieste, 2
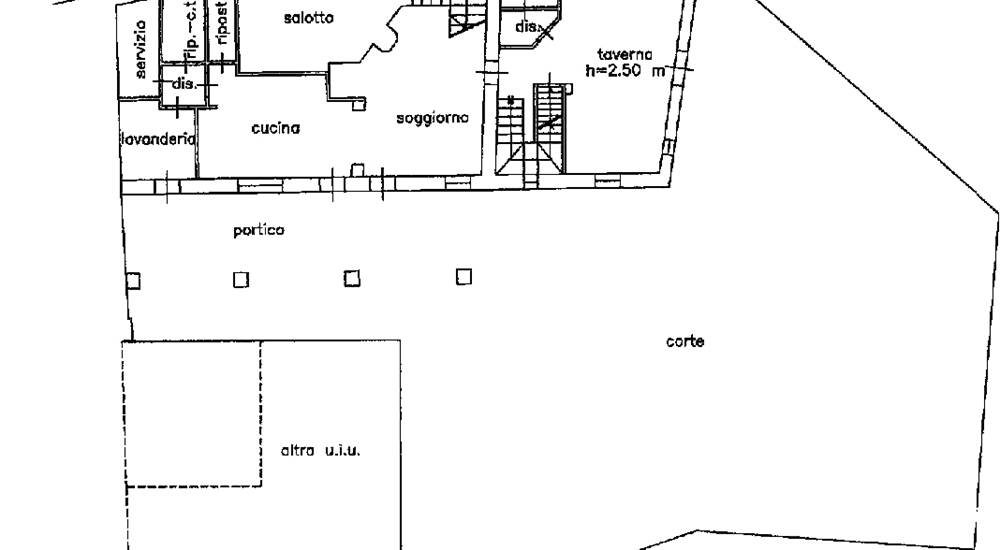
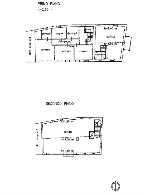
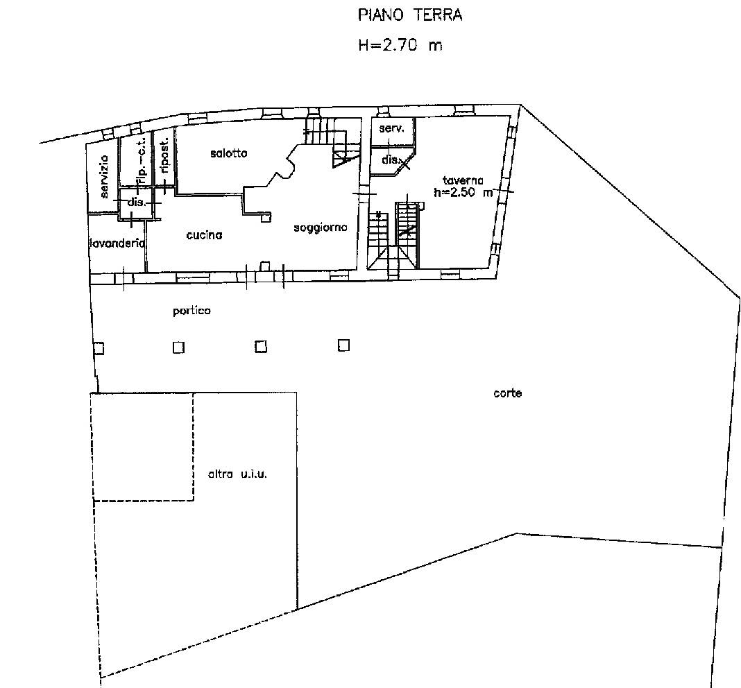
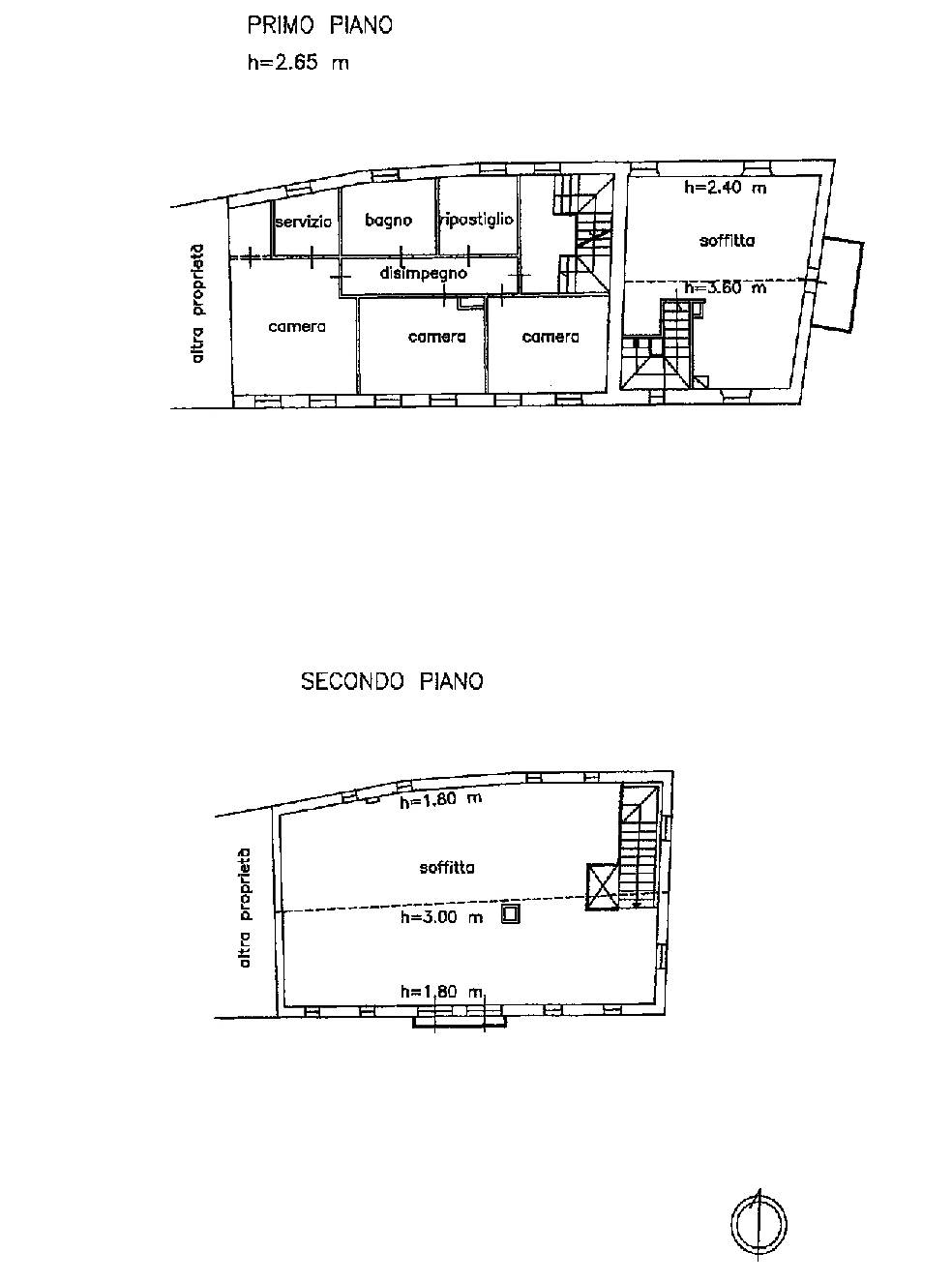
Casa di civile abitazione a Mariano del Friuli (Go) composta da due corpi di fabbrica, il principale, costituito da: al piano terra, salotto, un secondo salotto, cucina abitabile, ripostiglio , disimpegno, centrale termica, lavanderia, doccia wc; al primo piano da disimpegno, tre camere, bagno wc e ripostiglio, secondo wc; al secondo piano una ampia soffitta con terrazzino. il secondo corpo di fabbrica è composto da: cantina al piano interrato, piano terra e soffitta al primo piano, con area esterna, portico e posto auto.
Immobile all'asta: contattateci per fissare una prima consulenza presso la nostra Agenzia di zona. L’Agenzia Immobiliare Aste Domus Industria offre consulenza personalizzata PRE ASTA, anche per l’ottenimento di un mutuo con Broker finanziario dedicato.
L’Agenzia Immobiliare Aste Domus Industria offre servizi di fattibilità (valutazione globale investimento) per l’assistenza all’acquisto tramite asta giudiziale e consulenza post-aggiudicazione.
L’Agenzia Immobiliare Aste Domus Industria offre servizi professionali per accedere ad accordi di saldo e stralcio con tutela debitore con la collaborazione di uno Studio Legale specializzato.
L’esattezza dei dati pubblicati sarà confermata in sede di consulenza. Ulteriori foto e planimetrie disponibili relative all’immobile saranno consultabili previo vostro contatto
Caratteristiche principali
Codice
EDI10/2024 UGO20giu
Città
Mariano del Friuli
Categoria
Casa singola
Prezzo
232.500 €
Locali
12
Mq
410
Piano
1
Classe energetica
G
Stato Immobile
Discrete Condizioni
Riscaldamento
Autonomo
Tipo Riscaldam.
Caldaia
Tipo Impianto
Radiatori
Fonte Energetica
Metano
Acqua Calda
Autonoma
Pavim. Giorno
Parquet
Pavim. Notte
Parquet
Pavim. Cucina
Ceramica
Pavim. Bagno
Ceramica
Mappa
Via Trieste 2, Mariano del Friuli (GO)
Video
Condividi su
Cookie preference