Italiano
82.500 €

Villetta a schiera a Monselice (PD)

Villetta schiera in vendita • Monselice - Via chiesetta , 2
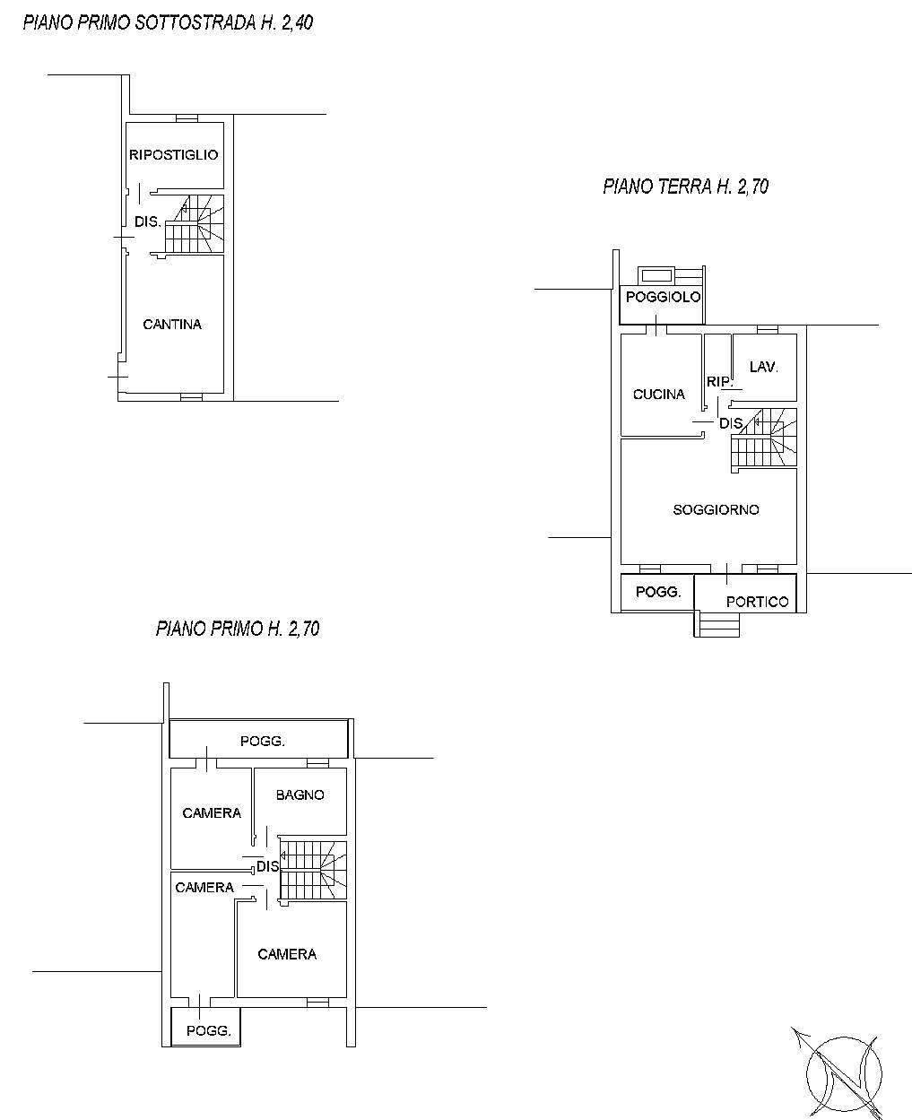
Villetta a schiera su due piani con garage e scoperto privato di circa mq 160, composta al piano interrato da disimpegno, ripostiglio e cantina; al piano terra di soggiorno, cucina, disbrigo, ripostiglio, bagno finestrato e due portici esterni; al piano primo: camera matrimoniale, 2 camere singole, bagno, disimpegno e due poggioli.
Immobile all'asta: contattateci per fissare una prima consulenza presso la nostra Agenzia di zona. L’Agenzia Immobiliare Aste Domus Industria offre consulenza personalizzata PRE ASTA, anche per l’ottenimento di un mutuo con Broker finanziario dedicato.
L’Agenzia Immobiliare Aste Domus Industria offre servizi di fattibilità (valutazione globale investimento) per l’assistenza all’acquisto tramite asta giudiziale e consulenza post-aggiudicazione.
L’Agenzia Immobiliare Aste Domus Industria offre servizi professionali per accedere ad accordi di saldo e stralcio con tutela debitore con la collaborazione di uno Studio Legale specializzato.
L’esattezza dei dati pubblicati sarà confermata in sede di consulenza. Ulteriori foto e planimetrie disponibili relative all’immobile saranno consultabili previo vostro contatto.
Caratteristiche principali
Codice
EDI118/2023 UPD24apr
Città
Monselice
Categoria
Villetta schiera
Prezzo
82.500 €
Locali
8
Camere
3
Bagni
2
Mq
167
Box
1
Terrazzi
2
Piano
1
Classe energetica
G
Stato Immobile
Mediocre
Grado
Medio
Orientamento
Sud Ovest
Lati Liberi
2
Giardino
Privato
Tipo Soggiorno
Soggiorno
Tipo Cucina
Abitabile
Riscaldamento
Autonomo
Tipo Riscaldam.
Caldaia
Tipo Impianto
Radiatori
Fonte Energetica
Metano
Acqua Calda
Autonoma
Raffrescamento
Split
Infissi
PVC Doppio Vetro
Serramenti
Discreto
Persiana
Persiana PVC
Pavim. Giorno
Ceramica
Pavim. Notte
Laminato
Pavim. Cucina
Ceramica
Pavim. Bagno
Ceramica

Accessori: Antifurto, Aria Condizionata, Porta Blindata

Mappa
Via chiesetta 2, Monselice (PD)
Video
Condividi su
Cookie preference