Italiano
59.250 €

Quadrilocale con garage in Anguillara Veneta

Appartamento in vendita • Anguillara Veneta - Via Olimpiadi, 21
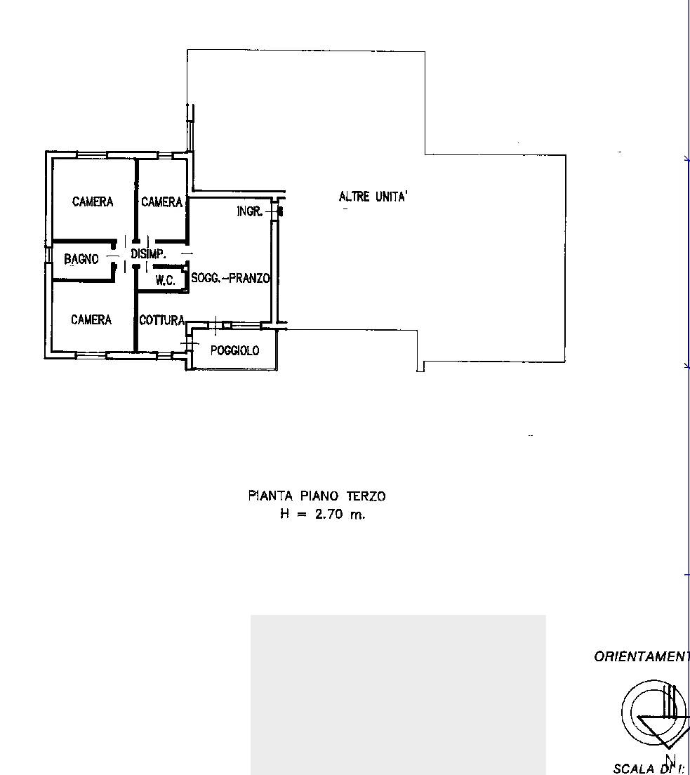
Appartamento in diritto di superficie con possibilità di conversione in piena proprietà, facente parte del fabbricato condominiale denominato "Condominio Lara", oggetto di recente riqualificazione energetica, sito in Comune di Anguillara Veneta (PD), via Olimpiadi n. 21, e precisamente: appartamento al piano terzo, esposizione lati nord, est e sud dotato di tre camere da letto e garage al piano terra della superficie commerciale complessiva di mq. 113.
Immobile all'asta: contattateci per fissare una prima consulenza presso la nostra Agenzia di zona. L’Agenzia Immobiliare Aste Domus Industria offre consulenza personalizzata PRE ASTA, anche per l’ottenimento di un mutuo con Broker finanziario dedicato.
L’Agenzia Immobiliare Aste Domus Industria offre servizi di fattibilità (valutazione globale investimento) per l’assistenza all’acquisto tramite asta giudiziale e consulenza post-aggiudicazione.
L’Agenzia Immobiliare Aste Domus Industria offre servizi professionali per accedere ad accordi di saldo e stralcio con tutela debitore con la collaborazione di uno Studio Legale specializzato.
L’esattezza dei dati pubblicati sarà confermata in sede di consulenza. Ulteriori foto e planimetrie disponibili relative all’immobile saranno consultabili previo vostro contatto.
Caratteristiche principali
Codice
EDI319/2023 UPD29apr
Città
Anguillara Veneta
Categoria
Appartamento
Prezzo
59.250 €
Locali
5
Camere
3
Bagni
2
Mq
113
Box
1
Terrazzi
1
Piano
3
Classe energetica
G
Stato Immobile
Buono
Grado
Economico
Orientamento
Sud Nord
Lati Liberi
3
Tipo Soggiorno
Soggiorno
Tipo Cucina
Angolo Cottura
Riscaldamento
Autonomo
Tipo Riscaldam.
Caldaia
Tipo Impianto
Radiatori
Fonte Energetica
Metano
Acqua Calda
Autonoma
Raffrescamento
Split
Infissi
Legno Doppio Vetro
Serramenti
Buono
Persiana
Tapparella PVC

Accessori: Aria Condizionata

Mappa
Via Olimpiadi 21, Anguillara Veneta (PD)
Video
Condividi su
Cookie preference