Italiano
89.250 €

Villa bifamiliare a Cittadella (PD)

Villa Bifamiliare in vendita • Cittadella - Via San Bellino , 7
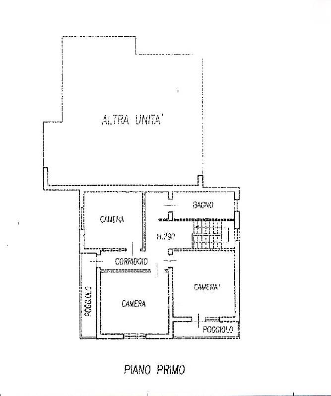
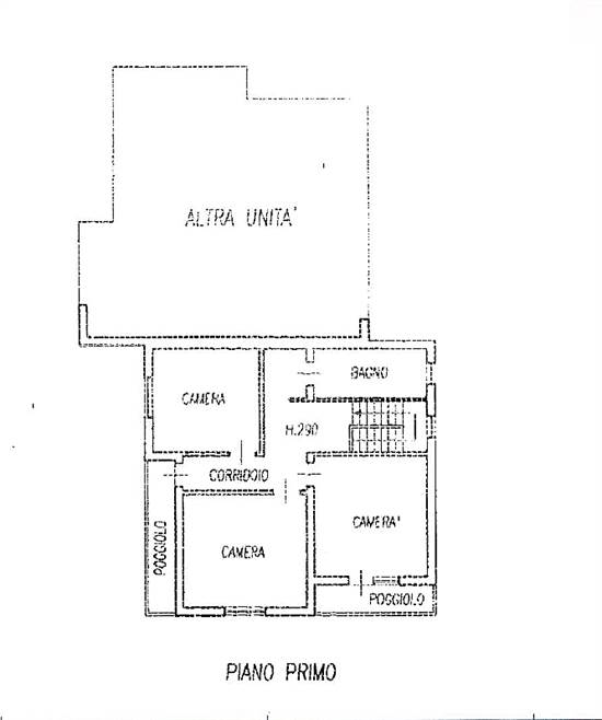
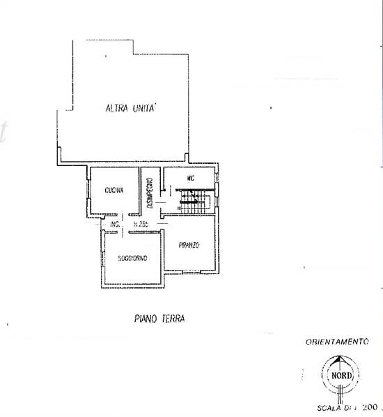
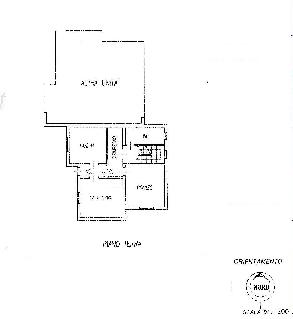
Villa bifamiliare a taglio verticale, sito in Comune di Cittadella (PD), località Santa Croce Bigolina, Via San Bellino n. 7, e precisamente l'abitazione sul lato sud disposta ai piani interrato, terra e primo, garage al piano interrato e annessa area pertinenziale adibita a giardino ed ingresso per una superficie commerciale complessiva di mq. 256. La casa è composta da: al piano interrato, disimpegno, un locale lavanderia, dove sono presenti un lavello, doccia a pavimento, la caldaia e un bollitore, una cantina, una taverna con camino a legna e il garage con attacco lavatrice e lavello; al piano terra, un ingresso –disimpegno, un soggiorno, un locale pranzo, una cucina e un bagno finestrato completo di sanitari, doccia e lavabo; al piano primo da un corridoio, n. 3 camere da letto, un bagno finestrato completo di sanitari, vasca e lavabo en.2 poggioli.
Completa l’unità un cortile ad uso esclusivo di forma irregolare
Immobile all'asta: contattateci per fissare una prima consulenza presso la nostra Agenzia di zona. L’Agenzia Immobiliare Aste Domus Industria offre consulenza personalizzata PRE ASTA, anche per l’ottenimento di un mutuo con Broker finanziario dedicato.
L’Agenzia Immobiliare Aste Domus Industria offre servizi di fattibilità (valutazione globale investimento) per l’assistenza all’acquisto tramite asta giudiziale e consulenza post-aggiudicazione.
L’Agenzia Immobiliare Aste Domus Industria offre servizi professionali per accedere ad accordi di saldo e stralcio con tutela debitore con la collaborazione di uno Studio Legale specializzato.
L’esattezza dei dati pubblicati sarà confermata in sede di consulenza. Ulteriori foto e planimetrie disponibili relative all’immobile saranno consultabili previo vostro contatto.
Caratteristiche principali
Codice
EDI338/2013 UPD8mag
Città
Cittadella
Categoria
Villa Bifamiliare
Prezzo
89.250 €
Locali
10
Camere
3
Bagni
2
Mq
256
Box
1
Terrazzi
2
Classe energetica
G
Stato Immobile
Discrete Condizioni
Grado
Medio
Lati Liberi
3
Giardino
Privato
Tipo Soggiorno
Doppio
Tipo Cucina
Abitabile
Riscaldamento
Autonomo
Tipo Riscaldam.
Caldaia
Tipo Impianto
Radiatori
Fonte Energetica
Gasolio
Acqua Calda
Autonoma
Infissi
Legno Doppio Vetro
Persiana
Tapparella PVC
Pavim. Giorno
Ceramica
Pavim. Notte
Ceramica
Pavim. Cucina
Ceramica
Pavim. Bagno
Ceramica
Mappa
Via San Bellino 7, Cittadella (PD)
Video
Condividi su
Cookie preference