Italiano
68.678 €

Villaa Dolegna del Collio (GO)

Villa in vendita • Dolegna del Collio (Vencò) - Vencò, 6
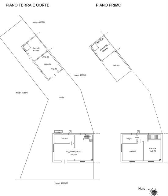
Villa singola e deposito pertinenza a Dolegna del Collio, composta da: soggiorno al piano terra, su cui prospetta la cucina, e da dove si sviluppa la scala interna in legno che consente l’accesso al piano primo dove, tramite un disimpegno si accede alle due camere ed al bagno.
Immobile all'asta: contattateci per fissare una prima consulenza presso la nostra Agenzia di zona. L’Agenzia Immobiliare Aste Domus Industria offre consulenza personalizzata PRE ASTA, anche per l’ottenimento di un mutuo con Broker finanziario dedicato.
L’Agenzia Immobiliare Aste Domus Industria offre servizi di fattibilità (valutazione globale investimento) per l’assistenza all’acquisto tramite asta giudiziale e consulenza post-aggiudicazione.
L’Agenzia Immobiliare Aste Domus Industria offre servizi professionali per accedere ad accordi di saldo e stralcio con tutela debitore con la collaborazione di uno Studio Legale specializzato.
L’esattezza dei dati pubblicati sarà confermata in sede di consulenza. Ulteriori foto e planimetrie disponibili relative all’immobile saranno consultabili previo vostro contatto.
Caratteristiche principali
Codice
EDI36/2021 UGO25mag
Città
Dolegna del Collio (Vencò)
Categoria
Villa
Prezzo
68.678 €
Locali
6
Mq
116
Piano
1
Classe energetica
G
Stato Immobile
Mediocre
Grado
Economico
Lati Liberi
4
Giardino
Privato
Tipo Soggiorno
Soggiorno
Tipo Cucina
Abitabile
Riscaldamento
Autonomo
Tipo Riscaldam.
Caldaia
Tipo Impianto
Radiatori
Fonte Energetica
GPL
Acqua Calda
Autonoma
Infissi
Legno
Serramenti
Mediocre
Persiana
Tapparella PVC
Pavim. Giorno
Ceramica
Pavim. Notte
Parquet
Pavim. Cucina
Ceramica
Pavim. Bagno
Ceramica
Mappa
Vencò 6, Dolegna del Collio (GO)
Video
Condividi su
Cookie preference