Italiano
44.625 €

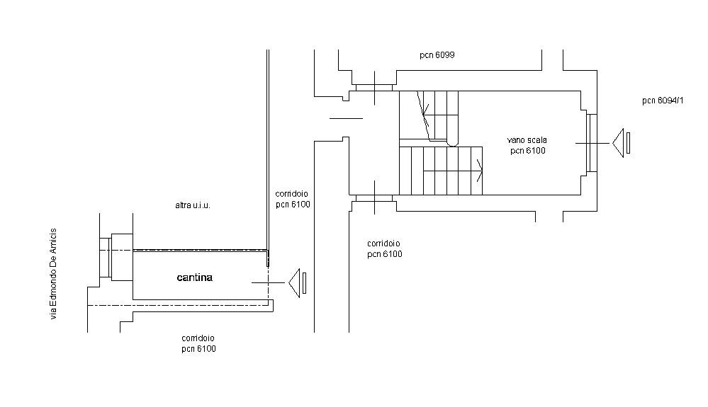
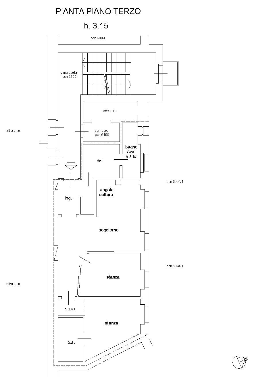
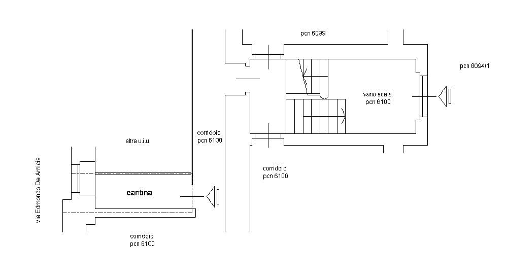
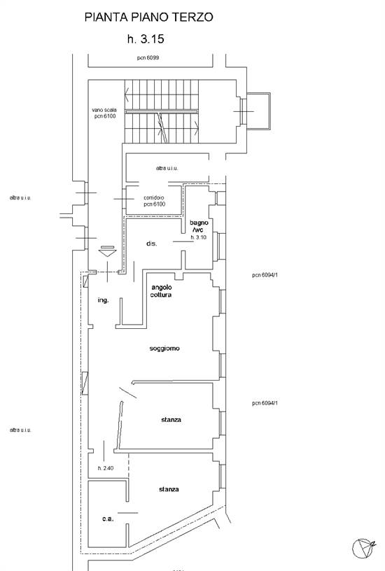
Trilocale a Trieste con cantina.

Appartamento in vendita • Trieste - Via de Amicis, 10
Alloggio a Triueste al III piano di via De Amicis 10 composto da Atrio ingresso, cucina, bagno wc, soggiorno, due stanze e una cantina.
Immobile all'asta: contattateci per fissare una prima consulenza presso la nostra Sede di Trieste. L’Agenzia Immobiliare Aste Domus Industria offre consulenza personalizzata PRE ASTA, anche per l’ottenimento di un mutuo con Broker finanziario dedicato.
L’Agenzia Immobiliare Aste Domus Industria offre servizi di fattibilità (valutazione globale investimento) per l’assistenza all’acquisto tramite asta giudiziale e consulenza post-aggiudicazione.
L’Agenzia Immobiliare Aste Domus Industria offre servizi professionali per accedere ad accordi di saldo e stralcio con tutela debitore con la collaborazione di uno Studio Legale specializzato.
L’esattezza dei dati pubblicati sarà confermata in sede di consulenza. Ulteriori foto e planimetrie disponibili relative all’immobile saranno consultabili previo vostro contatto.
Caratteristiche principali
Codice
EDI50/2024 UTS6giu
Città
Trieste
Categoria
Appartamento
Prezzo
44.625 €
Locali
4,5
Mq
69
Piano
3
Classe energetica
G
Stato Immobile
Discrete Condizioni
Grado
Economico
Riscaldamento
Autonomo
Tipo Riscaldam.
Caldaia
Tipo Impianto
Radiatori
Fonte Energetica
Metano
Acqua Calda
Autonoma
Raffrescamento
Split

Accessori: Aria Condizionata, Porta Blindata

Mappa
Via de Amicis 10, Trieste (TS)
Video
Condividi su
Cookie preference