Italiano
124.650 €

Casa singola a Trieste, via Roncheto

Casa singola in vendita • Trieste - Via del Roncheto , 26
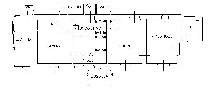
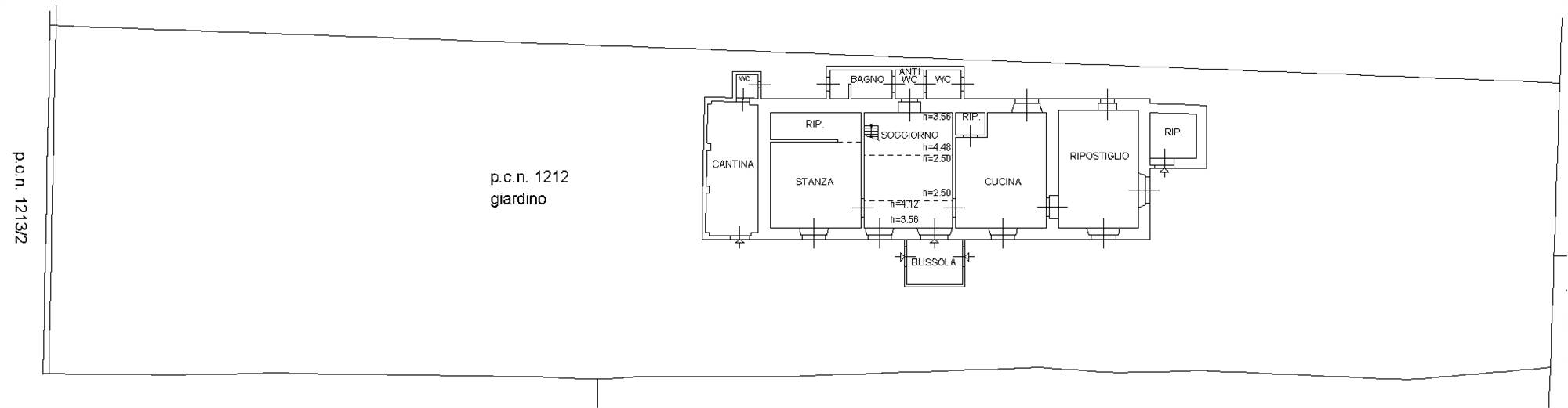
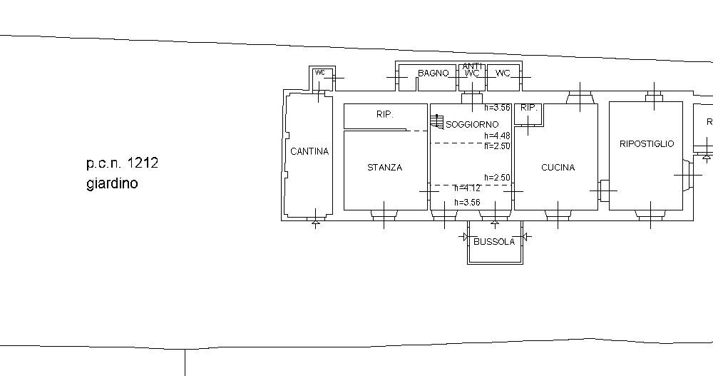
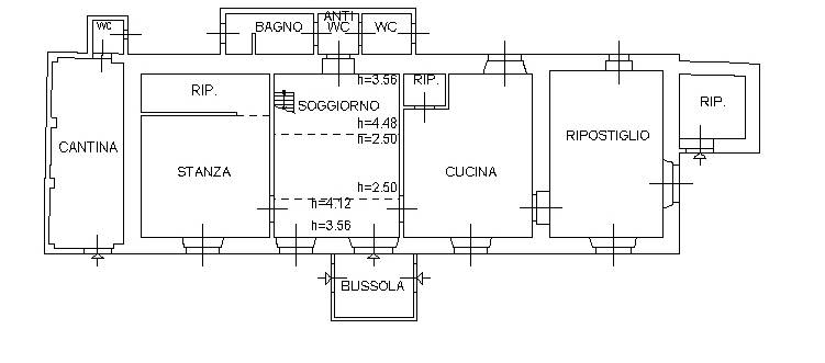
Casa unifamiliare (sup. comm. 203,05 mq) con ampio giardino (782 mq) al pianoterra della casa di via del Roncheto 26 a Trieste composta da un ingresso/soggiorno collegato ad una stanza con guardaroba, alla cucina collegata a due ripostigli e ad un antibagno sul quale di aprono bagno e wc separati. Tra il soggiorno e l’antibagno è presente un gradino. Una scala in legno, con andamento quasi verticale, mette in collegamento il soggiorno con un soppalco non abitabile. In aderenza alla casa sono presenti sui due lati minori, con accesso dal giardino, una cantina con wc e un ripostiglio.

Immobile all'asta: contattateci per fissare una prima consulenza presso la nostra Sede di Trieste. L’Agenzia Immobiliare Aste Domus Industria offre consulenza personalizzata PRE ASTA, anche per l’ottenimento di un mutuo con Broker finanziario dedicato.
L’Agenzia Immobiliare Aste Domus Industria offre servizi di fattibilità (valutazione globale investimento) per l’assistenza all’acquisto tramite asta giudiziale e consulenza post-aggiudicazione.
L’Agenzia Immobiliare Aste Domus Industria offre servizi professionali per accedere ad accordi di saldo e stralcio con tutela debitore con la collaborazione di uno Studio Legale specializzato.
L’esattezza dei dati pubblicati sarà confermata in sede di consulenza. Ulteriori foto e planimetrie disponibili relative all’immobile saranno consultabili previo vostro contatto.
Caratteristiche principali
Codice
EDI65/2024 UTS30giu
Città
Trieste
Categoria
Casa singola
Prezzo
124.650 €
Locali
7
Mq
203
Mq Giardino
782
Piano
1
Classe energetica
G
Stato Immobile
Mediocre
Riscaldamento
Autonomo
Tipo Riscaldam.
Caldaia
Tipo Impianto
Radiatori
Raffrescamento
Split
Mappa
Via del Roncheto 26, Trieste (TS)
Video
Condividi su
Cookie preference