Italiano
42.750 €

Casa singola con magazzino a Codevigo (PD)

Casa singola in vendita • Codevigo - Via quarrin , 7
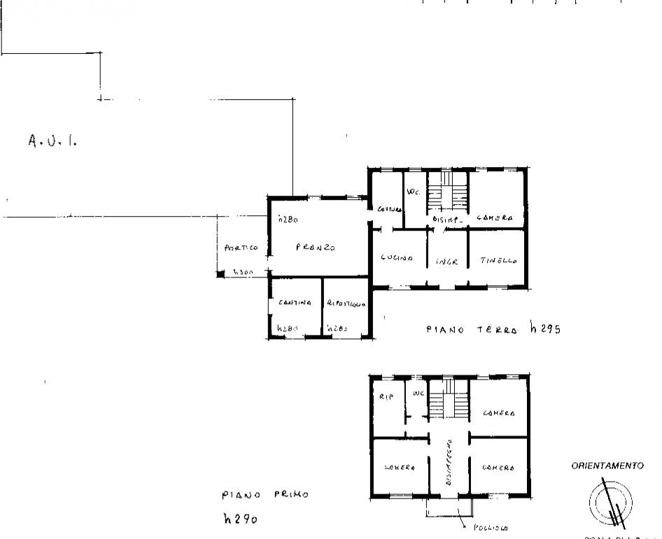
Casa unifamiliare di due piani, con attiguo ed aderente corpo di fabbrica destinato a magazzini e con cortile pertinenziale in comune composta da: vano d’ingresso al piano terra, tinello finestrato, vano scala con sottoscala e disimpegno, camera, wc, cucina, vano cottura con finestra e porta-finestra, sala da pranzo, cantina finestrata, ripostiglio con finestrella e al primo piano disimpegno, due camere, wc con anti-wc, ripostiglio, poggiolo, porticato; compreso un magazzino/deposito al piano primo e al grezzo altri n. 4
magazzini al piano terra. Cortile comune: mq 390,00.
Immobile all'asta: contattateci per fissare una prima consulenza presso la nostra Agenzia di zona. L’Agenzia Immobiliare Aste Domus Industria offre consulenza personalizzata PRE ASTA, anche per l’ottenimento di un
mutuo con Broker finanziario dedicato.
L’Agenzia Immobiliare Aste Domus Industria offre servizi di fattibilità (valutazione globale investimento) per l’assistenza all’acquisto tramite asta giudiziale e consulenza post-aggiudicazione.
L’Agenzia Immobiliare Aste Domus Industria offre servizi professionali per accedere ad accordi di saldo e stralcio con tutela debitore con la collaborazione di uno Studio Legale specializzato.
L’esattezza dei dati pubblicati sarà confermata in sede di consulenza. Ulteriori foto e planimetrie disponibili relative all’immobile saranno consultabili previo vostro contatto
Caratteristiche principali
Codice
EDI75/2021 1PD30apr
Città
Codevigo
Categoria
Casa singola
Prezzo
42.750 €
Locali
11
Camere
4
Bagni
2
Mq
343
Balconi
1
Piano
1
Classe energetica
G
Stato Immobile
Discrete Condizioni
Grado
Economico
Orientamento
Sud Nord
Lati Liberi
4
Giardino
Privato
Tipo Soggiorno
Soggiorno
Tipo Cucina
Abitabile
Riscaldamento
Autonomo
Tipo Riscaldam.
Caldaia
Tipo Impianto
Radiatori
Fonte Energetica
Metano
Acqua Calda
Autonoma
Infissi
Legno
Serramenti
Discreto
Persiana
Tapparella PVC
Pavim. Giorno
Ceramica
Pavim. Notte
Ceramica
Pavim. Cucina
Ceramica
Pavim. Bagno
Ceramica
Mappa
Via quarrin 7, Codevigo (PD)
Video
Condividi su
Cookie preference