Italiano
228.135 €

Abitazione in villini

Appartamento in vendita • Brugherio - Via NINO BIXIO, 35
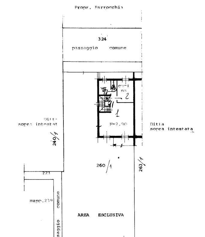
Villetta unifamiliare di mq 189,75 piano interrato suddiviso in cantina, autorimessa e ripostiglio, mentre il piano terra ampio soggiorno con ripostiglio, servizi e cucina attrezzati e annessa area pertinenziale adibita a giardino. Al piano primo sono presenti tre camere da letto tra cui una matrimoniale, servizi e ripostiglio, oltre box singolo e box doppio.




Top Invest Consulting affiliata Gardemar, filiale di Medolago è uno studio di consulenza che accompagna il cliente in tutto il percorso relativo all'acquisto tramite asta giudiziaria, compresa l'assistenza per le nuove procedure TELEMATICHE:
Ti assisteremo in tutte le fasi dell’asta, dalla visita all’immobile, alla compilazione della domanda, fino alla consegna delle chiavi e al saldo prezzo che potrà avvenire anche tramite mutuo bancario.
Ti forniamo una relazione completa e approfondita con una valutazione attendibile, verifiche tecnico-legali, preciso calcolo dei costi annessi all’acquisto, analisi dell’andamento del mercato, previsioni sull’andamento dell’asta, analisi della redditività degli immobili, tabelle per il trading.

l'immobile viene venduto dal tribunale,
il prezzo indicato si riferisce all'offerta minima.
Contattaci per fissare un appuntamento per avere tutte le informazioni necessarie.
Villetta unifamiliare di mq 189,75 piano interrato suddiviso in cantina, autorimessa e ripostiglio, mentre il piano terra ampio soggiorno con ripostiglio, servizi e cucina attrezzati e annessa area pertinenziale adibita a giardino. Al piano primo sono presenti tre camere da letto tra cui una matrimoniale, servizi e ripostiglio, oltre box singolo e box doppio.




Top Invest Consulting affiliata Gardemar, filiale di Medolago è uno studio di consulenza che accompagna il cliente in tutto il percorso relativo all'acquisto tramite asta giudiziaria, compresa l'assistenza per le nuove procedure TELEMATICHE:
Ti assisteremo in tutte le fasi dell’asta, dalla visita all’immobile, alla compilazione della domanda, fino alla consegna delle chiavi e al saldo prezzo che potrà avvenire anche tramite mutuo bancario.
Ti forniamo una relazione completa e approfondita con una valutazione attendibile, verifiche tecnico-legali, preciso calcolo dei costi annessi all’acquisto, analisi dell’andamento del mercato, previsioni sull’andamento dell’asta, analisi della redditività degli immobili, tabelle per il trading.

l'immobile viene venduto dal tribunale,
il prezzo indicato si riferisce all'offerta minima.
Contattaci per fissare un appuntamento per avere tutte le informazioni necessarie.
Villetta unifamiliare di mq 189,75 piano interrato suddiviso in cantina, autorimessa e ripostiglio, mentre il piano terra ampio soggiorno con ripostiglio, servizi e cucina attrezzati e annessa area pertinenziale adibita a giardino. Al piano primo sono presenti tre camere da letto tra cui una matrimoniale, servizi e ripostiglio, oltre box singolo e box doppio.




Top Invest Consulting affiliata Gardemar, filiale di Medolago è uno studio di consulenza che accompagna il cliente in tutto il percorso relativo all'acquisto tramite asta giudiziaria, compresa l'assistenza per le nuove procedure TELEMATICHE:
Ti assisteremo in tutte le fasi dell’asta, dalla visita all’immobile, alla compilazione della domanda, fino alla consegna delle chiavi e al saldo prezzo che potrà avvenire anche tramite mutuo bancario.
Ti forniamo una relazione completa e approfondita con una valutazione attendibile, verifiche tecnico-legali, preciso calcolo dei costi annessi all’acquisto, analisi dell’andamento del mercato, previsioni sull’andamento dell’asta, analisi della redditività degli immobili, tabelle per il trading.

l'immobile viene venduto dal tribunale,
il prezzo indicato si riferisce all'offerta minima.
Contattaci per fissare un appuntamento per avere tutte le informazioni necessarie.
Villetta unifamiliare di mq 189,75 piano interrato suddiviso in cantina, autorimessa e ripostiglio, mentre il piano terra ampio soggiorno con ripostiglio, servizi e cucina attrezzati e annessa area pertinenziale adibita a giardino. Al piano primo sono presenti tre camere da letto tra cui una matrimoniale, servizi e ripostiglio, oltre box singolo e box doppio.




Top Invest Consulting affiliata Gardemar, filiale di Medolago è uno studio di consulenza che accompagna il cliente in tutto il percorso relativo all'acquisto tramite asta giudiziaria, compresa l'assistenza per le nuove procedure TELEMATICHE:
Ti assisteremo in tutte le fasi dell’asta, dalla visita all’immobile, alla compilazione della domanda, fino alla consegna delle chiavi e al saldo prezzo che potrà avvenire anche tramite mutuo bancario.
Ti forniamo una relazione completa e approfondita con una valutazione attendibile, verifiche tecnico-legali, preciso calcolo dei costi annessi all’acquisto, analisi dell’andamento del mercato, previsioni sull’andamento dell’asta, analisi della redditività degli immobili, tabelle per il trading.

l'immobile viene venduto dal tribunale,
il prezzo indicato si riferisce all'offerta minima.
Contattaci per fissare un appuntamento per avere tutte le informazioni necessarie.
Villetta unifamiliare di mq 189,75 piano interrato suddiviso in cantina, autorimessa e ripostiglio, mentre il piano terra ampio soggiorno con ripostiglio, servizi e cucina attrezzati e annessa area pertinenziale adibita a giardino. Al piano primo sono presenti tre camere da letto tra cui una matrimoniale, servizi e ripostiglio, oltre box singolo e box doppio.




Top Invest Consulting affiliata Gardemar, filiale di Medolago è uno studio di consulenza che accompagna il cliente in tutto il percorso relativo all'acquisto tramite asta giudiziaria, compresa l'assistenza per le nuove procedure TELEMATICHE:
Ti assisteremo in tutte le fasi dell’asta, dalla visita all’immobile, alla compilazione della domanda, fino alla consegna delle chiavi e al saldo prezzo che potrà avvenire anche tramite mutuo bancario.
Ti forniamo una relazione completa e approfondita con una valutazione attendibile, verifiche tecnico-legali, preciso calcolo dei costi annessi all’acquisto, analisi dell’andamento del mercato, previsioni sull’andamento dell’asta, analisi della redditività degli immobili, tabelle per il trading.

l'immobile viene venduto dal tribunale,
il prezzo indicato si riferisce all'offerta minima.
Contattaci per fissare un appuntamento per avere tutte le informazioni necessarie.
Villetta unifamiliare di mq 189,75 piano interrato suddiviso in cantina, autorimessa e ripostiglio, mentre il piano terra ampio soggiorno con ripostiglio, servizi e cucina attrezzati e annessa area pertinenziale adibita a giardino. Al piano primo sono presenti tre camere da letto tra cui una matrimoniale, servizi e ripostiglio, oltre box singolo e box doppio.




Top Invest Consulting affiliata Gardemar, filiale di Medolago è uno studio di consulenza che accompagna il cliente in tutto il percorso relativo all'acquisto tramite asta giudiziaria, compresa l'assistenza per le nuove procedure TELEMATICHE:
Ti assisteremo in tutte le fasi dell’asta, dalla visita all’immobile, alla compilazione della domanda, fino alla consegna delle chiavi e al saldo prezzo che potrà avvenire anche tramite mutuo bancario.
Ti forniamo una relazione completa e approfondita con una valutazione attendibile, verifiche tecnico-legali, preciso calcolo dei costi annessi all’acquisto, analisi dell’andamento del mercato, previsioni sull’andamento dell’asta, analisi della redditività degli immobili, tabelle per il trading.

l'immobile viene venduto dal tribunale,
il prezzo indicato si riferisce all'offerta minima.
Contattaci per fissare un appuntamento per avere tutte le informazioni necessarie.
Villetta unifamiliare di mq 189,75 piano interrato suddiviso in cantina, autorimessa e ripostiglio, mentre il piano terra ampio soggiorno con ripostiglio, servizi e cucina attrezzati e annessa area pertinenziale adibita a giardino. Al piano primo sono presenti tre camere da letto tra cui una matrimoniale, servizi e ripostiglio, oltre box singolo e box doppio.




Top Invest Consulting affiliata Gardemar, filiale di Medolago è uno studio di consulenza che accompagna il cliente in tutto il percorso relativo all'acquisto tramite asta giudiziaria, compresa l'assistenza per le nuove procedure TELEMATICHE:
Ti assisteremo in tutte le fasi dell’asta, dalla visita all’immobile, alla compilazione della domanda, fino alla consegna delle chiavi e al saldo prezzo che potrà avvenire anche tramite mutuo bancario.
Ti forniamo una relazione completa e approfondita con una valutazione attendibile, verifiche tecnico-legali, preciso calcolo dei costi annessi all’acquisto, analisi dell’andamento del mercato, previsioni sull’andamento dell’asta, analisi della redditività degli immobili, tabelle per il trading.

l'immobile viene venduto dal tribunale,
il prezzo indicato si riferisce all'offerta minima.
Contattaci per fissare un appuntamento per avere tutte le informazioni necessarie.
Villetta unifamiliare di mq 189,75 piano interrato suddiviso in cantina, autorimessa e ripostiglio, mentre il piano terra ampio soggiorno con ripostiglio, servizi e cucina attrezzati e annessa area pertinenziale adibita a giardino. Al piano primo sono presenti tre camere da letto tra cui una matrimoniale, servizi e ripostiglio, oltre box singolo e box doppio.




Top Invest Consulting affiliata Gardemar, filiale di Medolago è uno studio di consulenza che accompagna il cliente in tutto il percorso relativo all'acquisto tramite asta giudiziaria, compresa l'assistenza per le nuove procedure TELEMATICHE:
Ti assisteremo in tutte le fasi dell’asta, dalla visita all’immobile, alla compilazione della domanda, fino alla consegna delle chiavi e al saldo prezzo che potrà avvenire anche tramite mutuo bancario.
Ti forniamo una relazione completa e approfondita con una valutazione attendibile, verifiche tecnico-legali, preciso calcolo dei costi annessi all’acquisto, analisi dell’andamento del mercato, previsioni sull’andamento dell’asta, analisi della redditività degli immobili, tabelle per il trading.

l'immobile viene venduto dal tribunale,
il prezzo indicato si riferisce all'offerta minima.
Contattaci per fissare un appuntamento per avere tutte le informazioni necessarie.
Villetta unifamiliare di mq 189,75 piano interrato suddiviso in cantina, autorimessa e ripostiglio, mentre il piano terra ampio soggiorno con ripostiglio, servizi e cucina attrezzati e annessa area pertinenziale adibita a giardino. Al piano primo sono presenti tre camere da letto tra cui una matrimoniale, servizi e ripostiglio, oltre box singolo e box doppio.




Top Invest Consulting affiliata Gardemar, filiale di Medolago è uno studio di consulenza che accompagna il cliente in tutto il percorso relativo all'acquisto tramite asta giudiziaria, compresa l'assistenza per le nuove procedure TELEMATICHE:
Ti assisteremo in tutte le fasi dell’asta, dalla visita all’immobile, alla compilazione della domanda, fino alla consegna delle chiavi e al saldo prezzo che potrà avvenire anche tramite mutuo bancario.
Ti forniamo una relazione completa e approfondita con una valutazione attendibile, verifiche tecnico-legali, preciso calcolo dei costi annessi all’acquisto, analisi dell’andamento del mercato, previsioni sull’andamento dell’asta, analisi della redditività degli immobili, tabelle per il trading.

l'immobile viene venduto dal tribunale,
il prezzo indicato si riferisce all'offerta minima.
Contattaci per fissare un appuntamento per avere tutte le informazioni necessarie.
Villetta unifamiliare di mq 189,75 piano interrato suddiviso in cantina, autorimessa e ripostiglio, mentre il piano terra ampio soggiorno con ripostiglio, servizi e cucina attrezzati e annessa area pertinenziale adibita a giardino. Al piano primo sono presenti tre camere da letto tra cui una matrimoniale, servizi e ripostiglio, oltre box singolo e box doppio.




Top Invest Consulting affiliata Gardemar, filiale di Medolago è uno studio di consulenza che accompagna il cliente in tutto il percorso relativo all'acquisto tramite asta giudiziaria, compresa l'assistenza per le nuove procedure TELEMATICHE:
Ti assisteremo in tutte le fasi dell’asta, dalla visita all’immobile, alla compilazione della domanda, fino alla consegna delle chiavi e al saldo prezzo che potrà avvenire anche tramite mutuo bancario.
Ti forniamo una relazione completa e approfondita con una valutazione attendibile, verifiche tecnico-legali, preciso calcolo dei costi annessi all’acquisto, analisi dell’andamento del mercato, previsioni sull’andamento dell’asta, analisi della redditività degli immobili, tabelle per il trading.

l'immobile viene venduto dal tribunale,
il prezzo indicato si riferisce all'offerta minima.
Contattaci per fissare un appuntamento per avere tutte le informazioni necessarie.
Villetta unifamiliare di mq 189,75 piano interrato suddiviso in cantina, autorimessa e ripostiglio, mentre il piano terra ampio soggiorno con ripostiglio, servizi e cucina attrezzati e annessa area pertinenziale adibita a giardino. Al piano primo sono presenti tre camere da letto tra cui una matrimoniale, servizi e ripostiglio, oltre box singolo e box doppio.




Top Invest Consulting affiliata Gardemar, filiale di Medolago è uno studio di consulenza che accompagna il cliente in tutto il percorso relativo all'acquisto tramite asta giudiziaria, compresa l'assistenza per le nuove procedure TELEMATICHE:
Ti assisteremo in tutte le fasi dell’asta, dalla visita all’immobile, alla compilazione della domanda, fino alla consegna delle chiavi e al saldo prezzo che potrà avvenire anche tramite mutuo bancario.
Ti forniamo una relazione completa e approfondita con una valutazione attendibile, verifiche tecnico-legali, preciso calcolo dei costi annessi all’acquisto, analisi dell’andamento del mercato, previsioni sull’andamento dell’asta, analisi della redditività degli immobili, tabelle per il trading.

l'immobile viene venduto dal tribunale,
il prezzo indicato si riferisce all'offerta minima.
Contattaci per fissare un appuntamento per avere tutte le informazioni necessarie.
Villetta unifamiliare di mq 189,75 piano interrato suddiviso in cantina, autorimessa e ripostiglio, mentre il piano terra ampio soggiorno con ripostiglio, servizi e cucina attrezzati e annessa area pertinenziale adibita a giardino. Al piano primo sono presenti tre camere da letto tra cui una matrimoniale, servizi e ripostiglio, oltre box singolo e box doppio.




Top Invest Consulting affiliata Gardemar, filiale di Medolago è uno studio di consulenza che accompagna il cliente in tutto il percorso relativo all'acquisto tramite asta giudiziaria, compresa l'assistenza per le nuove procedure TELEMATICHE:
Ti assisteremo in tutte le fasi dell’asta, dalla visita all’immobile, alla compilazione della domanda, fino alla consegna delle chiavi e al saldo prezzo che potrà avvenire anche tramite mutuo bancario.
Ti forniamo una relazione completa e approfondita con una valutazione attendibile, verifiche tecnico-legali, preciso calcolo dei costi annessi all’acquisto, analisi dell’andamento del mercato, previsioni sull’andamento dell’asta, analisi della redditività degli immobili, tabelle per il trading.

l'immobile viene venduto dal tribunale,
il prezzo indicato si riferisce all'offerta minima.
Contattaci per fissare un appuntamento per avere tutte le informazioni necessarie.
Villetta unifamiliare di mq 189,75 piano interrato suddiviso in cantina, autorimessa e ripostiglio, mentre il piano terra ampio soggiorno con ripostiglio, servizi e cucina attrezzati e annessa area pertinenziale adibita a giardino. Al piano primo sono presenti tre camere da letto tra cui una matrimoniale, servizi e ripostiglio, oltre box singolo e box doppio.




Top Invest Consulting affiliata Gardemar, filiale di Medolago è uno studio di consulenza che accompagna il cliente in tutto il percorso relativo all'acquisto tramite asta giudiziaria, compresa l'assistenza per le nuove procedure TELEMATICHE:
Ti assisteremo in tutte le fasi dell’asta, dalla visita all’immobile, alla compilazione della domanda, fino alla consegna delle chiavi e al saldo prezzo che potrà avvenire anche tramite mutuo bancario.
Ti forniamo una relazione completa e approfondita con una valutazione attendibile, verifiche tecnico-legali, preciso calcolo dei costi annessi all’acquisto, analisi dell’andamento del mercato, previsioni sull’andamento dell’asta, analisi della redditività degli immobili, tabelle per il trading.

l'immobile viene venduto dal tribunale,
il prezzo indicato si riferisce all'offerta minima.
Contattaci per fissare un appuntamento per avere tutte le informazioni necessarie.
Villetta unifamiliare di mq 189,75 piano interrato suddiviso in cantina, autorimessa e ripostiglio, mentre il piano terra ampio soggiorno con ripostiglio, servizi e cucina attrezzati e annessa area pertinenziale adibita a giardino. Al piano primo sono presenti tre camere da letto tra cui una matrimoniale, servizi e ripostiglio, oltre box singolo e box doppio.




Top Invest Consulting affiliata Gardemar, filiale di Medolago è uno studio di consulenza che accompagna il cliente in tutto il percorso relativo all'acquisto tramite asta giudiziaria, compresa l'assistenza per le nuove procedure TELEMATICHE:
Ti assisteremo in tutte le fasi dell’asta, dalla visita all’immobile, alla compilazione della domanda, fino alla consegna delle chiavi e al saldo prezzo che potrà avvenire anche tramite mutuo bancario.
Ti forniamo una relazione completa e approfondita con una valutazione attendibile, verifiche tecnico-legali, preciso calcolo dei costi annessi all’acquisto, analisi dell’andamento del mercato, previsioni sull’andamento dell’asta, analisi della redditività degli immobili, tabelle per il trading.

l'immobile viene venduto dal tribunale,
il prezzo indicato si riferisce all'offerta minima.
Contattaci per fissare un appuntamento per avere tutte le informazioni necessarie.
Villetta unifamiliare di mq 189,75 piano interrato suddiviso in cantina, autorimessa e ripostiglio, mentre il piano terra ampio soggiorno con ripostiglio, servizi e cucina attrezzati e annessa area pertinenziale adibita a giardino. Al piano primo sono presenti tre camere da letto tra cui una matrimoniale, servizi e ripostiglio, oltre box singolo e box doppio.




Top Invest Consulting affiliata Gardemar, filiale di Medolago è uno studio di consulenza che accompagna il cliente in tutto il percorso relativo all'acquisto tramite asta giudiziaria, compresa l'assistenza per le nuove procedure TELEMATICHE:
Ti assisteremo in tutte le fasi dell’asta, dalla visita all’immobile, alla compilazione della domanda, fino alla consegna delle chiavi e al saldo prezzo che potrà avvenire anche tramite mutuo bancario.
Ti forniamo una relazione completa e approfondita con una valutazione attendibile, verifiche tecnico-legali, preciso calcolo dei costi annessi all’acquisto, analisi dell’andamento del mercato, previsioni sull’andamento dell’asta, analisi della redditività degli immobili, tabelle per il trading.

l'immobile viene venduto dal tribunale,
il prezzo indicato si riferisce all'offerta minima.
Contattaci per fissare un appuntamento per avere tutte le informazioni necessarie.
Villetta unifamiliare di mq 189,75 piano interrato suddiviso in cantina, autorimessa e ripostiglio, mentre il piano terra ampio soggiorno con ripostiglio, servizi e cucina attrezzati e annessa area pertinenziale adibita a giardino. Al piano primo sono presenti tre camere da letto tra cui una matrimoniale, servizi e ripostiglio, oltre box singolo e box doppio.




Top Invest Consulting affiliata Gardemar, filiale di Medolago è uno studio di consulenza che accompagna il cliente in tutto il percorso relativo all'acquisto tramite asta giudiziaria, compresa l'assistenza per le nuove procedure TELEMATICHE:
Ti assisteremo in tutte le fasi dell’asta, dalla visita all’immobile, alla compilazione della domanda, fino alla consegna delle chiavi e al saldo prezzo che potrà avvenire anche tramite mutuo bancario.
Ti forniamo una relazione completa e approfondita con una valutazione attendibile, verifiche tecnico-legali, preciso calcolo dei costi annessi all’acquisto, analisi dell’andamento del mercato, previsioni sull’andamento dell’asta, analisi della redditività degli immobili, tabelle per il trading.

l'immobile viene venduto dal tribunale,
il prezzo indicato si riferisce all'offerta minima.
Contattaci per fissare un appuntamento per avere tutte le informazioni necessarie.
Villetta unifamiliare di mq 189,75 piano interrato suddiviso in cantina, autorimessa e ripostiglio, mentre il piano terra ampio soggiorno con ripostiglio, servizi e cucina attrezzati e annessa area pertinenziale adibita a giardino. Al piano primo sono presenti tre camere da letto tra cui una matrimoniale, servizi e ripostiglio, oltre box singolo e box doppio.




Top Invest Consulting affiliata Gardemar, filiale di Medolago è uno studio di consulenza che accompagna il cliente in tutto il percorso relativo all'acquisto tramite asta giudiziaria, compresa l'assistenza per le nuove procedure TELEMATICHE:
Ti assisteremo in tutte le fasi dell’asta, dalla visita all’immobile, alla compilazione della domanda, fino alla consegna delle chiavi e al saldo prezzo che potrà avvenire anche tramite mutuo bancario.
Ti forniamo una relazione completa e approfondita con una valutazione attendibile, verifiche tecnico-legali, preciso calcolo dei costi annessi all’acquisto, analisi dell’andamento del mercato, previsioni sull’andamento dell’asta, analisi della redditività degli immobili, tabelle per il trading.

l'immobile viene venduto dal tribunale,
il prezzo indicato si riferisce all'offerta minima.
Contattaci per fissare un appuntamento per avere tutte le informazioni necessarie.
Villetta unifamiliare di mq 189,75 piano interrato suddiviso in cantina, autorimessa e ripostiglio, mentre il piano terra ampio soggiorno con ripostiglio, servizi e cucina attrezzati e annessa area pertinenziale adibita a giardino. Al piano primo sono presenti tre camere da letto tra cui una matrimoniale, servizi e ripostiglio, oltre box singolo e box doppio.




Top Invest Consulting affiliata Gardemar, filiale di Medolago è uno studio di consulenza che accompagna il cliente in tutto il percorso relativo all'acquisto tramite asta giudiziaria, compresa l'assistenza per le nuove procedure TELEMATICHE:
Ti assisteremo in tutte le fasi dell’asta, dalla visita all’immobile, alla compilazione della domanda, fino alla consegna delle chiavi e al saldo prezzo che potrà avvenire anche tramite mutuo bancario.
Ti forniamo una relazione completa e approfondita con una valutazione attendibile, verifiche tecnico-legali, preciso calcolo dei costi annessi all’acquisto, analisi dell’andamento del mercato, previsioni sull’andamento dell’asta, analisi della redditività degli immobili, tabelle per il trading.

l'immobile viene venduto dal tribunale,
il prezzo indicato si riferisce all'offerta minima.
Contattaci per fissare un appuntamento per avere tutte le informazioni necessarie.
Villetta unifamiliare di mq 189,75 piano interrato suddiviso in cantina, autorimessa e ripostiglio, mentre il piano terra ampio soggiorno con ripostiglio, servizi e cucina attrezzati e annessa area pertinenziale adibita a giardino. Al piano primo sono presenti tre camere da letto tra cui una matrimoniale, servizi e ripostiglio, oltre box singolo e box doppio.




Top Invest Consulting affiliata Gardemar, filiale di Medolago è uno studio di consulenza che accompagna il cliente in tutto il percorso relativo all'acquisto tramite asta giudiziaria, compresa l'assistenza per le nuove procedure TELEMATICHE:
Ti assisteremo in tutte le fasi dell’asta, dalla visita all’immobile, alla compilazione della domanda, fino alla consegna delle chiavi e al saldo prezzo che potrà avvenire anche tramite mutuo bancario.
Ti forniamo una relazione completa e approfondita con una valutazione attendibile, verifiche tecnico-legali, preciso calcolo dei costi annessi all’acquisto, analisi dell’andamento del mercato, previsioni sull’andamento dell’asta, analisi della redditività degli immobili, tabelle per il trading.

l'immobile viene venduto dal tribunale,
il prezzo indicato si riferisce all'offerta minima.
Contattaci per fissare un appuntamento per avere tutte le informazioni necessarie.
Villetta unifamiliare di mq 189,75 piano interrato suddiviso in cantina, autorimessa e ripostiglio, mentre il piano terra ampio soggiorno con ripostiglio, servizi e cucina attrezzati e annessa area pertinenziale adibita a giardino. Al piano primo sono presenti tre camere da letto tra cui una matrimoniale, servizi e ripostiglio, oltre box singolo e box doppio.




Top Invest Consulting affiliata Gardemar, filiale di Medolago è uno studio di consulenza che accompagna il cliente in tutto il percorso relativo all'acquisto tramite asta giudiziaria, compresa l'assistenza per le nuove procedure TELEMATICHE:
Ti assisteremo in tutte le fasi dell’asta, dalla visita all’immobile, alla compilazione della domanda, fino alla consegna delle chiavi e al saldo prezzo che potrà avvenire anche tramite mutuo bancario.
Ti forniamo una relazione completa e approfondita con una valutazione attendibile, verifiche tecnico-legali, preciso calcolo dei costi annessi all’acquisto, analisi dell’andamento del mercato, previsioni sull’andamento dell’asta, analisi della redditività degli immobili, tabelle per il trading.

l'immobile viene venduto dal tribunale,
il prezzo indicato si riferisce all'offerta minima.
Contattaci per fissare un appuntamento per avere tutte le informazioni necessarie.
Villetta unifamiliare di mq 189,75 piano interrato suddiviso in cantina, autorimessa e ripostiglio, mentre il piano terra ampio soggiorno con ripostiglio, servizi e cucina attrezzati e annessa area pertinenziale adibita a giardino. Al piano primo sono presenti tre camere da letto tra cui una matrimoniale, servizi e ripostiglio, oltre box singolo e box doppio.




Top Invest Consulting affiliata Gardemar, filiale di Medolago è uno studio di consulenza che accompagna il cliente in tutto il percorso relativo all'acquisto tramite asta giudiziaria, compresa l'assistenza per le nuove procedure TELEMATICHE:
Ti assisteremo in tutte le fasi dell’asta, dalla visita all’immobile, alla compilazione della domanda, fino alla consegna delle chiavi e al saldo prezzo che potrà avvenire anche tramite mutuo bancario.
Ti forniamo una relazione completa e approfondita con una valutazione attendibile, verifiche tecnico-legali, preciso calcolo dei costi annessi all’acquisto, analisi dell’andamento del mercato, previsioni sull’andamento dell’asta, analisi della redditività degli immobili, tabelle per il trading.

l'immobile viene venduto dal tribunale,
il prezzo indicato si riferisce all'offerta minima.
Contattaci per fissare un appuntamento per avere tutte le informazioni necessarie.
Villetta unifamiliare di mq 189,75 piano interrato suddiviso in cantina, autorimessa e ripostiglio, mentre il piano terra ampio soggiorno con ripostiglio, servizi e cucina attrezzati e annessa area pertinenziale adibita a giardino. Al piano primo sono presenti tre camere da letto tra cui una matrimoniale, servizi e ripostiglio, oltre box singolo e box doppio.




Top Invest Consulting affiliata Gardemar, filiale di Medolago è uno studio di consulenza che accompagna il cliente in tutto il percorso relativo all'acquisto tramite asta giudiziaria, compresa l'assistenza per le nuove procedure TELEMATICHE:
Ti assisteremo in tutte le fasi dell’asta, dalla visita all’immobile, alla compilazione della domanda, fino alla consegna delle chiavi e al saldo prezzo che potrà avvenire anche tramite mutuo bancario.
Ti forniamo una relazione completa e approfondita con una valutazione attendibile, verifiche tecnico-legali, preciso calcolo dei costi annessi all’acquisto, analisi dell’andamento del mercato, previsioni sull’andamento dell’asta, analisi della redditività degli immobili, tabelle per il trading.

l'immobile viene venduto dal tribunale,
il prezzo indicato si riferisce all'offerta minima.
Contattaci per fissare un appuntamento per avere tutte le informazioni necessarie.
Villetta unifamiliare di mq 189,75 piano interrato suddiviso in cantina, autorimessa e ripostiglio, mentre il piano terra ampio soggiorno con ripostiglio, servizi e cucina attrezzati e annessa area pertinenziale adibita a giardino. Al piano primo sono presenti tre camere da letto tra cui una matrimoniale, servizi e ripostiglio, oltre box singolo e box doppio.




Top Invest Consulting affiliata Gardemar, filiale di Medolago è uno studio di consulenza che accompagna il cliente in tutto il percorso relativo all'acquisto tramite asta giudiziaria, compresa l'assistenza per le nuove procedure TELEMATICHE:
Ti assisteremo in tutte le fasi dell’asta, dalla visita all’immobile, alla compilazione della domanda, fino alla consegna delle chiavi e al saldo prezzo che potrà avvenire anche tramite mutuo bancario.
Ti forniamo una relazione completa e approfondita con una valutazione attendibile, verifiche tecnico-legali, preciso calcolo dei costi annessi all’acquisto, analisi dell’andamento del mercato, previsioni sull’andamento dell’asta, analisi della redditività degli immobili, tabelle per il trading.

l'immobile viene venduto dal tribunale,
il prezzo indicato si riferisce all'offerta minima.
Contattaci per fissare un appuntamento per avere tutte le informazioni necessarie.
Villetta unifamiliare di mq 189,75 piano interrato suddiviso in cantina, autorimessa e ripostiglio, mentre il piano terra ampio soggiorno con ripostiglio, servizi e cucina attrezzati e annessa area pertinenziale adibita a giardino. Al piano primo sono presenti tre camere da letto tra cui una matrimoniale, servizi e ripostiglio, oltre box singolo e box doppio.




Top Invest Consulting affiliata Gardemar, filiale di Medolago è uno studio di consulenza che accompagna il cliente in tutto il percorso relativo all'acquisto tramite asta giudiziaria, compresa l'assistenza per le nuove procedure TELEMATICHE:
Ti assisteremo in tutte le fasi dell’asta, dalla visita all’immobile, alla compilazione della domanda, fino alla consegna delle chiavi e al saldo prezzo che potrà avvenire anche tramite mutuo bancario.
Ti forniamo una relazione completa e approfondita con una valutazione attendibile, verifiche tecnico-legali, preciso calcolo dei costi annessi all’acquisto, analisi dell’andamento del mercato, previsioni sull’andamento dell’asta, analisi della redditività degli immobili, tabelle per il trading.

l'immobile viene venduto dal tribunale,
il prezzo indicato si riferisce all'offerta minima.
Contattaci per fissare un appuntamento per avere tutte le informazioni necessarie.
Villetta unifamiliare di mq 189,75 piano interrato suddiviso in cantina, autorimessa e ripostiglio, mentre il piano terra ampio soggiorno con ripostiglio, servizi e cucina attrezzati e annessa area pertinenziale adibita a giardino. Al piano primo sono presenti tre camere da letto tra cui una matrimoniale, servizi e ripostiglio, oltre box singolo e box doppio.




Top Invest Consulting affiliata Gardemar, filiale di Medolago è uno studio di consulenza che accompagna il cliente in tutto il percorso relativo all'acquisto tramite asta giudiziaria, compresa l'assistenza per le nuove procedure TELEMATICHE:
Ti assisteremo in tutte le fasi dell’asta, dalla visita all’immobile, alla compilazione della domanda, fino alla consegna delle chiavi e al saldo prezzo che potrà avvenire anche tramite mutuo bancario.
Ti forniamo una relazione completa e approfondita con una valutazione attendibile, verifiche tecnico-legali, preciso calcolo dei costi annessi all’acquisto, analisi dell’andamento del mercato, previsioni sull’andamento dell’asta, analisi della redditività degli immobili, tabelle per il trading.

l'immobile viene venduto dal tribunale,
il prezzo indicato si riferisce all'offerta minima.
Contattaci per fissare un appuntamento per avere tutte le informazioni necessarie.
Villetta unifamiliare di mq 189,75 piano interrato suddiviso in cantina, autorimessa e ripostiglio, mentre il piano terra ampio soggiorno con ripostiglio, servizi e cucina attrezzati e annessa area pertinenziale adibita a giardino. Al piano primo sono presenti tre camere da letto tra cui una matrimoniale, servizi e ripostiglio, oltre box singolo e box doppio.




Top Invest Consulting affiliata Gardemar, filiale di Medolago è uno studio di consulenza che accompagna il cliente in tutto il percorso relativo all'acquisto tramite asta giudiziaria, compresa l'assistenza per le nuove procedure TELEMATICHE:
Ti assisteremo in tutte le fasi dell’asta, dalla visita all’immobile, alla compilazione della domanda, fino alla consegna delle chiavi e al saldo prezzo che potrà avvenire anche tramite mutuo bancario.
Ti forniamo una relazione completa e approfondita con una valutazione attendibile, verifiche tecnico-legali, preciso calcolo dei costi annessi all’acquisto, analisi dell’andamento del mercato, previsioni sull’andamento dell’asta, analisi della redditività degli immobili, tabelle per il trading.

l'immobile viene venduto dal tribunale,
il prezzo indicato si riferisce all'offerta minima.
Contattaci per fissare un appuntamento per avere tutte le informazioni necessarie.
Caratteristiche principali
Codice
NI100724G
Città
Brugherio
Categoria
Appartamento
Prezzo
228.135 €
Locali
7,5
Camere
3
Bagni
2
Mq
190
Box
2
Mq Box
62
Mq Giardino
330
Balconi
1
Mq Balcone
5
Piano
1
Classe energetica
G
Stato Immobile
Buono
Grado
Medio
Posizione
Centro
Panorama
Vista Aperta
Lati Liberi
2
Giardino
Privato
Arredi
Possibilità
Tipo Soggiorno
Soggiorno
Tipo Cucina
Abitabile
Riscaldamento
Autonomo
Tipo Riscaldam.
Caldaia
Tipo Impianto
Radiatori
Fonte Energetica
Metano
Acqua Calda
Autonoma
Infissi
Legno
Serramenti
Buono
Persiana
Persiana Legno
Pavim. Giorno
Ceramica
Pavim. Notte
Ceramica
Pavim. Cucina
Ceramica
Pavim. Bagno
Ceramica
Accesso Disabili
No

Accessori: Porta Blindata

Mappa
Via NINO BIXIO 35, Brugherio (MB)
Condividi su
Cookie preference