Italiano
71.450 €

Stabile / Palazzo in vendita a Terni

Stabile / Palazzo in vendita • Terni - Via delle Palme, 2
Asta immobiliare-Terni, Via delle Palme n° 2

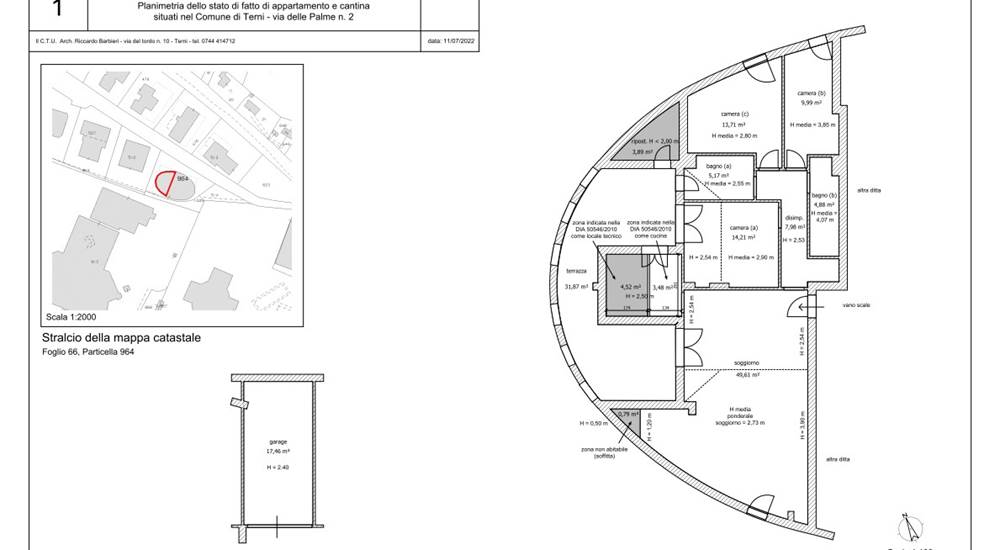
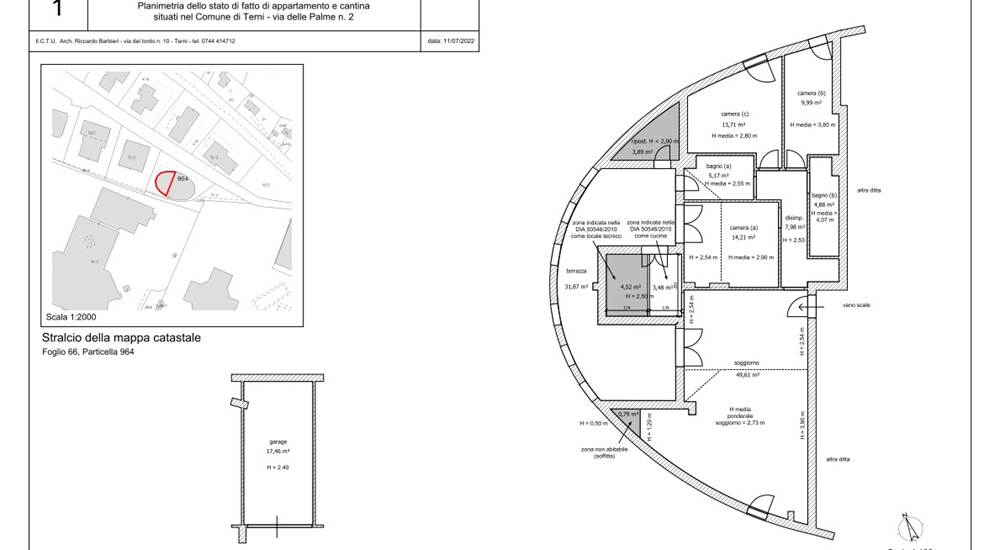
Appartamento di 135,00 mq situato al quarto piano di una palazzina di 5 con annesso garage di 18,00 mq posto al piano interrato e ascensore condominiale.
L'unità immobiliare è composta da ingresso/soggiorno, cucina, disimpegno, due bagni uno con vasca e uno con doccia, tre camere da letto, un ripostiglio e un'ampia terrazza scoperta.
La pavimentazione dell'appartamento è in parquet, le finiture sono di ottima qualità e il portoncino è blindato.

La zona in cui si trova l'appartamento è stata realizzata negli anni '80, il quartiere residenziale è posto a 4 km dal centro urbano ed è ben servito dei mezzi pubblici.
Nel quartiere sono presenti diversi giardini pubblici, attrezzature sportive, molti servizi pubblici, una chiesa e vari servizi commerciali.

La base d’asta è di €95.250,00.

La stima immobiliare è di € 156.400,00.

Gardemar Srl offre servizi professionali di consulenza nell'ambito di procedure esecutive immobiliari e fallimentari.
La nostra missione è quella di avvicinare il privato e le società agli acquisti di immobili oggetto di procedura esecutiva immobiliare e, al contempo, cercare di aiutare i soggetti esecutati nel risolvere la propria posizione debitoria grazie ad accordi di saldo e stralcio con i relativi creditori e dispone della collaborazione dello Studio Legale Avv. Eugenio Ragusa

Servizi di consulenza offerti:

Aste giudiziarie immobiliari
Esecuzioni immobiliari
Procedure fallimentari
Ricerca di immobili all’asta
Procedura di saldo e stralcio
Aste telematiche immobiliari
Business plan per i costi di partecipazione all’asta
Valutazione globale dell’investimento
Analisi delle perizie tecniche
Analisi su eventuali abusi edilizi
Analisi sugli avvisi di vendita e ordinanze del giudice
Analisi su eventuali diritti di terzi sull’immobile
Consulenza post-aggiudicazione asta immobiliare
Ottenimento finanziamenti tramite professionisti dedicati
Consulenza legale tramite Studio partner
Consulenza costi di ristrutturazione immobiliare con nostri partner affiliati

HAI UN IMMOBILE PIGNORATO?
Puoi richiedere una consulenza gratuita presso la Nostra sede, sita in Via Pietro Conti, 27 Spoleto.
Siamo in grado di analizzare la tua posizione debitoria ed individuare la soluzione migliore.
GARDEMAR SRL è una società di consulenza che accompagna il cliente in tutto il percorso relativo all’ acquisto tramite asta giudiziaria.

Asta immobiliare Via delle Palme 2 - Terni (TR)

Appartamento di circa 135mq situato al quarto piano di una palazzina di 5 con annesso garage di 18mq posto al piano interrato e ascensore condominiale. La zona in cui si trova l'appartamento è stata realizzata negli anni '80 in gran parte tramite interventi PEEP. Il quartiere residenziale è posto a 4 km dal centro urbano, è ben servito dei mezzi pubblici e non è molto distante dallo svincolo del raccordo autostradale Orte - Perugia. Nel quartiere sono presenti diversi giardini pubblici, attrezzature sportive, molti servizi pubblici, una chiesa e vari servizi commerciali.

L'abitazione è composta da ingresso/soggiorno, cucina, disimpegno, due bagni uno con vasca e uno con doccia, tre camere da letto, un ripostiglio e un ampia terrazza scoperta.

Finiture appartamento:
- tutti gli ambienti interni hanno il pavimento in parquet scuro
- tutte le porte interne sono in legno laccato bianco e quasi tutte sono scorrevoli
- il portoncino di ingresso è blindato

Valore di mercato € 156.400,00

Gardemar Srl offre servizi professionali di consulenza nell'ambito di procedure esecutive immobiliari e fallimentari.
La nostra missione è quella di avvicinare il privato e le società agli acquisti di immobili oggetto di procedura esecutiva immobiliare e, al contempo, cercare di aiutare i soggetti esecutati nel risolvere la propria posizione debitoria grazie ad accordi di saldo e stralcio con i relativi creditori e dispone della collaborazione dello Studio Legale Avv. Eugenio Ragusa

Servizi di consulenza offerti:

Aste giudiziarie immobiliari
Esecuzioni immobiliari
Procedure fallimentari
Ricerca di immobili all’asta
Procedura di saldo e stralcio
Aste telematiche immobiliari
Business plan per i costi di partecipazione all’asta
Valutazione globale dell’investimento
Analisi delle perizie tecniche
Analisi su eventuali abusi edilizi
Analisi sugli avvisi di vendita e ordinanze del giudice
Analisi su eventuali diritti di terzi sull’immobile
Consulenza post-aggiudicazione asta immobiliare
Ottenimento finanziamenti tramite professionisti dedicati
Consulenza legale tramite Studio partner
Consulenza costi di ristrutturazione immobiliare con nostri partner affiliati

HAI UN IMMOBILE PIGNORATO?
Puoi richiedere una consulenza gratuita presso la Nostra sede, sita in Via Pietro Conti, 27 Spoleto.
Siamo in grado di analizzare la tua posizione debitoria ed individuare la soluzione migliore.
GARDEMAR SRL è una società di consulenza che accompagna il cliente in tutto il percorso relativo all’ acquisto tramite asta giudiziaria.
Caratteristiche principali
Codice
Spo 111/2020 2 9ott
Città
Terni
Categoria
Stabile / Palazzo
Prezzo
71.450 €
Locali
7
Camere
3
Bagni
2
Mq
143
Box
1
Mq Box
18
Terrazzi
1
Piano
4
Classe energetica
D
Stato Immobile
Buono
Grado
Medio

Accessori: Ascensore, Porta Blindata, Ripostiglio

Mappa
Via delle Palme 2, Terni (TR)
Condividi su
Cookie preference