Italiano
20.693 €

Appartamento in vendita a Passignano sul Trasimeno

Appartamento in vendita • Passignano sul Trasimeno - Strada Provinciale Catel Rigone snc
Asta immobiliare- Strada provinciale Castel Rigone snc, Passignano sul Trasimeno, Perugia


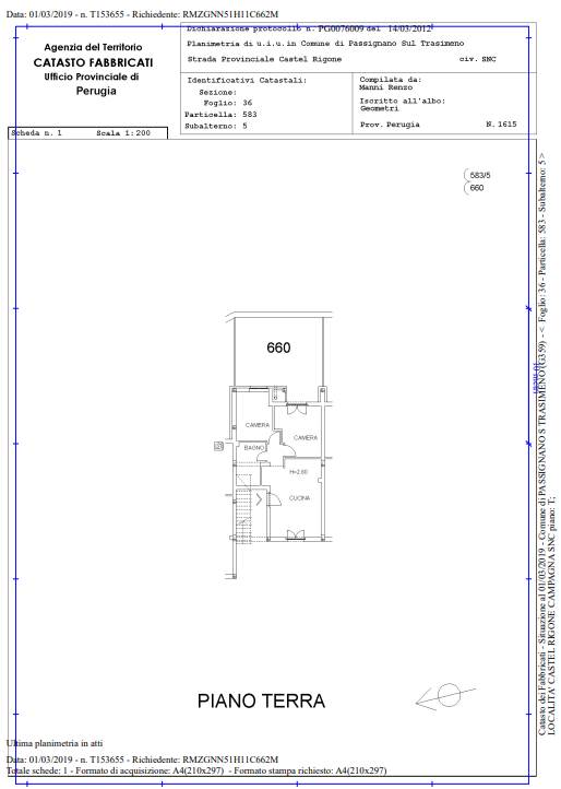
Appartamento di 69,00 mq costruito nel 2006 ubicato in posizione panoramica posto al piano terra di un edificio di 4 con annessa corte esclusiva e posto auto sito al piano interrato.

L’abitazione è composta da un ingresso, due camere, bagno e cucina-soggiorno.

Caratteristiche costruttive e finiture:
Tamponature faccia a vista in pietra e mattoni, strutture portanti in cemento armato a norma della legge di protezione dal rischio sismico.
Infissi in legno con vetro camera, pavimenti in cotto e parquet, solaio interpiano con travi di legno, travicelli e pianelle a vista.
Bagni con rivestimento in piastrelle di ceramica.
Classe energetica A.
L’impianto elettrico è sottotraccia con interruttore generale anche all'esterno entro uno stipetto con serratura.
L’impianto di riscaldamento è invece predisposto per la messa in opera di caldaietta, gas e radiatori.
Angolo cucina predisposto con scarichi e arrivo del gas.


La stima immobiliare è di € 65.396,25.


Gardemar Srl offre servizi professionali di consulenza nell'ambito di procedure esecutive immobiliari e fallimentari.
La nostra missione è quella di avvicinare il privato e le società agli acquisti di immobili oggetto di procedura esecutiva immobiliare e, al contempo, cercare di aiutare i soggetti esecutati nel risolvere la propria posizione debitoria grazie ad accordi di saldo e stralcio con i relativi creditori e dispone della collaborazione dello Studio Legale Avv. Eugenio Ragusa

Servizi di consulenza offerti:

Aste giudiziarie immobiliari
Esecuzioni immobiliari
Procedure fallimentari
Ricerca di immobili all’asta
Procedura di saldo e stralcio
Aste telematiche immobiliari
Business plan per i costi di partecipazione all’asta
Valutazione globale dell’investimento
Analisi delle perizie tecniche
Analisi su eventuali abusi edilizi
Analisi sugli avvisi di vendita e ordinanze del giudice
Analisi su eventuali diritti di terzi sull’immobile
Consulenza post-aggiudicazione asta immobiliare
Ottenimento finanziamenti tramite professionisti dedicati
Consulenza legale tramite Studio partner
Consulenza costi di ristrutturazione immobiliare con nostri partner affiliati

HAI UN IMMOBILE PIGNORATO?
Puoi richiedere una consulenza gratuita presso la Nostra sede, sita in Via Pietro Conti, 27 Spoleto.
Siamo in grado di analizzare la tua posizione debitoria ed individuare la soluzione migliore.
GARDEMAR SRL è una società di consulenza che accompagna il cliente in tutto il percorso relativo all’ acquisto tramite asta giudiziaria.


Asta immobiliare- Strada provinciale Castel Rigone snc, Passignano sul Trasimeno, Perugia


Appartamento di 69,00 mq costruito nel 2006 ubicato in posizione panoramica posto al piano terra di un edificio di 4 con annessa corte esclusiva e posto auto sito al piano interrato.

L’abitazione è composta da un ingresso, due camere, bagno e cucina-soggiorno.

Caratteristiche costruttive e finiture:
Tamponature faccia a vista in pietra e mattoni, strutture portanti in cemento armato a norma della legge di protezione dal rischio sismico.
Infissi in legno con vetro camera, pavimenti in cotto e parquet, solaio interpiano con travi di legno, travicelli e pianelle a vista.
Bagni con rivestimento in piastrelle di ceramica.
Classe energetica A.
L’impianto elettrico è sottotraccia con interruttore generale anche all'esterno entro uno stipetto con serratura.
L’impianto di riscaldamento è invece predisposto per la messa in opera di caldaietta, gas e radiatori.
Angolo cucina predisposto con scarichi e arrivo del gas.


La stima immobiliare è di € 65.396,25.


Gardemar Srl offre servizi professionali di consulenza nell'ambito di procedure esecutive immobiliari e fallimentari.
La nostra missione è quella di avvicinare il privato e le società agli acquisti di immobili oggetto di procedura esecutiva immobiliare e, al contempo, cercare di aiutare i soggetti esecutati nel risolvere la propria posizione debitoria grazie ad accordi di saldo e stralcio con i relativi creditori e dispone della collaborazione dello Studio Legale Avv. Eugenio Ragusa

Servizi di consulenza offerti:

Aste giudiziarie immobiliari
Esecuzioni immobiliari
Procedure fallimentari
Ricerca di immobili all’asta
Procedura di saldo e stralcio
Aste telematiche immobiliari
Business plan per i costi di partecipazione all’asta
Valutazione globale dell’investimento
Analisi delle perizie tecniche
Analisi su eventuali abusi edilizi
Analisi sugli avvisi di vendita e ordinanze del giudice
Analisi su eventuali diritti di terzi sull’immobile
Consulenza post-aggiudicazione asta immobiliare
Ottenimento finanziamenti tramite professionisti dedicati
Consulenza legale tramite Studio partner
Consulenza costi di ristrutturazione immobiliare con nostri partner affiliati

HAI UN IMMOBILE PIGNORATO?
Puoi richiedere una consulenza gratuita presso la Nostra sede, sita in Via Pietro Conti, 27 Spoleto.
Siamo in grado di analizzare la tua posizione debitoria ed individuare la soluzione migliore.
GARDEMAR SRL è una società di consulenza che accompagna il cliente in tutto il percorso relativo all’ acquisto tramite asta giudiziaria.


Caratteristiche principali
Codice
Spo 113/2018 5 19nov
Città
Passignano sul Trasimeno
Categoria
Appartamento
Prezzo
20.693 €
Locali
3,5
Camere
2
Bagni
1
Mq
69
Classe energetica
A
Stato Immobile
Buono
Giardino
Privato
Tipo Soggiorno
Soggiorno
Tipo Cucina
Abitabile
Riscaldamento
Autonomo
Tipo Riscaldam.
Caldaia
Tipo Impianto
Radiatori
Fonte Energetica
Gas
Acqua Calda
Autonoma
Infissi
Legno Doppio Vetro
Serramenti
Buono
Persiana
Persiana Legno
Pavim. Notte
Parquet
Pavim. Bagno
Gres Porcellanato

Accessori: Doppi Vetri, Parco Condominiale

Mappa
Strada Provinciale Catel Rigone snc , Passignano sul Trasimeno (PG)
Condividi su
Cookie preference