Italiano
140.925 €

Capannone in vendita a Bevagna

Capannone in vendita • Bevagna - VIA RENARE , SNC
Asta immobiliare Via Renare snc - Bevagna (PG)

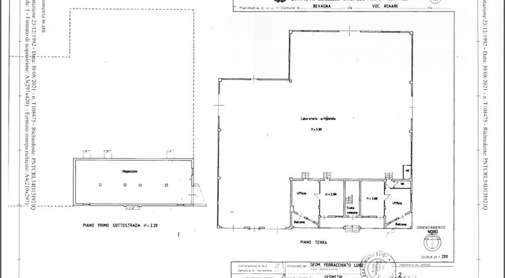
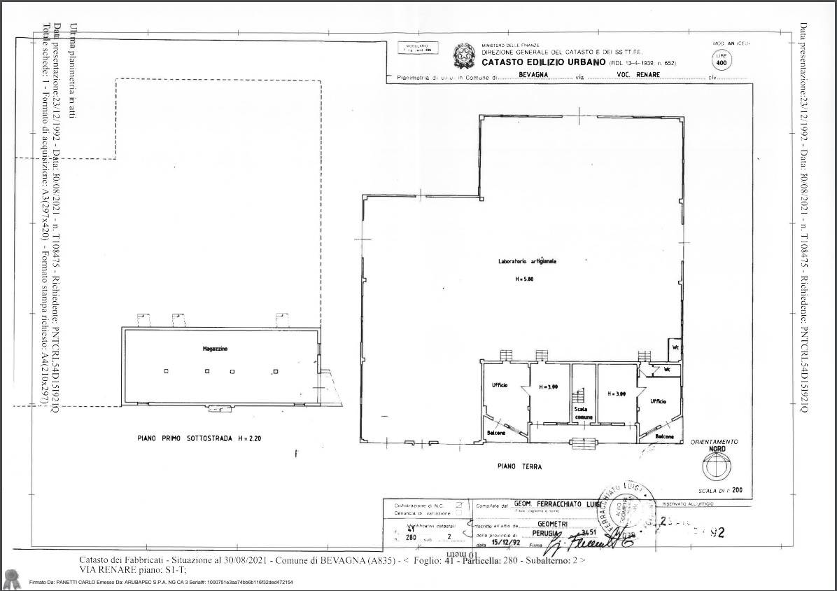
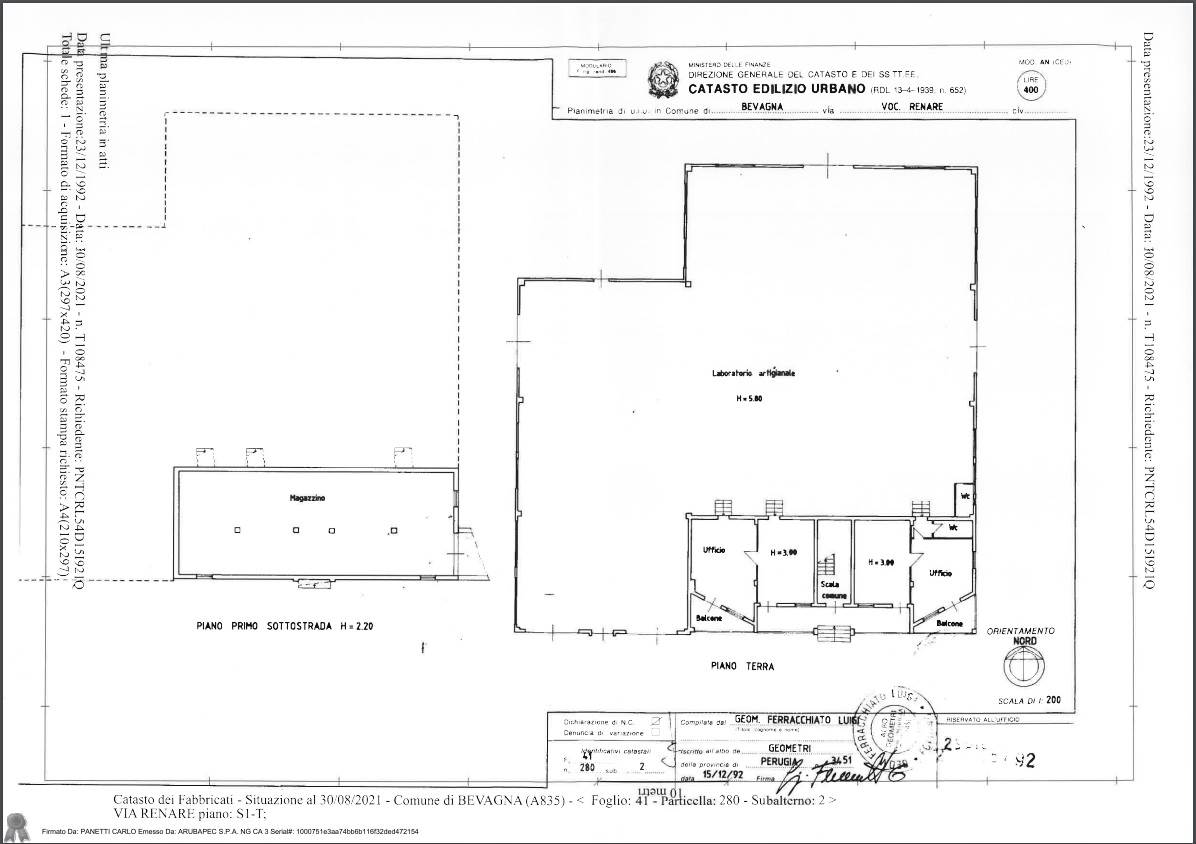
Capannone artigianale di circa 960 mq con annesso locale ad uso magazzino situato al piano interrato di circa 166 mq e locali ad uso ufficio con bagni oltre 2 balconi al piano terra di circa 120 mq.

Valore di mercato € 261.000,00

Gardemar Srl offre servizi professionali di consulenza nell'ambito di procedure esecutive immobiliari e fallimentari.
La nostra missione è quella di avvicinare il privato e le società agli acquisti di immobili oggetto di procedura esecutiva immobiliare e, al contempo, cercare di aiutare i soggetti esecutati nel risolvere la propria posizione debitoria grazie ad accordi di saldo e stralcio con i relativi creditori e dispone della collaborazione dello Studio Legale Avv. Eugenio Ragusa

Servizi di consulenza offerti:

Aste giudiziarie immobiliari
Esecuzioni immobiliari
Procedure fallimentari
Ricerca di immobili all’asta
Procedura di saldo e stralcio
Aste telematiche immobiliari
Business plan per i costi di partecipazione all’asta
Valutazione globale dell’investimento
Analisi delle perizie tecniche
Analisi su eventuali abusi edilizi
Analisi sugli avvisi di vendita e ordinanze del giudice
Analisi su eventuali diritti di terzi sull’immobile
Consulenza post-aggiudicazione asta immobiliare
Ottenimento finanziamenti tramite professionisti dedicati
Consulenza legale tramite Studio partner
Consulenza costi di ristrutturazione immobiliare con nostri partner affiliati

HAI UN IMMOBILE PIGNORATO?
Puoi richiedere una consulenza gratuita presso la Nostra sede, sita in Via Pietro Conti, 27 Spoleto.
Siamo in grado di analizzare la tua posizione debitoria ed individuare la soluzione migliore.
GARDEMAR SRL è una società di consulenza che accompagna il cliente in tutto il percorso relativo all’ acquisto tramite asta giudiziaria.

Asta immobiliare Via Renare snc - Bevagna (PG)

Capannone artigianale di circa 960 mq con annesso locale ad uso magazzino situato al piano interrato di circa 166 mq e locali ad uso ufficio con bagni oltre 2 balconi al piano terra di circa 120 mq.

Valore di mercato € 261.000,00

Gardemar Srl offre servizi professionali di consulenza nell'ambito di procedure esecutive immobiliari e fallimentari.
La nostra missione è quella di avvicinare il privato e le società agli acquisti di immobili oggetto di procedura esecutiva immobiliare e, al contempo, cercare di aiutare i soggetti esecutati nel risolvere la propria posizione debitoria grazie ad accordi di saldo e stralcio con i relativi creditori e dispone della collaborazione dello Studio Legale Avv. Eugenio Ragusa

Servizi di consulenza offerti:

Aste giudiziarie immobiliari
Esecuzioni immobiliari
Procedure fallimentari
Ricerca di immobili all’asta
Procedura di saldo e stralcio
Aste telematiche immobiliari
Business plan per i costi di partecipazione all’asta
Valutazione globale dell’investimento
Analisi delle perizie tecniche
Analisi su eventuali abusi edilizi
Analisi sugli avvisi di vendita e ordinanze del giudice
Analisi su eventuali diritti di terzi sull’immobile
Consulenza post-aggiudicazione asta immobiliare
Ottenimento finanziamenti tramite professionisti dedicati
Consulenza legale tramite Studio partner
Consulenza costi di ristrutturazione immobiliare con nostri partner affiliati

HAI UN IMMOBILE PIGNORATO?
Puoi richiedere una consulenza gratuita presso la Nostra sede, sita in Via Pietro Conti, 27 Spoleto.
Siamo in grado di analizzare la tua posizione debitoria ed individuare la soluzione migliore.
GARDEMAR SRL è una società di consulenza che accompagna il cliente in tutto il percorso relativo all’ acquisto tramite asta giudiziaria.
Caratteristiche principali
Codice
Spo 42/2021 113sett
Città
Bevagna
Categoria
Capannone
Prezzo
140.925 €
Locali
5
Camere
2
Bagni
2
Mq
1228
Balconi
2
Classe energetica
Non classificabile
Mappa
VIA RENARE SNC, Bevagna (PG)
Condividi su
Cookie preference