Italiano
71.450 €

APPARTAMENTO ALL'ASTA - TERNI

Appartamento in vendita • Terni - Via delle Palme, 2
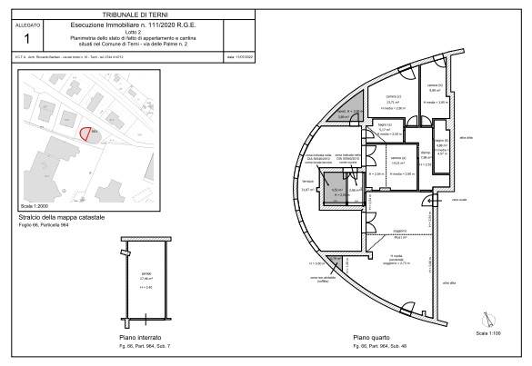
Appartamento all'Asta ubicato a Terni di 182 MQ commerciali. Posto al quarto piano di un edificio con ascensore costruito nel 2010 e composto da un soggiorno, una cucina, un disimpegno, tre camere da letto, due bagni (uno con vasca ed uno con doccia), un'ampia terrazza di 31 MQ ed un ripostiglio esterno. Completa la proprietà un Garage posto al piano interrato.

GARDEMAR offre servizi professionali di consulenza nell'ambito di procedure esecutive immobiliari e fallimentari.
La nostra missione è quella di avvicinare il privato e le società agli acquisti di immobili oggetto di procedura esecutiva immobiliare e, al contempo, cercare di aiutare i soggetti esecutati nel risolvere la propria posizione debitoria grazie ad accordi di saldo e stralcio con i relativi creditori.
Ad oggi Gardemar vede un network di oltre 20 affiliati autonomi su territorio nazionale e dispone della collaborazione di uno Studio Legale partner.
Servizi di consulenza offerti da GARDEMAR:
Aste giudiziarie immobiliari
Esecuzioni immobiliari
Procedure fallimentari
Ricerca di immobili all’asta
Procedura di saldo e stralcio
Aste telematiche immobiliari
Business plan per i costi di partecipazione all’asta
Valutazione globale dell’investimento
Analisi delle perizie tecniche
Analisi su eventuali abusi edilizi
Analisi sugli avvisi di vendita e ordinanze del giudice
Analisi su eventuali diritti di terzi sull’immobile
Consulenza post-aggiudicazione asta immobiliare
Ottenimento finanziamenti tramite professionisti dedicati
Consulenza legale tramite Studio Legale partner
Consulenza costi di ristrutturazione immobiliare con nostri partner affiliati
Caratteristiche principali
Codice
VT111/2020 2 TR 09 OTT
Città
Terni
Categoria
Appartamento
Prezzo
71.450 €
Locali
5
Camere
3
Bagni
2
Mq
144
Box
1
Mq Box
18
Terrazzi
1
mq Terrazzo
31
Piano
4
Classe energetica
G
Stato Immobile
Buono
Riscaldamento
Autonomo
Tipo Riscaldam.
Caldaia
Tipo Impianto
Radiatori
Fonte Energetica
Metano
Infissi
Metallo Doppio Vetro
Pavim. Giorno
Parquet
Pavim. Cucina
Gres Porcellanato
Pavim. Bagno
Gres Porcellanato

Accessori: Ascensore, Ripostiglio

Mappa
Via delle Palme 2, Terni (TR)
Video
Condividi su
Cookie preference