Italiano
87.600 €

APPARTAMENTO ALL'ASTA - ISOLA DEL GIGLIO (GR)

Appartamento in vendita • Isola del Giglio - Via della Cisterna, 15
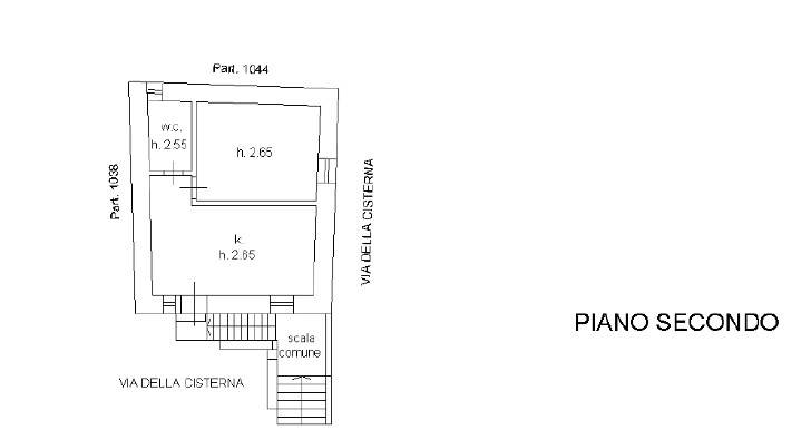
Appartamento all'Asta di 45 MQ sito nel caratteristico Centro Storico dell'Isola del Giglio (GR), presso la frazione di Giglio Castello. Composto da un soggiorno con angolo cottura, una camera da letto ed un bagno.
ASTA 03/12/2024

GARDEMAR offre servizi professionali di consulenza nell'ambito di procedure esecutive immobiliari e fallimentari.
La nostra missione è quella di avvicinare il privato e le società agli acquisti di immobili oggetto di procedura esecutiva immobiliare e, al contempo, cercare di aiutare i soggetti esecutati nel risolvere la propria posizione debitoria grazie ad accordi di saldo e stralcio con i relativi creditori.
Ad oggi Gardemar vede un network di oltre 20 affiliati autonomi su territorio nazionale e dispone della collaborazione di uno Studio Legale partner.
Servizi di consulenza offerti da GARDEMAR:
Aste giudiziarie immobiliari
Esecuzioni immobiliari
Procedure fallimentari
Ricerca di immobili all’asta
Procedura di saldo e stralcio
Aste telematiche immobiliari
Business plan per i costi di partecipazione all’asta
Valutazione globale dell’investimento
Analisi delle perizie tecniche
Analisi su eventuali abusi edilizi
Analisi sugli avvisi di vendita e ordinanze del giudice
Analisi su eventuali diritti di terzi sull’immobile
Consulenza post-aggiudicazione asta immobiliare
Ottenimento finanziamenti tramite professionisti dedicati
Consulenza legale tramite Studio Legale partner
Consulenza costi di ristrutturazione immobiliare con nostri partner affiliati
Caratteristiche principali
Codice
Vt49/2022 U GR 3dic
Città
Isola del Giglio
Categoria
Appartamento
Prezzo
87.600 €
Locali
2
Camere
1
Bagni
1
Mq
45
Balconi
1
Piano
2
Classe energetica
G
Stato Immobile
Buono
Posizione
Mare
Panorama
Vista Monumento
Riscaldamento
Autonomo
Mappa
Via della Cisterna 15, Isola del Giglio (GR)
Video
Condividi su
Cookie preference