Italiano
76.233 €

VILLA BIFAMILIARE ALL'ASTA - CALVI DELL'UMBR (TR)

Villa Bifamiliare in vendita • Calvi dell'Umbria - monte san pancrazio
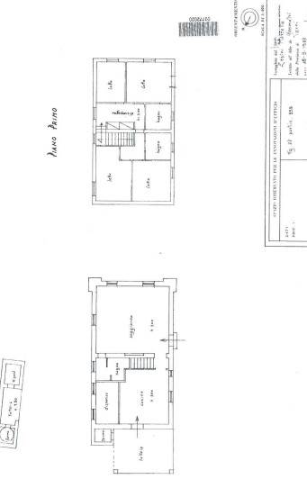
Villetta BIFAMILIARE all'Asta di 98.00 MQ abitativi oltre a portico di 26,00 MQ, e un giardino di 196.00 MQ. Ubicata a Calvi Dell'Umbria (TR)
Sviluppata su due livelli fuori terra: al piano terra cucina, stanza da pranzo, un grande e luminoso soggiorno, nonché un bagno; al piano primo, per mezzo di comoda scala interna, quattro stanze da letto e due bagni. La porzione di corte esterna, è recintata.
ASTA - 15/01/25

GARDEMAR offre servizi professionali di consulenza nell'ambito di procedure esecutive immobiliari e fallimentari.
La nostra missione è quella di avvicinare il privato e le società agli acquisti di immobili oggetto di procedura esecutiva immobiliare e, al contempo, cercare di aiutare i soggetti esecutati nel risolvere la propria posizione debitoria grazie ad accordi di saldo e stralcio con i relativi creditori.
Ad oggi Gardemar vede un network di oltre 20 affiliati autonomi su territorio nazionale e dispone della collaborazione di uno Studio Legale partner.
Servizi di consulenza offerti da GARDEMAR
Aste giudiziarie immobiliari
Esecuzioni immobiliari
Procedure fallimentari
Ricerca di immobili all'asta
Procedura di saldo e stralcio
Aste telematiche immobiliari
Business plan per i costi di partecipazione all'asta
Valutazione globale dell'investimento
Analisi delle perizie tecniche
Analisi su eventuali abusi edilizi
Analisi sugli avvisi di vendita e ordinanze del giudice
Analisi su eventuali diritti di terzi sull'immobile
Consulenza post-aggiudicazione asta immobiliare
Ottenimento finanziamenti tramite professionisti dedicati
Consulenza legale tramite Studio Legale partner
Consulenza costi di ristrutturazione immobiliare con nostri partner affiliati.


Caratteristiche principali
Codice
Vtt152/2022 1 TR gen 25
Città
Calvi dell'Umbria
Categoria
Villa Bifamiliare
Prezzo
76.233 €
Locali
6
Camere
4
Bagni
3
Mq
98
Mq Giardino
196
Piano
Terra
Classe energetica
G
Stato Immobile
Buono
Riscaldamento
Autonomo
Tipo Riscaldam.
Caldaia
Fonte Energetica
GPL
Infissi
Legno Doppio Vetro
Persiana
Tapparella Legno
Pavim. Giorno
Gres Porcellanato
Pavim. Notte
Cotto
Mappa
monte san pancrazio , Calvi dell'Umbria (TR)
Video
Condividi su
Cookie preference