Italiano
121.500 €

ABITAZIONE DI TIPO CIVILE

Appartamento in vendita • Milano - via lomellina , 36
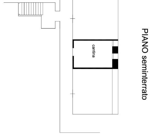
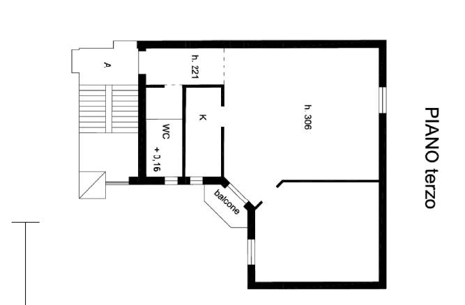
Piena proprietà di unità abitativa di 70 mq al terzo piano con vano cantina sito al piano interrato, l'appartamento è composto da ingresso, cucina abitabile, soggiorno, camera da letto, bagno, balcone, doppia esposizione.
Ottimo opportunità vista la posizione, vicino la fermata della metro Argonne, con numerosi servizi presenti nella zona.
Immobile all'asta, contattateci per un appuntamento presso il nostro studio.
Gardemar Srl offre servizi professionali di consulenza nell’ambito di procedure esecutive
Immobiliari fallimentari.
La nostra missione è quella di avvicinare il privato e le società agli acquisti di immobili
oggetto di procedura esecutiva immobiliare e, al contempo, cercare di aiutare i soggetti
esecutati nel risolvere la propria posizione debitoria grazie ad accordi di saldo e stralcio
con i relativi creditori.
Ad oggi Gardemar vede un network di oltre 20 affiliati autonomi su territorio nazionale e
dispone della collaborazione di uno Studio Legale partner.
Servizi di consulenza offerti da GARDEMAR
Aste giudiziarie immobiliari
Esecuzioni immobiliari
Procedure fallimentari
Ricerca di immobili all’asta
Procedura di saldo e stralciolk
Aste telematiche immobiliari
Business plan per i costi di partecipazione all’asta
Valutazione globale dell’investimento
Analisi delle perizie tecniche
Analisi su eventuali abusi edilizi
Analisi sugli avvisi di vendita e ordinanze del giudice
Analisi su eventuali diritti di terzi sull’immobile
Consulenza post-aggiudicazione asta immobiliare
Ottenimento finanziamenti tramite professionisti dedicati
Consulenza legale tramite Studio Legale partner
Consulenza costi di ristrutturazione immobiliare con i nostri partner affiliati
Caratteristiche principali
Codice
brt528/2024 U MI
Città
Milano
Categoria
Appartamento
Prezzo
121.500 €
Locali
4
Camere
1
Bagni
1
Mq
70
Balconi
1
Mq Balcone
1,6
Piano
3
Classe energetica
Non dichiarata
Lati Liberi
2
Giardino
Cortile
Tipo Cucina
Abitabile
Riscaldamento
Centralizzato
Tipo Riscaldam.
Caldaia
Tipo Impianto
Radiatori
Acqua Calda
Autonoma
Infissi
PVC
Persiana
Tapparella PVC

Accessori: Ascensore, Passaggio Pedonale

Mappa
via lomellina 36, Milano (MI)
Condividi su
Cookie preference