Italiano
27.375 €

ABITAZIONE DI TIPO CIVILE

Appartamento in vendita • Milano - Via Paolo Mantegazza, 20156 Milano MI, Italia, 25/4
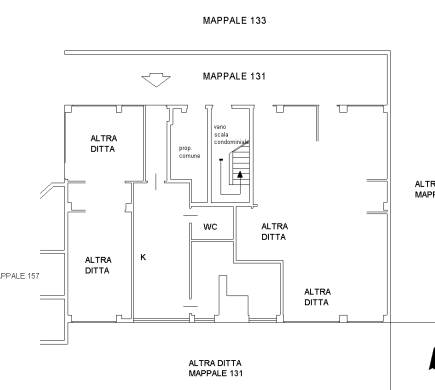
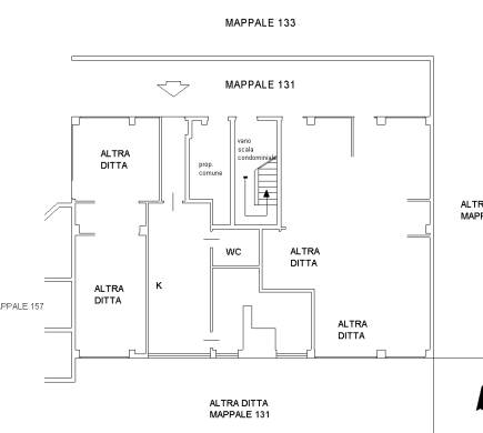
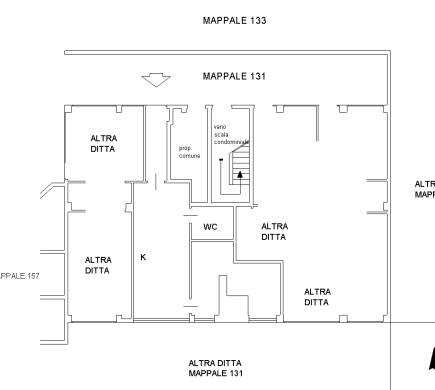
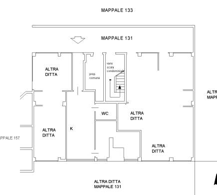
Piena proprietà di unità abitativa di 56 mq al piano seminterrato composta da due locali e servizi, in zona Politecnico.
Immobile libero all'asta, contattateci per un appuntamento presso il nostro studio.
Gardemar Srl offre servizi professionali di consulenza nell’ambito di procedure esecutive
Immobiliari fallimentari.
La nostra missione è quella di avvicinare il privato e le società agli acquisti di immobili
oggetto di procedura esecutiva immobiliare e, al contempo, cercare di aiutare i soggetti
esecutati nel risolvere la propria posizione debitoria grazie ad accordi di saldo e stralcio
con i relativi creditori.
Ad oggi Gardemar vede un network di oltre 20 affiliati autonomi su territorio nazionale e
dispone della collaborazione di uno Studio Legale partner.
Servizi di consulenza offerti da GARDEMAR
Aste giudiziarie immobiliari
Esecuzioni immobiliari
Procedure fallimentari
Ricerca di immobili all’asta
Procedura di saldo e stralciolk
Aste telematiche immobiliari
Business plan per i costi di partecipazione all’asta
Valutazione globale dell’investimento
Analisi delle perizie tecniche
Analisi su eventuali abusi edilizi
Analisi sugli avvisi di vendita e ordinanze del giudice
Analisi su eventuali diritti di terzi sull’immobile
Consulenza post-aggiudicazione asta immobiliare
Ottenimento finanziamenti tramite professionisti dedicati
Consulenza legale tramite Studio Legale partner
Consulenza costi di ristrutturazione immobiliare con i nostri partner affiliati
Caratteristiche principali
Codice
brt619/2024 U MI
Città
Milano
Categoria
Appartamento
Prezzo
27.375 €
Locali
2,5
Bagni
1
Mq
56
Piano
Interrato
Classe energetica
Non dichiarata
Giardino
Cortile
Tipo Cucina
Angolo Cottura
Riscaldamento
Centralizzato
Infissi
Metallo
Pavim. Giorno
Ceramica
Pavim. Notte
Ceramica
Pavim. Cucina
Ceramica
Pavim. Bagno
Ceramica
Mappa
Via Paolo Mantegazza, 20156 Milano MI, Italia 25/4, Milano (MI)
Condividi su
Cookie preference