Italiano
39.551 €

Abitazioni uso civile

Stabile / Palazzo in vendita • Torre Beretti e Castellaro - Localita' Torre Beretti - Via Cassinera, 18
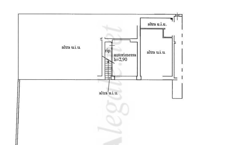
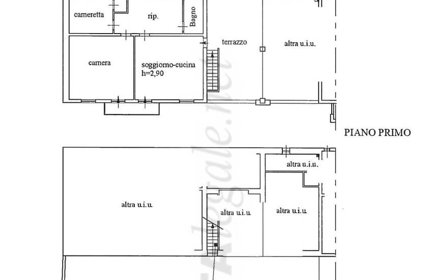
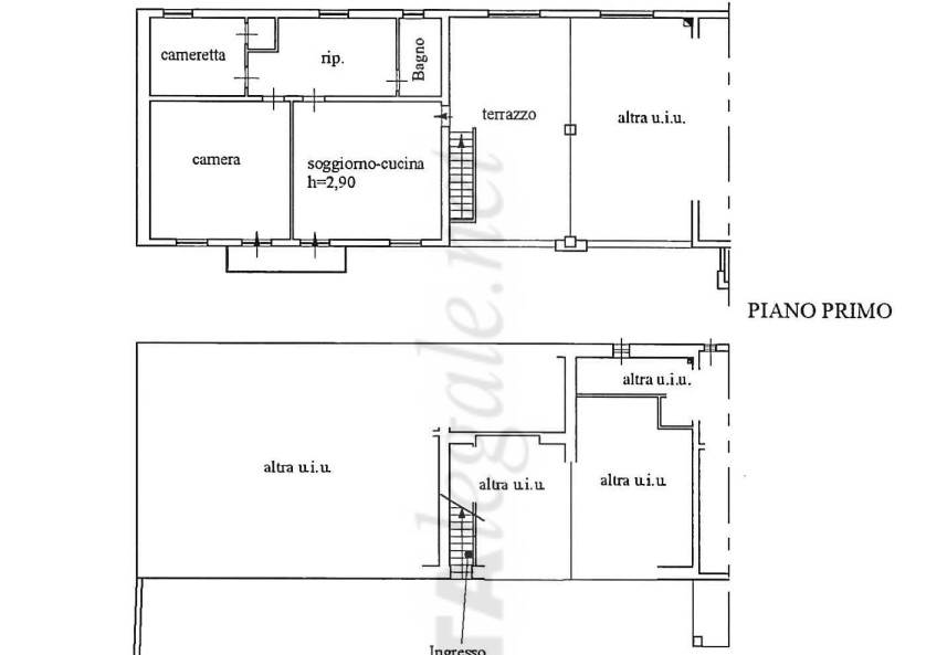
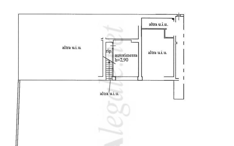
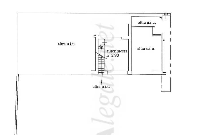
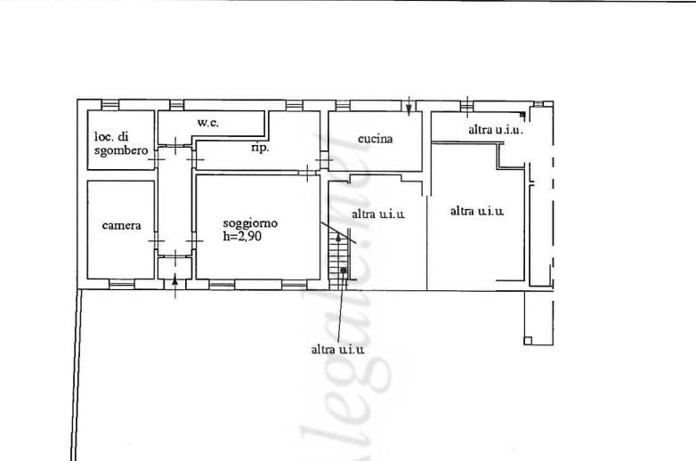
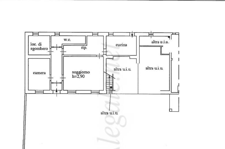
Piena proprietà di uno stabile composto da: un'abitazione al piano terra e un'abitazione al piano primo con annesso fabbricato accessorio a corpo staccato e cortile pertinenziale. La superficie commerciale complessiva e di circa mq. 287,48. I beni immobiliari in oggetto sono costituiti da: 1) Unità abitativa posta al piano Terra composta da: soggiorno, pranzo, cucina, lavanderia, disimpegno-ripostiglio, due camera da letto, disimpegno, un bagno, locale di deposito e portico in corpo staccato. La superficie lorda dell’appartamento è pari a mq 120,84 + mq 25,20 relativa al portico. 2) Unità abitativa posta al piano Primo con ingresso al Piano Terra composta da: soggiorno, cucina, disimpegno, due camere da letto, un bagno, un terrazzo coperto e balcone. La superficie lorda dell’appartamento è pari a mq 108,38 + mq 45,44 relativa al terrazzo-balcone. 3) Autorimessa posta al piano Terra. La superficie lorda dell’immobile è pari a mq 20,35 circa. Previsti oneri per sanare irregolarità edilizie.
Immobile all'asta, contattaci per fissare una prima consulenza presso il nostro Studio.
Gardemar Srl offre servizi professionali di consulenza nell'ambito di procedure esecutive immobiliari e fallimentari.
La nostra missione è quella di avvicinare il privato e le società agli acquisti di immobili oggetto di procedura esecutiva immobiliare e, al contempo, cercare di aiutare i soggetti esecutati nel risolvere la propria posizione debitoria grazie ad accordi di saldo e stralcio con i relativi creditori.
Ad oggi Gardemar gestisce un network di oltre 15 filiali autonome su territorio nazionale ( Filiali Gardemar • Gardemar Aste Immobiliari ) e dispone della collaborazione di uno Studio Legale .

Servizi di consulenza offerti:

Aste giudiziarie immobiliari
Esecuzioni immobiliari
Procedure fallimentari
Ricerca di immobili all’asta
Procedura di saldo e stralcio
Aste telematiche immobiliari
Business plan per i costi di partecipazione all’asta
Valutazione globale dell’investimento
Analisi delle perizie tecniche
Analisi su eventuali abusi edilizi
Analisi sugli avvisi di vendita e ordinanze del giudice
Analisi su eventuali diritti di terzi sull’immobile
Consulenza post-aggiudicazione asta immobiliare
Ottenimento finanziamenti tramite professionisti dedicati
Consulenza legale tramite Studio partner
Consulenza costi di ristrutturazione immobiliare con nostri partner affiliati
Piena proprietà di uno stabile composto da: un'abitazione al piano terra e un'abitazione al piano primo con annesso fabbricato accessorio a corpo staccato e cortile pertinenziale. La superficie commerciale complessiva e di circa mq. 287,48. I beni immobiliari in oggetto sono costituiti da: 1) Unità abitativa posta al piano Terra composta da: soggiorno, pranzo, cucina, lavanderia, disimpegno-ripostiglio, due camera da letto, disimpegno, un bagno, locale di deposito e portico in corpo staccato. La superficie lorda dell’appartamento è pari a mq 120,84 + mq 25,20 relativa al portico. 2) Unità abitativa posta al piano Primo con ingresso al Piano Terra composta da: soggiorno, cucina, disimpegno, due camere da letto, un bagno, un terrazzo coperto e balcone. La superficie lorda dell’appartamento è pari a mq 108,38 + mq 45,44 relativa al terrazzo-balcone. 3) Autorimessa posta al piano Terra. La superficie lorda dell’immobile è pari a mq 20,35 circa. Previsti oneri per sanare irregolarità edilizie.
Immobile all'asta, contattaci per fissare una prima consulenza presso il nostro Studio.
Gardemar Srl offre servizi professionali di consulenza nell'ambito di procedure esecutive immobiliari e fallimentari.
La nostra missione è quella di avvicinare il privato e le società agli acquisti di immobili oggetto di procedura esecutiva immobiliare e, al contempo, cercare di aiutare i soggetti esecutati nel risolvere la propria posizione debitoria grazie ad accordi di saldo e stralcio con i relativi creditori.
Ad oggi Gardemar gestisce un network di oltre 15 filiali autonome su territorio nazionale ( Filiali Gardemar • Gardemar Aste Immobiliari ) e dispone della collaborazione di uno Studio Legale .

Servizi di consulenza offerti:

Aste giudiziarie immobiliari
Esecuzioni immobiliari
Procedure fallimentari
Ricerca di immobili all’asta
Procedura di saldo e stralcio
Aste telematiche immobiliari
Business plan per i costi di partecipazione all’asta
Valutazione globale dell’investimento
Analisi delle perizie tecniche
Analisi su eventuali abusi edilizi
Analisi sugli avvisi di vendita e ordinanze del giudice
Analisi su eventuali diritti di terzi sull’immobile
Consulenza post-aggiudicazione asta immobiliare
Ottenimento finanziamenti tramite professionisti dedicati
Consulenza legale tramite Studio partner
Consulenza costi di ristrutturazione immobiliare con nostri partner affiliati
Caratteristiche principali
Codice
ssc13/2021 1 PV 8nov
Città
Torre Beretti e Castellaro
Categoria
Stabile / Palazzo
Prezzo
39.551 €
Locali
10
Camere
3
Bagni
2
Mq
287
Box
1
Mq Box
17
Balconi
1
Terrazzi
1
Piano
1
Classe energetica
G
Stato Immobile
Discrete Condizioni
Grado
Economico
Posizione
Campagna
Tipo Soggiorno
Soggiorno
Tipo Cucina
Abitabile
Riscaldamento
Autonomo
Tipo Riscaldam.
Caldaia
Tipo Impianto
Radiatori
Fonte Energetica
Metano
Acqua Calda
Autonoma
Infissi
Legno
Pavim. Giorno
Ceramica
Pavim. Notte
Ceramica
Pavim. Cucina
Ceramica
Pavim. Bagno
Ceramica
Mappa
Localita' Torre Beretti - Via Cassinera 18, Torre Beretti e Castellaro (PV)
Condividi su
Cookie preference