Italiano
206.640 €

Fabbricato ad uso civile

Stabile / Palazzo in vendita • Broni - Via Roma, 18
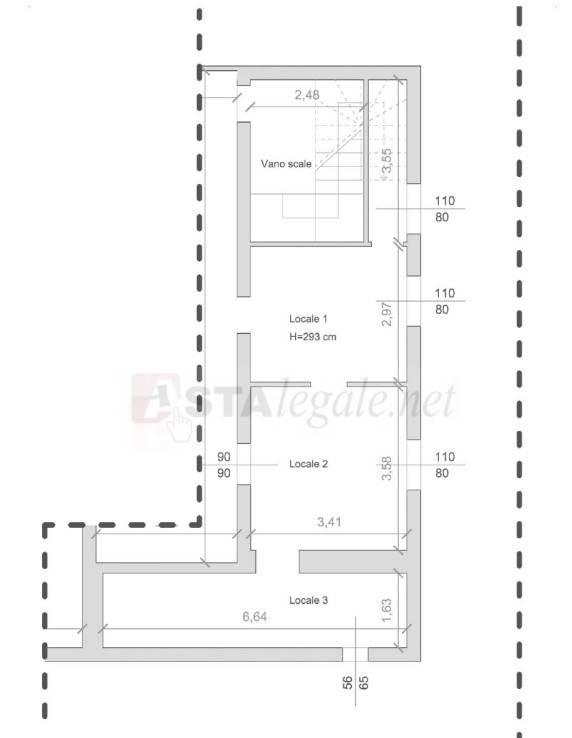
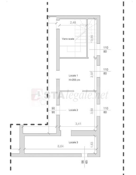
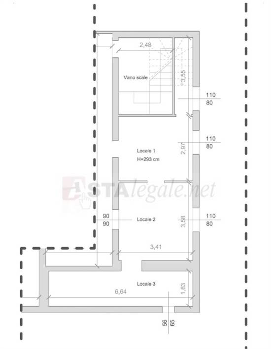
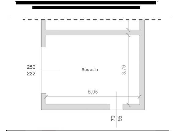
Piena proprietà di stabile distribuito su due piani, rialzato e S1, in cui sono presenti due unità abitative ed un’autorimessa . Con strutture indipendenti sono presenti un corpo di fabbrica contenente due box auto ed un fabbricato accatastato come ripostiglio esterno . È inoltre presente un piccolo corpo di fabbrica, un tempo adibito potenzialmente a pollaio, che non risulta richiamato nella documentazione catastale. L'appartamento principale è l’unità di dimensioni maggiori ed è distribuito su due piani, rialzato ed S1, si compone di quattro locali con cucina, un servizio igienico, disimpegni, un porticato di ingresso, collegamenti verticali interni, un balcone ed altri locali al piano S1. L'altro appartamento è un' unità immobiliare più piccola, composta da tre locali oltre bagno e disimpegni. Le autorimesse, il ripostiglio esterno ed il pollaio ( di cui si deve prevedere la demolizione ) si compongono di un unico locale ciascuno.
Immobile all'asta, contattaci per fissare una prima consulenza presso il nostro Studio.
Gardemar Srl offre servizi professionali di consulenza nell'ambito di procedure esecutive immobiliari e fallimentari.
La nostra missione è quella di avvicinare il privato e le società agli acquisti di immobili oggetto di procedura esecutiva immobiliare e, al contempo, cercare di aiutare i soggetti esecutati nel risolvere la propria posizione debitoria grazie ad accordi di saldo e stralcio con i relativi creditori.
Ad oggi Gardemar gestisce un network di oltre 15 filiali autonome su territorio nazionale ( Filiali Gardemar • Gardemar Aste Immobiliari ) e dispone della collaborazione di uno Studio Legale .

Servizi di consulenza offerti:

Aste giudiziarie immobiliari
Esecuzioni immobiliari
Procedure fallimentari
Ricerca di immobili all’asta
Procedura di saldo e stralcio
Aste telematiche immobiliari
Business plan per i costi di partecipazione all’asta
Valutazione globale dell’investimento
Analisi delle perizie tecniche
Analisi su eventuali abusi edilizi
Analisi sugli avvisi di vendita e ordinanze del giudice
Analisi su eventuali diritti di terzi sull’immobile
Consulenza post-aggiudicazione asta immobiliare
Ottenimento finanziamenti tramite professionisti dedicati
Consulenza legale tramite Studio partner
Consulenza costi di ristrutturazione immobiliare con nostri partner affiliati
Caratteristiche principali
Codice
ssc135/2022 U PV 18set
Città
Broni
Categoria
Stabile / Palazzo
Prezzo
206.640 €
Locali
10
Camere
4
Bagni
2
Mq
240
Box
2
Mq Box
50
Classe energetica
G
Stato Immobile
Discrete Condizioni
Grado
Medio
Posizione
Periferia
Giardino
Cortile
Tipo Soggiorno
Soggiorno
Tipo Cucina
Abitabile
Riscaldamento
Autonomo
Tipo Riscaldam.
Caldaia
Tipo Impianto
Radiatori
Fonte Energetica
Metano
Acqua Calda
Autonoma
Infissi
Legno
Pavim. Giorno
Granito
Pavim. Notte
Parquet
Pavim. Cucina
Marmette
Pavim. Bagno
Marmette

Accessori: Antifurto, Ripostiglio

Mappa
Via Roma 18, Broni (PV)
Condividi su
Cookie preference