Italiano
47.520 €

Fabbricato uso residenziale , magazzini

Stabile / Palazzo in vendita • Santa Maria della Versa - Localita' Cà Barbieri, 33
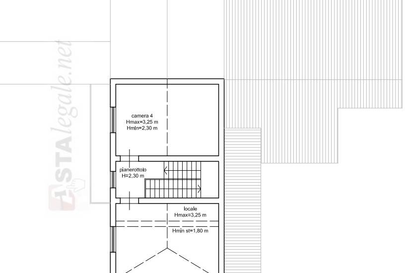
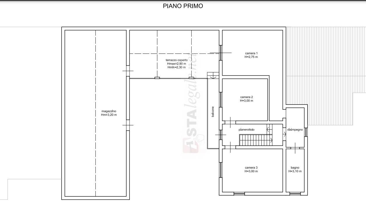
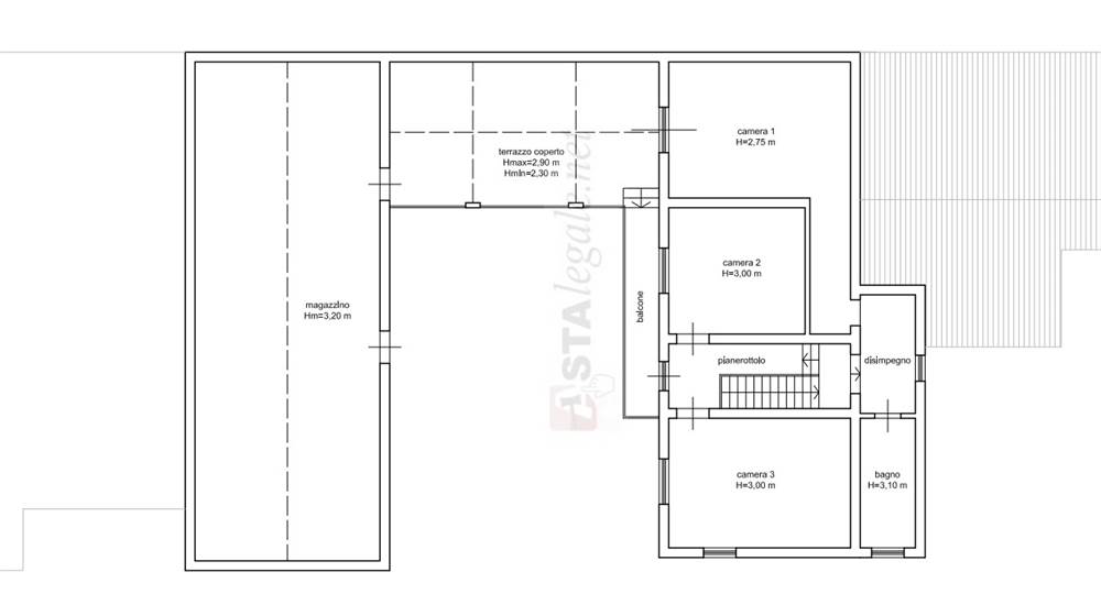
Piena proprietà di un complesso di fabbricati costituto da edifici con destinazione d’uso mista produttiva e residenziale, inter-connessi tra loro così composto: a) Locale deposito magazzino, b) abitazione a tre livelli fuori terra, c) laboratorio con locali deposito e cantina, d) abitazione semi indipendente con area verde pertinenziale. I fabbricati risultano così composti: a) locale deposito a pianta irregolare e ad unico piano, privo di riscaldamento, b) abitazione articolata su tre livelli: al piano terra ingresso con corpo scala centrale che mette in comunicazione i livelli abitativi con il locale caldaia, cucina abitabile e ampio soggiorno con camino in muratura. Al piano primo si trovano disimpegno, tre camere da letto e bagno, dal pianerottolo si accede al balcone e a terrazzo coperto; attraversando il balcone si raggiunge un ampio locale deposito accessibile unicamente transitando dal balcone dell’abitazione; al piano secondo dell’abitazione si trovano altri due locali, di cui uno al rustico e solo parzialmente fruibile, stante la presenza di una capriata di copertura posta a metri 1,5 dalla porta di ingresso. Al piano seminterrato si trova ampia cantina costituente un continuum spaziale con il laboratorio di seguito descritto, oltre ad area esterna pertinenziale completa-mente pavimentata e utilizzata come parcheggio auto; c) laboratorio con pianta ad L composto da unico ambiente di superficie complessiva di circa mq. 288, comunicante con le due abitazioni, con spazio adibito all’imbottigliamento e alla vendita dei prodotti agricoli; d) fabbricato di civile abitazione ad unico piano fuori terra composto da ampio ingresso, cucina abitabile, ampio soggiorno con camino in muratura, tre camere da letto, corridoio, due bagni e ripostiglio, oltre a portico esterno prospiciente il lato sud dell’abitazione e area esterna pertinenziale adibita a giardino. Difformità da sanare.
Immobile all'asta, contattaci per fissare una prima consulenza presso il nostro Studio.
Gardemar Srl offre servizi professionali di consulenza nell'ambito di procedure esecutive immobiliari e fallimentari.
La nostra missione è quella di avvicinare il privato e le società agli acquisti di immobili oggetto di procedura esecutiva immobiliare e, al contempo, cercare di aiutare i soggetti esecutati nel risolvere la propria posizione debitoria grazie ad accordi di saldo e stralcio con i relativi creditori.
Ad oggi Gardemar gestisce un network di oltre 15 filiali autonome su territorio nazionale ( Filiali Gardemar • Gardemar Aste Immobiliari ) e dispone della collaborazione di uno Studio Legale .

Servizi di consulenza offerti:

Aste giudiziarie immobiliari
Esecuzioni immobiliari
Procedure fallimentari
Ricerca di immobili all’asta
Procedura di saldo e stralcio
Aste telematiche immobiliari
Business plan per i costi di partecipazione all’asta
Valutazione globale dell’investimento
Analisi delle perizie tecniche
Analisi su eventuali abusi edilizi
Analisi sugli avvisi di vendita e ordinanze del giudice
Analisi su eventuali diritti di terzi sull’immobile
Consulenza post-aggiudicazione asta immobiliare
Ottenimento finanziamenti tramite professionisti dedicati
Consulenza legale tramite Studio partner
Consulenza costi di ristrutturazione immobiliare con nostri partner affiliati
Caratteristiche principali
Codice
ssc136/2019 15 PV 8nov
Città
Santa Maria della Versa
Categoria
Stabile / Palazzo
Prezzo
47.520 €
Locali
10
Camere
7
Bagni
3
Mq
1400
Classe energetica
Non classificabile
Stato Immobile
Discrete Condizioni
Grado
Economico
Posizione
Campagna
Panorama
Vista Aperta
Giardino
Privato
Riscaldamento
Autonomo
Tipo Riscaldam.
Caldaia
Tipo Impianto
Radiatori
Fonte Energetica
Metano
Acqua Calda
Autonoma
Infissi
Legno
Pavim. Giorno
Ceramica
Pavim. Notte
Ceramica
Pavim. Cucina
Ceramica
Pavim. Bagno
Ceramica
Mappa
Localita' Cà Barbieri 33, Santa Maria della Versa (PV)
Condividi su
Cookie preference