Italiano
171.027 €

Villa e casa colonica

Villa in vendita • San Giorgio di Lomellina - Via Cavour , 50/bis
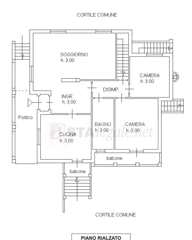
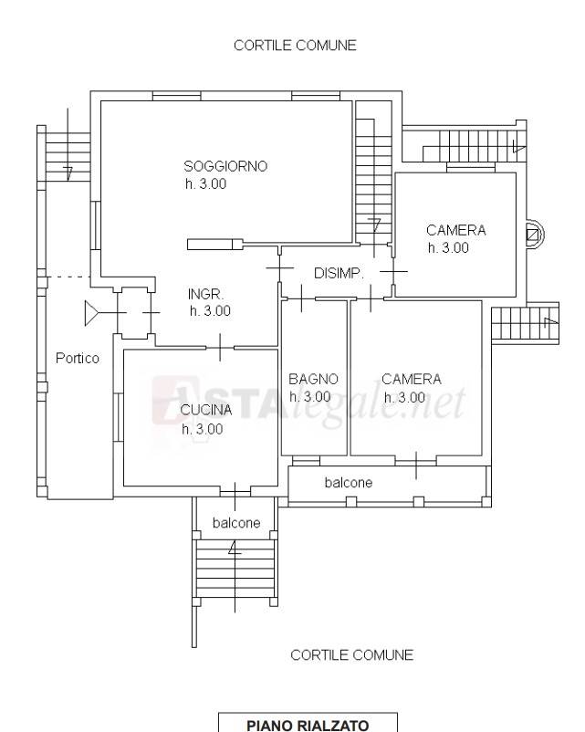
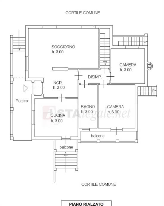
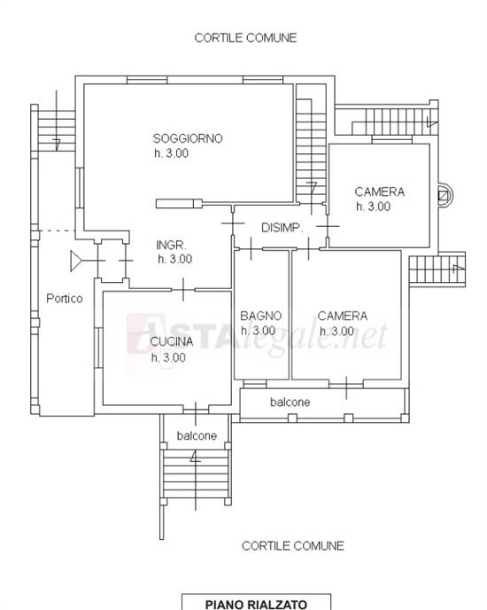
Piena proprietà di Villa unifamiliare, oltre a casa colonica con accorpata autorimessa, altra autorimessa ed un deposito, il tutto insistente su appezzamento di terreno di proprietà recintato (proprietà 1/1). La villa, è composta da piano rialzato e piano seminterrato collegati da una scala interna. Il piano rialzato è composto da: ingresso, soggiorno, cucina, due camere, disimpegno e bagno. Il piano seminterrato è composto da: cantina, centrale termica e ripostiglio. La casa colonica di due piani fuori terra, è cosi disposta: al piano terra: soggiorno con angolo cottura, tre bagni, due disimpegni, ripostiglio, camera, oltre autorimessa accorpata all’edificio; al piano primo: camera, cassero aperto. Un’altra autorimessa, a struttura interamente in lamiera, è posizionata al confine di proprietà. Inoltre, è presente un locale completamente in legno, adibito a deposito. Infine sono presenti due serragli per animali, nel giardino di proprietà.
Immobile all'asta, contattaci per fissare una prima consulenza presso il nostro Studio.
Gardemar Srl offre servizi professionali di consulenza nell'ambito di procedure esecutive immobiliari e fallimentari.
La nostra missione è quella di avvicinare il privato e le società agli acquisti di immobili oggetto di procedura esecutiva immobiliare e, al contempo, cercare di aiutare i soggetti esecutati nel risolvere la propria posizione debitoria grazie ad accordi di saldo e stralcio con i relativi creditori.
Ad oggi Gardemar gestisce un network di oltre 15 filiali autonome su territorio nazionale ( Filiali Gardemar • Gardemar Aste Immobiliari ) e dispone della collaborazione di uno Studio Legale .

Servizi di consulenza offerti:

Aste giudiziarie immobiliari
Esecuzioni immobiliari
Procedure fallimentari
Ricerca di immobili all’asta
Procedura di saldo e stralcio
Aste telematiche immobiliari
Business plan per i costi di partecipazione all’asta
Valutazione globale dell’investimento
Analisi delle perizie tecniche
Analisi su eventuali abusi edilizi
Analisi sugli avvisi di vendita e ordinanze del giudice
Analisi su eventuali diritti di terzi sull’immobile
Consulenza post-aggiudicazione asta immobiliare
Ottenimento finanziamenti tramite professionisti dedicati
Consulenza legale tramite Studio partner
Consulenza costi di ristrutturazione immobiliare con nostri partner affiliati
Caratteristiche principali
Codice
ssc327/2022 U PV 18set
Città
San Giorgio di Lomellina
Categoria
Villa
Prezzo
171.027 €
Locali
7
Camere
4
Bagni
4
Mq
300
Box
2
Classe energetica
Non classificabile
Stato Immobile
Discrete Condizioni
Grado
Medio
Posizione
Campagna
Panorama
Vista Aperta
Giardino
Privato
Tipo Soggiorno
Soggiorno
Tipo Cucina
Abitabile
Riscaldamento
Autonomo
Tipo Riscaldam.
Caldaia
Tipo Impianto
Radiatori
Fonte Energetica
Metano
Acqua Calda
Autonoma
Infissi
Legno
Serramenti
Discreto
Pavim. Giorno
Gres Porcellanato
Pavim. Notte
Parquet
Pavim. Cucina
Gres Porcellanato
Pavim. Bagno
Ceramica

Accessori: Ripostiglio

Mappa
Via Cavour 50/bis, San Giorgio di Lomellina (PV)
Condividi su
Cookie preference