Italiano
69.919 €

APPARTAMENTO ALL'ASTA - CAPRANICA (VT)

Appartamento in vendita • Capranica - Via Giuseppe Ungaretti, 12
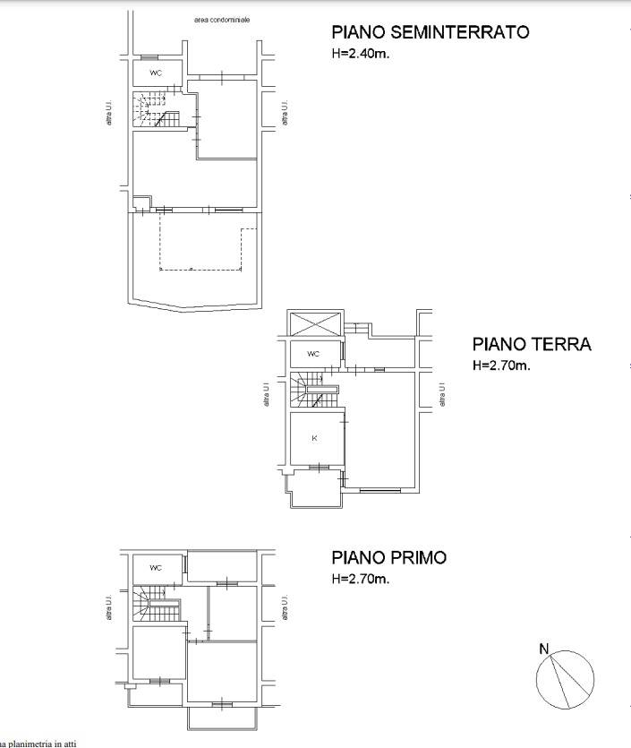
Appartamento all'Asta di 173 MQ con area esterna ubicato a Capranica (VT), Via Ungaretti 12. Sviluppato su tre livelli: al piano terra vi sono un ingresso-soggiorno, una cucina, un bagno, un balcone ed un portico; al piano primo troviamo tre camere, un bagno, un disimpegno e tre balconi; al piano seminterrato sono presenti un’autorimessa, un magazzino, un locale deposito, un bagno ed un’area esterna con tettoia.
Tutti i vani risultano in ottimo stato di conservazione e manutenzione.

GARDEMAR offre servizi professionali di consulenza nell'ambito di procedure esecutive immobiliari e fallimentari.
La nostra missione è quella di avvicinare il privato e le società agli acquisti di immobili oggetto di procedura esecutiva immobiliare e, al contempo, cercare di aiutare i soggetti esecutati nel risolvere la propria posizione debitoria grazie ad accordi di saldo e stralcio con i relativi creditori.
Ad oggi Gardemar vede un network di oltre 20 affiliati autonomi su territorio nazionale e dispone della collaborazione di uno Studio Legale partner.
Servizi di consulenza offerti da GARDEMAR:
Aste giudiziarie immobiliari
Esecuzioni immobiliari
Procedure fallimentari
Ricerca di immobili all’asta
Procedura di saldo e stralcio
Aste telematiche immobiliari
Business plan per i costi di partecipazione all’asta
Valutazione globale dell’investimento
Analisi delle perizie tecniche
Analisi su eventuali abusi edilizi
Analisi sugli avvisi di vendita e ordinanze del giudice
Analisi su eventuali diritti di terzi sull’immobile
Consulenza post-aggiudicazione asta immobiliare
Ottenimento finanziamenti tramite professionisti dedicati
Consulenza legale tramite Studio Legale partner
Consulenza costi di ristrutturazione immobiliare con nostri partner affiliati
Caratteristiche principali
Codice
vt137/2019 1 VT 3lug
Città
Capranica
Categoria
Appartamento
Prezzo
69.919 €
Locali
8,5
Camere
3
Bagni
2
Mq
173
Box
1
Mq Box
20
Mq Giardino
24
Balconi
4
Mq Balcone
24
Piano
Terra
Classe energetica
G
Stato Immobile
Ottimo
Giardino
Privato
Tipo Cucina
Abitabile
Riscaldamento
Autonomo
Tipo Riscaldam.
Caldaia
Tipo Impianto
Radiatori
Fonte Energetica
Metano
Infissi
Legno
Persiana
Persiana Legno

Accessori: Porta Blindata

Mappa
Via Giuseppe Ungaretti 12, Capranica (VT)
Video
Condividi su
Cookie preference