Italiano
21.375 €

APPARTAMENTO ALL'ASTA - TERNI (TR)

Appartamento in vendita • Terni - Via lombardia, 1
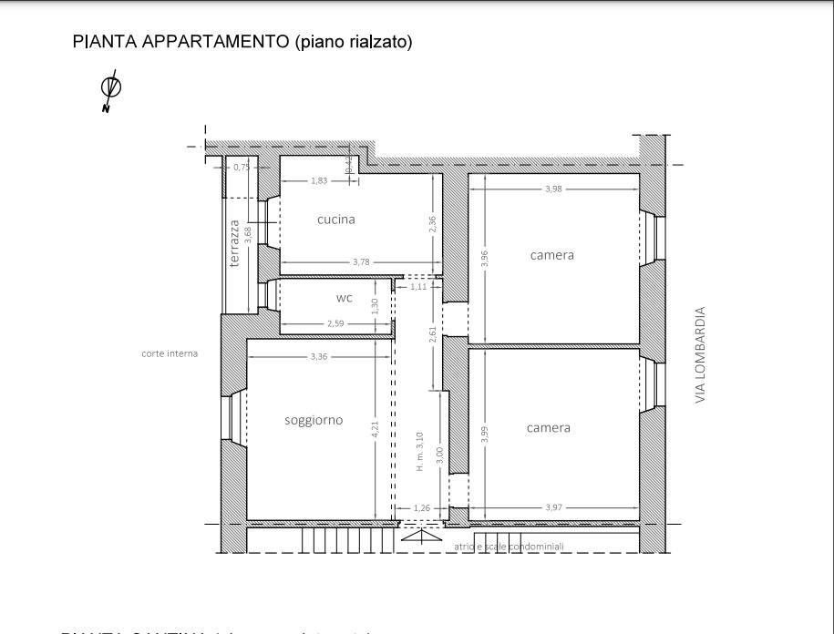
Appartamento all'Asta di 79 MQ da ristrutturare, ubicato a Terni (TR) e posto al piano rialzato di un edificio. Composto da un soggiorno, una cucina abitabile, due camere da letto matrimoniali, un bagno ed un terrazzo. Completa la proprietà una Cantina con finestra al piano seminterrato.
ASTA 05/11/2025

GARDEMAR offre servizi professionali di consulenza nell'ambito di procedure esecutive immobiliari e fallimentari.
La nostra missione è quella di avvicinare il privato e le società agli acquisti di immobili oggetto di procedura esecutiva immobiliare e, al contempo, cercare di aiutare i soggetti esecutati nel risolvere la propria posizione debitoria grazie ad accordi di saldo e stralcio con i relativi creditori.
Ad oggi Gardemar vede un network di oltre 20 affiliati autonomi su territorio nazionale e dispone della collaborazione di uno Studio Legale partner.
Servizi di consulenza offerti da GARDEMAR:
Aste giudiziarie immobiliari
Esecuzioni immobiliari
Procedure fallimentari
Ricerca di immobili all’asta
Procedura di saldo e stralcio
Aste telematiche immobiliari
Business plan per i costi di partecipazione all’asta
Valutazione globale dell’investimento
Analisi delle perizie tecniche
Analisi su eventuali abusi edilizi
Analisi sugli avvisi di vendita e ordinanze del giudice
Analisi su eventuali diritti di terzi sull’immobile
Consulenza post-aggiudicazione asta immobiliare
Ottenimento finanziamenti tramite professionisti dedicati
Consulenza legale tramite Studio Legale partner
Consulenza costi di ristrutturazione immobiliare con nostri partner affiliati
Caratteristiche principali
Codice
vt160/2023 U TR 05 Nov
Città
Terni
Categoria
Appartamento
Prezzo
21.375 €
Locali
5
Camere
2
Bagni
1
Mq
79
Balconi
1
Mq Balcone
2,76
Piano
Rialzato
Classe energetica
G
Stato Immobile
Discrete Condizioni
Riscaldamento
Autonomo
Tipo Riscaldam.
Caldaia
Tipo Impianto
Radiatori
Acqua Calda
Autonoma
Pavim. Giorno
Granito
Pavim. Notte
Granito
Mappa
Via lombardia 1, Terni (TR)
Condividi su
Cookie preference