Italiano
16.454 €

VILLA ALL'ASTA (RUSTICO) - SORIANO NEL CIMINO, VT

Villa in vendita • Soriano nel Cimino - Via Francesco Fanti
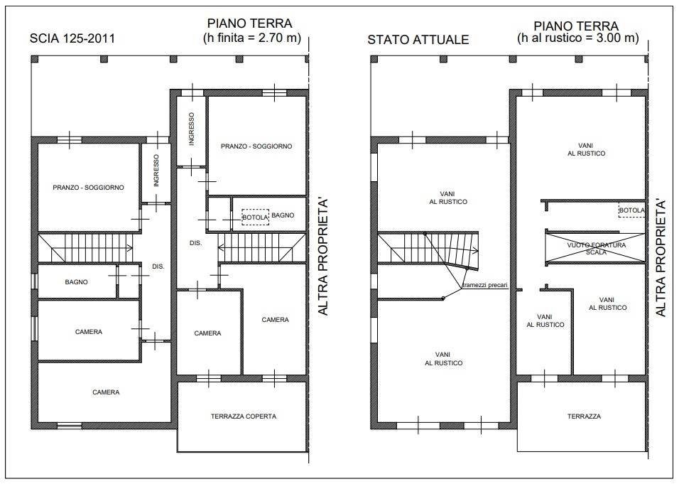
Villa plurifamiliare all'Asta allo stato rustico, ubicata nel Comune di Soriano nel Cimino (VT), di 147 MQ abitabili più 184 MQ di magazzini e 500 MQ di giardino privato.
ASTA 30/10/2024

GARDEMAR offre servizi professionali di consulenza nell'ambito di procedure esecutive immobiliari e fallimentari.
La nostra missione è quella di avvicinare il privato e le società agli acquisti di immobili oggetto di procedura esecutiva immobiliare e, al contempo, cercare di aiutare i soggetti esecutati nel risolvere la propria posizione debitoria grazie ad accordi di saldo e stralcio con i relativi creditori.
Ad oggi Gardemar vede un network di oltre 20 affiliati autonomi su territorio nazionale e dispone della collaborazione di uno Studio Legale partner.
Servizi di consulenza offerti da GARDEMAR
Aste giudiziarie immobiliari
Esecuzioni immobiliari
Procedure fallimentari
Ricerca di immobili all’asta
Procedura di saldo e stralcio
Aste telematiche immobiliari
Business plan per i costi di partecipazione all’asta
Valutazione globale dell’investimento
Analisi delle perizie tecniche
Analisi su eventuali abusi edilizi
Analisi sugli avvisi di vendita e ordinanze del giudice
Analisi su eventuali diritti di terzi sull’immobile
Consulenza post-aggiudicazione asta immobiliare
Ottenimento finanziamenti tramite professionisti dedicati
Consulenza legale tramite Studio Legale partner
Consulenza costi di ristrutturazione immobiliare con nostri partner affiliati
Caratteristiche principali
Codice
vt225/2021 U VT 30ott
Città
Soriano nel Cimino
Categoria
Villa
Prezzo
16.454 €
Locali
6
Mq
147
Mq Giardino
500
Classe energetica
F
Stato Immobile
Rustico
Mappa
Via Francesco Fanti , Soriano nel Cimino (VT)
Video
Condividi su
Cookie preference