Italiano
88.161 €

APPARTAMENTO ALL'ASTA - TERNI

Appartamento in vendita • Terni - Via Vincenzo Bellini, 18
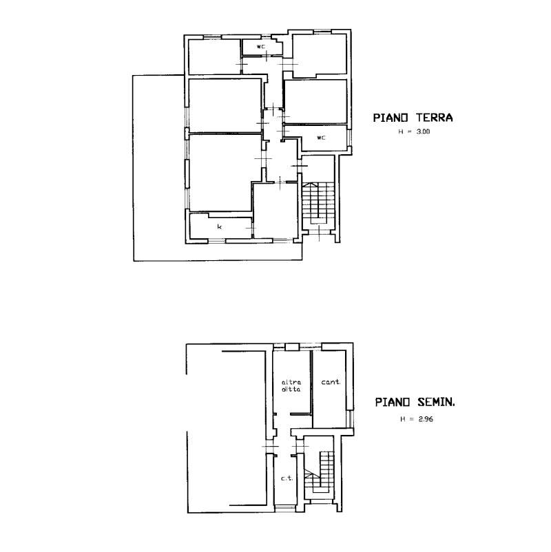
Appartamento all'Asta di circa 116 MQ più balcone di 54 MQ. Posto al piano terra/rialzato di un edificio composto da un'altra unità immobiliare; presente un'area Giardino esterna ad uso comune.
Composto da un soggiorno, una cucina, una zona pranzo, quattro camere, due bagni ed un ampio terrazzo posto sui due lati dell'appartamento.
Completa la proprietà un Garage di 23 MQ posto al piano seminterrato.

GARDEMAR offre servizi professionali di consulenza nell'ambito di procedure esecutive immobiliari e fallimentari.
La nostra missione è quella di avvicinare il privato e le società agli acquisti di immobili oggetto di procedura esecutiva immobiliare e, al contempo, cercare di aiutare i soggetti esecutati nel risolvere la propria posizione debitoria grazie ad accordi di saldo e stralcio con i relativi creditori.
Ad oggi Gardemar vede un network di oltre 20 affiliati autonomi su territorio nazionale e dispone della collaborazione di uno Studio Legale partner.
Servizi di consulenza offerti da GARDEMAR:
Aste giudiziarie immobiliari
Esecuzioni immobiliari
Procedure fallimentari
Ricerca di immobili all’asta
Procedura di saldo e stralcio
Aste telematiche immobiliari
Business plan per i costi di partecipazione all’asta
Valutazione globale dell’investimento
Analisi delle perizie tecniche
Analisi su eventuali abusi edilizi
Analisi sugli avvisi di vendita e ordinanze del giudice
Analisi su eventuali diritti di terzi sull’immobile
Consulenza post-aggiudicazione asta immobiliare
Ottenimento finanziamenti tramite professionisti dedicati
Consulenza legale tramite Studio Legale partner
Consulenza costi di ristrutturazione immobiliare con nostri partner affiliati

Caratteristiche principali
Codice
vt23/2007 U TR 2ott
Città
Terni
Categoria
Appartamento
Prezzo
88.161 €
Locali
8
Camere
4
Bagni
2
Mq
116
Box
1
Mq Box
23
Terrazzi
1
mq Terrazzo
54
Piano
Rialzato
Classe energetica
G
Stato Immobile
Buono
Giardino
Comune
Riscaldamento
Autonomo
Tipo Impianto
Radiatori
Fonte Energetica
Metano
Infissi
Legno Doppio Vetro
Serramenti
Buono
Persiana
Tapparella PVC
Pavim. Giorno
Gres Porcellanato
Pavim. Notte
Parquet
Mappa
Via Vincenzo Bellini 18, Terni (TR)
Video
Condividi su
Cookie preference