Italiano
217.500 €

VILLA CON GIARDINO ALL'ASTA - ORVIETO (TR)

Villa in vendita • Orvieto - Via Nettuno, snc
Villa all'Asta di circa 220 MQ circondata da un'area esterna di pertinenza recintata di 1200 MQ. Realizzata nel 2009 ad Orvieto, nella zona nuova della frazione di Canale.
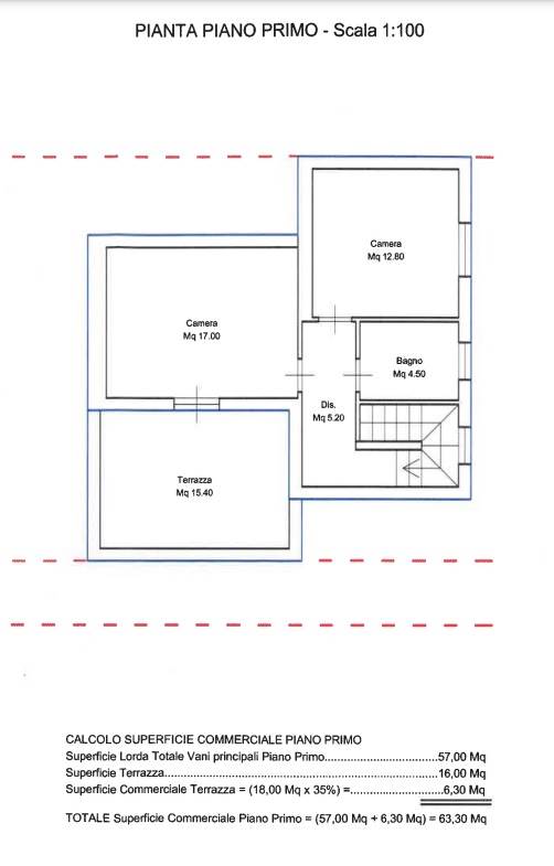
Si sviluppa su tre livelli: al piano terra la zona giorno costituita da un soggiorno, una cucina, uno studio, un disimpegno, un bagno, un vano scala di collegamento ed un portico; al piano primo la zona notte composta da due camere, un disimpegno, un bagno ed una terrazza; al piano seminterrato troviamo un disimpegno, un magazzino, un ripostiglio, un locale di sgombero ed un bagno.
Si accede alla proprietà sia tramite cancello carrabile che pedonale. Esternamente rivestita in pietra a faccia vista, i soffitti sono realizzati con orditura in legno, i pavimenti in gres e parquet.

GARDEMAR offre servizi professionali di consulenza nell'ambito di procedure esecutive immobiliari e fallimentari.
La nostra missione è quella di avvicinare il privato e le società agli acquisti di immobili oggetto di procedura esecutiva immobiliare e, al contempo, cercare di aiutare i soggetti esecutati nel risolvere la propria posizione debitoria grazie ad accordi di saldo e stralcio con i relativi creditori.
Ad oggi Gardemar vede un network di oltre 20 affiliati autonomi su territorio nazionale e dispone della collaborazione di uno Studio Legale partner.
Servizi di consulenza offerti da GARDEMAR
Aste giudiziarie immobiliari
Esecuzioni immobiliari
Procedure fallimentari
Ricerca di immobili all’asta
Procedura di saldo e stralcio
Aste telematiche immobiliari
Business plan per i costi di partecipazione all’asta
Valutazione globale dell’investimento
Analisi delle perizie tecniche
Analisi su eventuali abusi edilizi
Analisi sugli avvisi di vendita e ordinanze del giudice
Analisi su eventuali diritti di terzi sull’immobile
Consulenza post-aggiudicazione asta immobiliare
Ottenimento finanziamenti tramite professionisti dedicati
Consulenza legale tramite Studio Legale partner
Consulenza costi di ristrutturazione immobiliare con nostri partner affiliati
Caratteristiche principali
Codice
vt3/2012 U TR 19giu
Città
Orvieto
Categoria
Villa
Prezzo
217.500 €
Locali
7
Mq
270
Mq Giardino
1270
Terrazzi
1
mq Terrazzo
15,41
Classe energetica
F
Stato Immobile
Buono
Lati Liberi
4
Giardino
Privato
Riscaldamento
Autonomo
Tipo Riscaldam.
Caldaia
Tipo Impianto
Radiatori
Fonte Energetica
Metano
Infissi
Legno Doppio Vetro
Persiana
Persiana Legno
Pavim. Giorno
Gres Porcellanato
Pavim. Notte
Parquet
Pavim. Bagno
Gres Porcellanato

Accessori: Doppi Vetri, Ripostiglio

Mappa
Via Nettuno snc, Orvieto (TR)
Video
Condividi su
Cookie preference