Italiano
53.460 €

APPARTAMENTO ALL'ASTA TODI (PG)

Appartamento in vendita • Todi - Via della Cupa, , 18
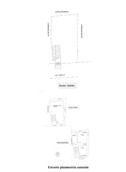
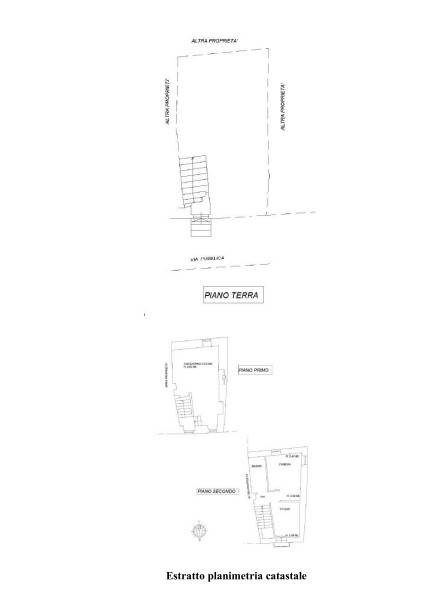
Appartamento all'Asta di circa 83 Mq. Composto al piano primo da zona giorno con soggiorno e angolo cottura e al piano secondo, accessibile da vano scale interno, zona notte con due camere da letto ed un piccolo bagno.
ASTA 22/09/2025

GARDEMAR offre servizi professionali di consulenza nell'ambito di procedure esecutive immobiliari e fallimentari.
La nostra missione è quella di avvicinare il privato e le società agli acquisti di immobili oggetto di procedura esecutiva immobiliare e, al contempo, cercare di aiutare i soggetti esecutati nel risolvere la propria posizione debitoria grazie ad accordi di saldo e stralcio con i relativi creditori.
Ad oggi Gardemar vede un network di oltre 20 affiliati autonomi su territorio nazionale e dispone della collaborazione di uno Studio Legale partner.
Servizi di consulenza offerti da GARDEMAR:
Aste giudiziarie immobiliari
Esecuzioni immobiliari
Procedure fallimentari
Ricerca di immobili all’asta
Procedura di saldo e stralcio
Aste telematiche immobiliari
Business plan per i costi di partecipazione all’asta
Valutazione globale dell’investimento
Analisi delle perizie tecniche
Analisi su eventuali abusi edilizi
Analisi sugli avvisi di vendita e ordinanze del giudice
Analisi su eventuali diritti di terzi sull’immobile
Consulenza post-aggiudicazione asta immobiliare
Ottenimento finanziamenti tramite professionisti dedicati
Consulenza legale tramite Studio Legale
Consulenza costi di ristrutturazione immobiliare con nostri partner affiliati
Caratteristiche principali
Codice
vt42/2024 U PG 22 sett
Città
Todi
Categoria
Appartamento
Prezzo
53.460 €
Locali
4,5
Camere
2
Bagni
1
Mq
83
Piano
2
Classe energetica
G
Stato Immobile
Buono
Tipo Riscaldam.
Caldaia
Tipo Impianto
Radiatori
Pavim. Giorno
Cotto
Mappa
Via della Cupa, 18, Todi (PG)
Condividi su
Cookie preference