Italiano
29.109 €

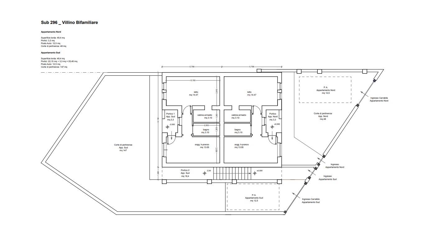
VILLINO BIFAMILIARE ALL'ASTA - ALLERONA (TR)

Villa Bifamiliare in vendita • Allerona - Strada Provinciale 50
Intero Villino Bifamiliare all'Asta sito ad Allerona (TR), Località Selvella, da completare e realizzato nel 2011 su terreno edificabile in nuova lottizzazione.
Costituito da:
“Appartamento Nord” di 50 MQ con Giardino esclusivo di 48 MQ, Portico di 3 MQ e Posto auto di 12,5 MQ, composto da soggiorno con angolo cottura, camera, cabina armadio, bagno;
“Appartamento Sud” di 50 MQ con Giardino esclusivo di 147 MQ e Portici di 25 MQ, composto da soggiorno con angolo cottura, camera, cabina armadio, bagno.
L'immobile si trova in zona agricola e panoramica, con poche strutture circostanti prevalentemente residenziali.
Si sviluppa su un unico livello, risulta ultimato ma mancano le finiture quali pavimenti, rivestimenti, sanitari e montaggio caldaia e radiatori; dell'impianto elettrico sono stati infilati i cavi.
Lotto 5. Disponibili altri Lotti.

GARDEMAR offre servizi professionali di consulenza nell'ambito di procedure esecutive immobiliari e fallimentari.
La nostra missione è quella di avvicinare il privato e le società agli acquisti di immobili oggetto di procedura esecutiva immobiliare e, al contempo, cercare di aiutare i soggetti esecutati nel risolvere la propria posizione debitoria grazie ad accordi di saldo e stralcio con i relativi creditori.
Ad oggi Gardemar vede un network di oltre 20 affiliati autonomi su territorio nazionale e dispone della collaborazione di uno Studio Legale partner.
Servizi di consulenza offerti da GARDEMAR
Aste giudiziarie immobiliari
Esecuzioni immobiliari
Procedure fallimentari
Ricerca di immobili all'asta
Procedura di saldo e stralcio
Aste telematiche immobiliari
Business plan per i costi di partecipazione all'asta
Valutazione globale dell'investimento
Analisi delle perizie tecniche
Analisi su eventuali abusi edilizi
Analisi sugli avvisi di vendita e ordinanze del giudice
Analisi su eventuali diritti di terzi sull'immobile
Consulenza post-aggiudicazione asta immobiliare
Ottenimento finanziamenti tramite professionisti dedicati
Consulenza legale tramite Studio Legale partner
Consulenza costi di ristrutturazione immobiliare con nostri partner affiliati.
Caratteristiche principali
Codice
vt62/2021 5 TR6NOV
Città
Allerona
Categoria
Villa Bifamiliare
Prezzo
29.109 €
Locali
5
Camere
2
Mq
100
Posti auto
2
Mq Giardino
195
Balconi
2
Piano
Terra
Classe energetica
G
Stato Immobile
Da Ristrutturare
Giardino
Privato
Riscaldamento
Autonomo
Tipo Impianto
Radiatori

Accessori: Porta Blindata

Mappa
Strada Provinciale 50 , Allerona (TR)
Video
Condividi su
Cookie preference