Italiano
28.002 €

VILLINO UNIFAMILIARE ALL'ASTA - ALLERONA (TR)

Villa in vendita • Allerona - Strada Provinciale 50
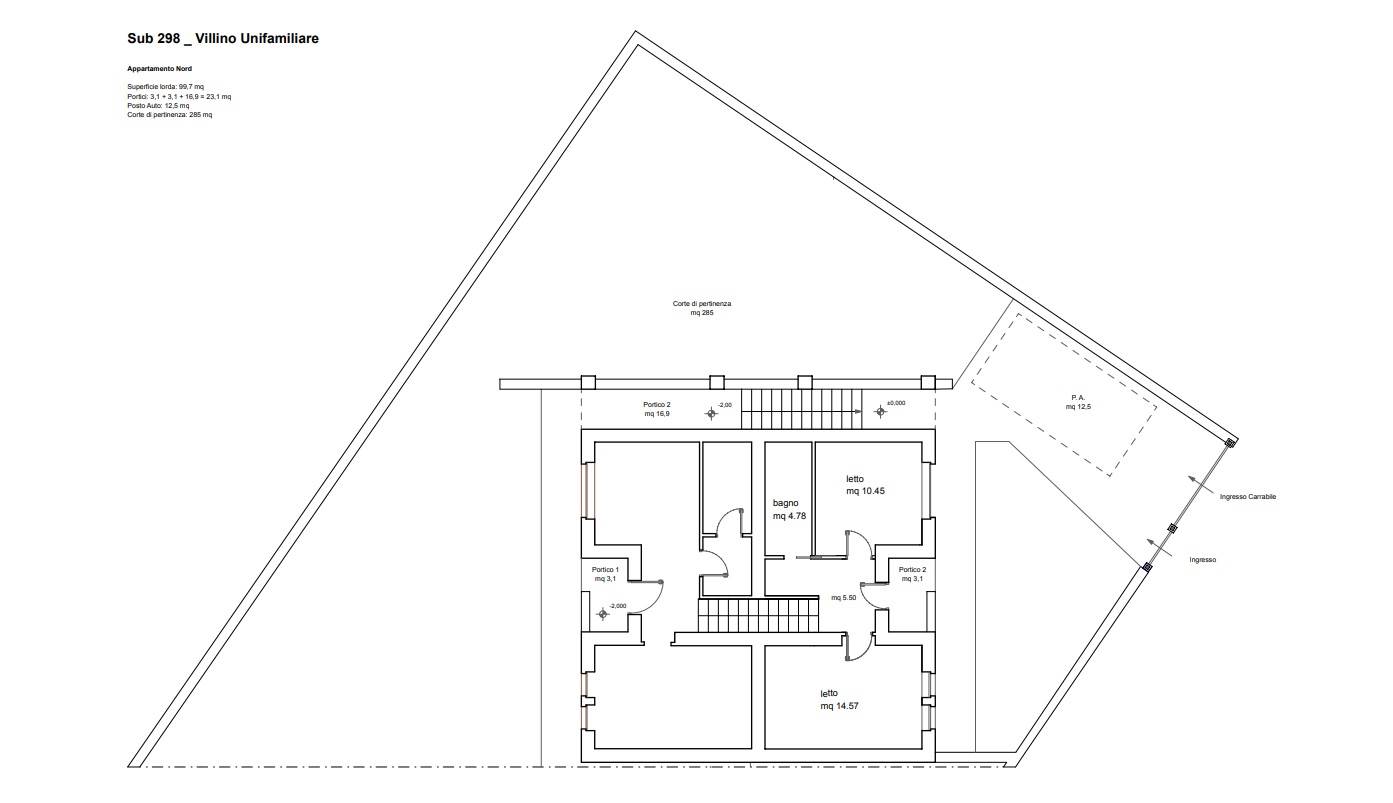
Villino unifamiliare all'Asta di circa 100 MQ da completare con annesso Giardino esclusivo di 285 MQ, Portici di 23 MQ e Posto auto.
Sito ad Allerona (TR), Località Selvella, realizzato nel 2011 su terreno edificabile in nuova lottizzazione. L'immobile si trova in zona agricola e panoramica, con poche strutture circostanti prevalentemente residenziali.
Si sviluppa su un unico livello, risulta ultimato ma mancano le finiture quali pavimenti, rivestimenti, sanitari e montaggio caldaia e radiatori; dell'impianto elettrico sono stati infilati i cavi.
Disponibili altri Lotti.

GARDEMAR offre servizi professionali di consulenza nell'ambito di procedure esecutive immobiliari e fallimentari.
La nostra missione è quella di avvicinare il privato e le società agli acquisti di immobili oggetto di procedura esecutiva immobiliare e, al contempo, cercare di aiutare i soggetti esecutati nel risolvere la propria posizione debitoria grazie ad accordi di saldo e stralcio con i relativi creditori.
Ad oggi Gardemar vede un network di oltre 20 affiliati autonomi su territorio nazionale e dispone della collaborazione di uno Studio Legale partner.
Servizi di consulenza offerti da GARDEMAR
Aste giudiziarie immobiliari
Esecuzioni immobiliari
Procedure fallimentari
Ricerca di immobili all'asta
Procedura di saldo e stralcio
Aste telematiche immobiliari
Business plan per i costi di partecipazione all'asta
Valutazione globale dell'investimento
Analisi delle perizie tecniche
Analisi su eventuali abusi edilizi
Analisi sugli avvisi di vendita e ordinanze del giudice
Analisi su eventuali diritti di terzi sull'immobile
Consulenza post-aggiudicazione asta immobiliare
Ottenimento finanziamenti tramite professionisti dedicati
Consulenza legale tramite Studio Legale partner
Consulenza costi di ristrutturazione immobiliare con nostri partner affiliati.
Caratteristiche principali
Codice
vt62/2021 7 TR6NOV
Città
Allerona
Categoria
Villa
Prezzo
28.002 €
Locali
5
Mq
100
Posti auto
1
Mq Giardino
285
Classe energetica
G
Stato Immobile
Da Ristrutturare
Giardino
Privato
Riscaldamento
Autonomo
Tipo Impianto
Radiatori
Infissi
Legno Doppio Vetro
Persiana
Persiana Legno

Accessori: Porta Blindata

Mappa
Strada Provinciale 50 , Allerona (TR)
Video
Condividi su
Cookie preference