Italiano
38.400 €

APPARTAMENTO ALL'ASTA - MANCIANO (GR)

Appartamento in vendita • Manciano - Via del bivio , 17
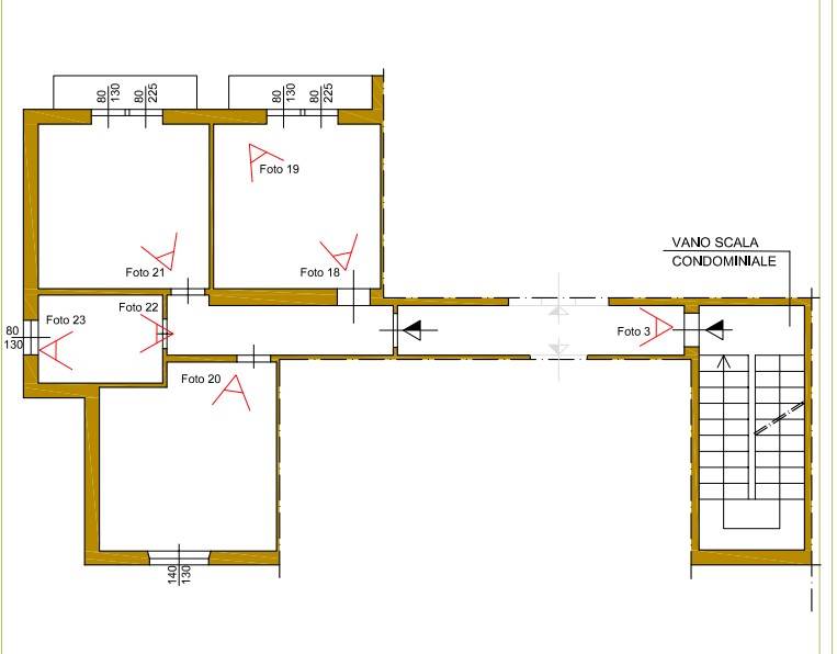
Appartamento all'Asta di 62 MQ sito in Manciano (GR). L’unità immobiliare è composta da un soggiorno con angolo cottura, due camere da letto matrimoniali, un bagno finestrato, un corridoio e due terrazze.

GARDEMAR offre servizi professionali di consulenza nell'ambito di procedure esecutive immobiliari e fallimentari.
La nostra missione è quella di avvicinare il privato e le società agli acquisti di immobili oggetto di procedura esecutiva immobiliare e, al contempo, cercare di aiutare i soggetti esecutati nel risolvere la propria posizione debitoria grazie ad accordi di saldo e stralcio con i relativi creditori.
Ad oggi Gardemar vede un network di oltre 20 affiliati autonomi su territorio nazionale e dispone della collaborazione di uno Studio Legale partner.
Servizi di consulenza offerti da GARDEMAR:
Aste giudiziarie immobiliari
Esecuzioni immobiliari
Procedure fallimentari
Ricerca di immobili all’asta
Procedura di saldo e stralcio
Aste telematiche immobiliari
Business plan per i costi di partecipazione all’asta
Valutazione globale dell’investimento
Analisi delle perizie tecniche
Analisi su eventuali abusi edilizi
Analisi sugli avvisi di vendita e ordinanze del giudice
Analisi su eventuali diritti di terzi sull’immobile
Consulenza post-aggiudicazione asta immobiliare
Ottenimento finanziamenti tramite professionisti dedicati
Consulenza legale tramite Studio Legale partner
Consulenza costi di ristrutturazione immobiliare con nostri partner affiliati
Caratteristiche principali
Codice
vt83/2021 5 GR 10lug
Città
Manciano
Categoria
Appartamento
Prezzo
38.400 €
Locali
3
Camere
2
Bagni
1
Mq
62
Terrazzi
2
Piano
3
Classe energetica
G
Riscaldamento
Centralizzato
Tipo Riscaldam.
Caldaia
Tipo Impianto
Radiatori
Fonte Energetica
Gasolio
Infissi
Legno
Serramenti
Buono
Mappa
Via del bivio 17, Manciano (GR)
Video
Condividi su
Cookie preference