Italiano
32.321 €

APPARTAMENTO ALL'ASTA FIANO ROMANO (RM)

Appartamento in vendita • Fiano Romano - Via San Sebastiano,, 2
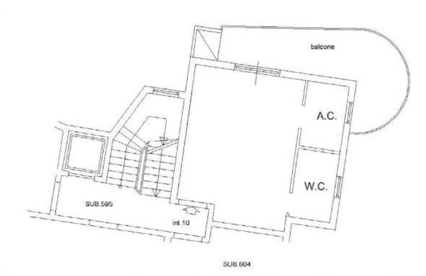
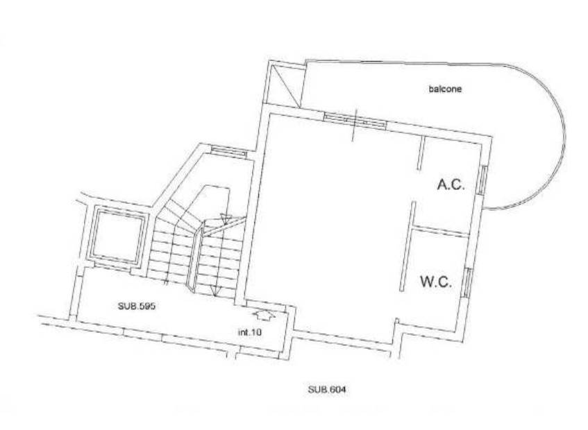
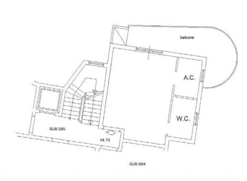
Appartamento all'Asta di circa 43 Mq. posto al piano secondo costituito da un soggiorno-pranzo in ingresso, fornito di un angolo cucina e di un bagno. L’appartamento è dotato di un balcone accessibile dal vano soggiorno-pranzo.
ASTA 21/07/2025

GARDEMAR offre servizi professionali di consulenza nell'ambito di procedure esecutive immobiliari e le società agli acquisti di immobili oggetto di procedura esecutiva immobiliare e, al contempo, cercare di aiutare i soggetti esecutati nel risolvere la propria posizione debitoria grazie ad accordi di saldo e stralcio con i relativi creditori.
Ad oggi Gardemar vede un network di oltre 20 affiliati autonomi su territorio nazionale e dispone della collaborazione di uno Studio Legale partner.
Servizi di consulenza offerti da GARDEMAR:
Aste giudiziarie immobiliari
Esecuzioni immobiliari
Procedure fallimentari
Ricerca di immobili all’asta
Procedura di saldo e stralcio
Aste telematiche immobiliari
Business plan per i costi di partecipazione all’asta
Valutazione globale dell’investimento
Analisi delle perizie tecniche
Analisi su eventuali abusi edilizi
Analisi sugli avvisi di vendita e ordinanze del giudice
Analisi su eventuali diritti di terzi sull’immobile
Consulenza post-aggiudicazione asta immobiliare
Ottenimento finanziamenti tramite professionisti dedicati
Consulenza legale tramite Studio Legale partner
Consulenza costi di ristrutturazione immobiliare con nostri partner affiliati
Caratteristiche principali
Codice
vtt100/2020 8 RM 21 lug
Città
Fiano Romano
Categoria
Appartamento
Prezzo
32.321 €
Locali
2,5
Camere
1
Bagni
1
Mq
43
Balconi
1
Piano
2
Classe energetica
E
Stato Immobile
Buono
Riscaldamento
Autonomo
Tipo Riscaldam.
Caldaia
Tipo Impianto
Radiatori
Acqua Calda
Autonoma
Pavim. Giorno
Gres Porcellanato
Pavim. Notte
Gres Porcellanato
Pavim. Cucina
Gres Porcellanato

Accessori: Ascensore

Mappa
Via San Sebastiano, 2, Fiano Romano (RM)
Condividi su
Cookie preference